
Omschrijving
Grotendeels gerenoveerde en uitgebouwde karakteristieke twee-onder-een-kap woning. Ruim perceel van 284 m2, met eigen parkeerplaats, mogelijkheid carport en grote achtertuin met berging.
Nagenoeg nieuwe keukeninrichting uit 2022, kookschiereiland in leefkeuken van circa 25 m2 met airco voor koelen en verwarmen.
Een heerlijk gezinshuis in het centrum van Bergeijk, op loopafstand van scholen, winkels en terrasjes. Met bovendien het buitengebied om de hoek.
Indeling en omschrijving:
Begane grond:
Woonkamer
Via de hal komt u in de gezellige woonkamer die gelegen is aan de voorzijde van de woning. De woonkamer heeft eiken vloerdelen in multiplank en in het midden een rookkanaal met houtkachel.
Er is genoeg ruimte voor een heerlijke zithoek en de opstelling van een eethoek.
Werkkamer
In het verlengde van de woonkamer is een praktische inpandige werkkamer.
Leefkeuken
Aan de achterzijde is in 2022 een forse aanbouw gerealiseerd met een prachtige nieuwe keukeninrichting.
Een kookschiereiland met een fantastisch granieten werkblad met rvs spoelbak en Quooker Flex pro 3, een inductiekookplaat met geïntegreerde afzuiging (BORA) vaatwasser (AEG), combi oven-magnetron 60cm hoog (Etna) en koelkast 178 cm hoog (AEG).
Hier kan de kookliefhebber zijn/haar hart ophalen. Achter de keukeninrichting is nog een forse ruimte voor een grote eetkamertafel, zodat u hier heerlijk kunt genieten met familie en vrienden.
Een groot raam achter zorgt voor ruim voldoende daglicht en een mooi zicht op de achtertuin.
In de keukenruimte is een airco (Mitsubishi heavy industries), circa 1,5 jaar, waarmee u kunt koelen en verwarmen.
Vanuit de keuken kunt u naar het terras en de tuin en naar de gang/berging, waar de wasapparatuur kan worden geplaatst en ook de c.v.-ketel (ATAG 2023) is.
De keukenvloer is uitgevoerd in fraaie grote vloertegels van 90 x 90 cm.
Zowel de keuken als de woonkamer is strak gestuct en zijn voorzien van inbouwspots in de plafonds.
Badkamer en toilet
Vanuit deze berging is een separaat toilet met wandcloset en fonteintje en de badkamer bereikbaar.
Het toilet is recent gerenoveerd. De badkamer is voorzien van een douche en wastafel.
Buiten
Voorzijde
Aan de voorzijde van de woning is nog een deel eigen grond, waarop u siertuintje zou kunnen inrichten.
Zijtuin
Aan de zijkant is een parkeerplaats ingericht, eventueel zou hier een carport van kunnen worden gemaakt.
Er is tevens een poort met een achterom.
Achtertuin
De achtertuin is momenteel volledig verhard en onderhoudsarm ingericht. De tuin ligt op het zonnige zuid-westen.
Deze privacybiedende tuin biedt nog volop mogelijkheden voor aanleg van een siertuin, gazon en (overdekte) terrassen.
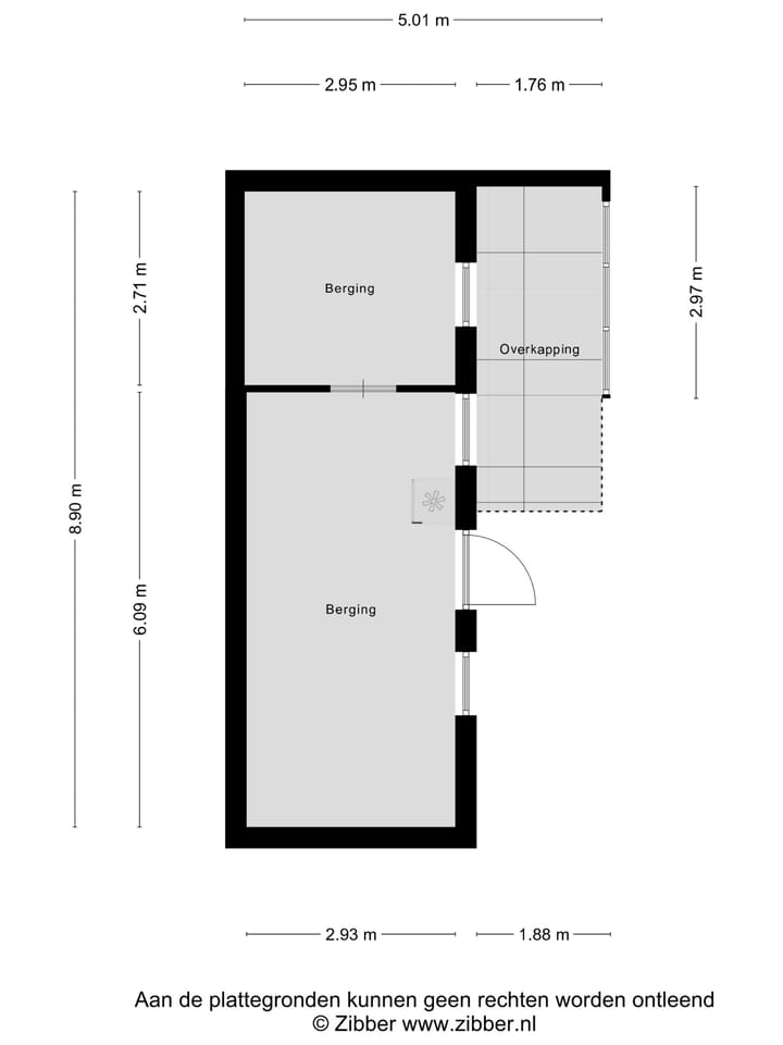
Achterin de tuin is een ruime stenen berging over de gehele breedte van het perceel. Deze berging, is opgedeeld in twee delen en is uitgevoerd in spouwmuren en plat dak.
Eerste verdieping:
Op de eerste verdieping is een overloop met daaraan grenzend drie slaapkamers. De gehele verdieping is voorzien van een laminaat vloerafwerking.
Ouder slaapkamer
Aan de achterzijde is de ruime ouder slaapkamer (circa 2.85 x 4,22 m) gelegen. De kamer heeft een dakkapel voor voldoende daglicht. Er is een airco (Daikin, circa 3 jaar) aanwezig om te koelen en te verwarmen.
Slaapkamer met inloopdressing
Aan de voorzijde is een ruime slaapkamer (circa 2,82 x 2,74 m) met aanpandige inloopdressing. Deze kamer heeft een grote dakkapel voor ruim voldoende natuurlijke lichtinval.
Kinderkamer
Aan de achterzijde en grenzend aan de woningscheidende muur is een leuke kinderkamer gelegen.
Deze kamer (circa 2,20 x 3,06 m) heeft ook een dakkapel en daardoor veel natuurlijk licht.
Tweede verdieping:
Via een vlizotrap kunt u op de overloop naar de ruime bergzolder over de gehele breedte van de woning.
Goedgekeurd verbouwingsplan
Voor verbouwing en uitbreiding van de verdiepingen is een bouwtekening, bestek en voorwaarden en omgevingsvergunning beschikbaar. Indien gewenst kunt u er meteen mee aan de slag.
Algemene informatie:
- Bouwjaar oorspronkelijk 1914, maar in 2022 op de begane grond uitgebouwd en gerenoveerd.
- Bruto inhoud 423 m3 en perceeloppervlakte 284 m2.
- Gebruiksoppervlakte wonen circa 111 m2, overige inpandige ruimte circa 8 m2 en externe bergruimte circa 26 m2.
- Energielabel F. Spouwmuurisolatie is niet opgenomen in het energielabel.
- Aanvaarding in overleg.
- Tot zekerheid voor de nakoming van de verplichtingen, dient de koper, binnen 6 weken, na het tot stand komen van de koopovereenkomst, een schriftelijke bankgarantie te doen stellen bij een Nederlandse bankinstelling, dan wel een waarborgsom te storten, beide ten bedrage van 10% van de koopsom.
Kenmerken
Overdracht
- Laatste vraagprijs
- € 400.000 kosten koper
- Vraagprijs per m²
- € 3.604
- Status
- Verkocht
Bouw
- Soort woonhuis
- Eengezinswoning, 2-onder-1-kapwoning
- Soort bouw
- Bestaande bouw
- Bouwjaar
- 1914
- Soort dak
- Zadeldak bedekt met pannen
- Keurmerken
- Energie Prestatie Advies
Oppervlakten en inhoud
- Gebruiksoppervlakten
- Wonen
- 111 m²
- Overige inpandige ruimte
- 8 m²
- Externe bergruimte
- 26 m²
- Perceel
- 284 m²
- Inhoud
- 423 m³
Indeling
- Aantal kamers
- 4 kamers (3 slaapkamers)
- Aantal badkamers
- 1 badkamer en 1 apart toilet
- Badkamervoorzieningen
- Douche en wastafel
- Aantal woonlagen
- 2 woonlagen en een zolder
- Voorzieningen
- Airconditioning en rookkanaal
Energie
- Energielabel
- F
- Isolatie
- Gedeeltelijk dubbel glas
- Verwarming
- Cv-ketel en heteluchtverwarming
- Warm water
- Cv-ketel
- Cv-ketel
- Atag (gas gestookt combiketel uit 2023, eigendom)
Kadastrale gegevens
- BERGEIJK D 4956
- Kadastrale kaart
- Oppervlakte
- 284 m²
- Eigendomssituatie
- Volle eigendom
Buitenruimte
- Ligging
- In centrum
- Tuin
- Achtertuin, voortuin en zonneterras
- Achtertuin
- 81 m² (13,00 meter diep en 6,25 meter breed)
- Ligging tuin
- Gelegen op het zuidwesten bereikbaar via achterom
Bergruimte
- Schuur/berging
- Vrijstaande stenen berging
- Voorzieningen
- Elektra
Garage
- Soort garage
- Parkeerplaats
Parkeergelegenheid
- Soort parkeergelegenheid
- Op eigen terrein en openbaar parkeren
Foto's 40
© 2001-2025 funda







































