
Parkweg 471865 AG Bergen aan ZeeBergen aan Zee
€ 645.000 k.k.
BlikvangerUnieke kans! Wonen aan zee, direct aan de voet van het duin.
Omschrijving
Wonen in Bergen aan Zee! Dat kan nu in dit fijne appartement in het kleinschalige appartementencomplex ‘Julianaduin’, direct bij het strand, zee en uitgestrekt duingebied. Hier kunt u uw vaste woonplaats hebben en ook is het goed mogelijk om dit appartement te gebruiken als tweede woning.
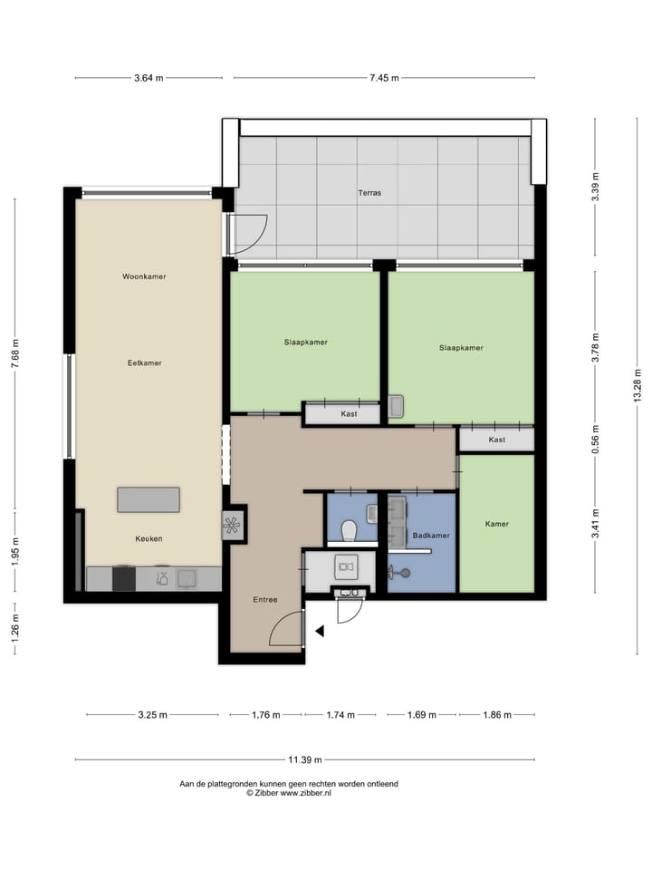
Op de begane grond, met terras en uitloop direct bij het duin, verkopen wij een compleet gerenoveerd en comfortabel 4-kamer appartement met royaal terras van meer dan 20 m². Tevens bieden wij de mogelijkheid tot aankoop van een eigen garagebox.
Dit, direct op het laatste duin tegenover het Parnassiapark en naast een strandopgang gelegen, appartement is heerlijk vrije gelegen en met een paar stappen ligt of loopt u op het strand of bezoekt u een van de gezellige strandtenten. Omdat het direct het eerste appartement betreft, betreden de huidige eigenaren het appartement altijd via het terras in plaats van via de hoofdentree. Handig en zeer privé!
Indeling: entree met garderobe, werkkast met aansluiting wasmachine en boiler, luxe toilet met wandcloset en fonteintje, complete open keuken met eiland, royale lichte woonkamer met grote raampartijen (heerlijk ook dat zijraam vanwege de hoekligging!), 2 flinke slaapkamers met eveneens toegang tot het terras. Verder vinden we hier nog een praktische kastenkamer en als kers op de taart een luxe badkamer met inloopdouche en dubbele wastafel.
Bijzonderheden:
- Dit appartement is zowel voor permanente bewoning als voor een tweede woning geschikt.
- Het appartement is netjes afgewerkt en altijd goed onderhouden. Er is dubbele beglazing, blokverwarming en een Intercom met beeldscherm aanwezig. Diverse roerende zaken blijven achter en/of zijn ter overname.
- Verhuur niet toegestaan.
- Servicekosten VVE: ca. 515 euro per maand, huismeester beschikbaar.
- Voorschot verwarming ca. 235 euro per maand.
- Bijkopen van de garagebox behoort tot de mogelijkheden.
- Aanvaarding: in overleg, kan spoedig
Heeft u interesse in dit fijne appartement bij het strand en de zee? Wij leiden u graag rond!
Kenmerken
Overdracht
- Aangeboden sinds
- Aanvaarding
- In overleg
- Vraagprijs
- € 645.000 kosten koper
- Vraagprijs per m²
- € 6.515
- Status
- Beschikbaar
- Bijdrage VvE
- € 515,00 per maand
Bouw
- Soort appartement
- Portiekflat (appartement)
- Soort bouw
- Bestaande bouw
- Bouwjaar
- 1970
- Specifiek
- Gestoffeerd
- Soort dak
- Plat dak
- Toegankelijkheid
- Toegankelijk voor mensen met een beperking en toegankelijk voor ouderen
Oppervlakten en inhoud
- Gebruiksoppervlakten
- Wonen
- 99 m²
- Gebouwgebonden buitenruimte
- 22 m²
- Inhoud
- 327 m³
Indeling
- Aantal kamers
- 4 kamers (2 slaapkamers)
- Aantal badkamers
- 1 badkamer en 1 apart toilet
- Badkamervoorzieningen
- Douche en wastafelmeubel
- Aantal woonlagen
- 1 woonlaag
- Voorzieningen
- Buitenzonwering en lift
- Gelegen op
- 1e woonlaag
Energie
- Energielabel
- C
- Isolatie
- Dubbel glas
- Verwarming
- Blokverwarming
- Warm water
- Gasboiler
Kadastrale gegevens
- BERGEN NH G 831
- Kadastrale kaart
- Eigendomssituatie
- Volle eigendom
Buitenruimte
- Ligging
- Aan rustige weg en beschutte ligging
- Tuin
- Zonneterras
Garage
- Soort garage
- Garagebox
- Capaciteit
- 1 auto
- Voorzieningen
- Elektrische deur en elektra
Parkeergelegenheid
- Soort parkeergelegenheid
- Betaald parkeren, op eigen terrein, openbaar parkeren en parkeervergunningen
VvE checklist
- Inschrijving KvK
- Ja
- Jaarlijkse vergadering
- Ja
- Periodieke bijdrage
- Ja (€ 515,00 per maand)
- Reservefonds aanwezig
- Ja
- Onderhoudsplan
- Ja
- Opstalverzekering
- Ja
Foto's 43
Plattegronden
© 2001-2025 funda











































