
Baan van Ravenhorst 21865 BT Bergen aan ZeeBergen aan Zee
€ 925.000 k.k.
Omschrijving
Bent u op zoek naar een woning met ruimte, licht én een toplocatie? Deze riante SPLITLEVEL HOEKWONING (drie-onder-een-kap) biedt verrassend veel mogelijkheden – zo is het eenvoudig om vier slaapkamers te realiseren.
Ligt het op steenworp afstand van de zee, het strand en de duinen in de badplaats Bergen aan Zee met zijn geheel eigen sfeer en karakter. Ruime tuin op het oosten en een royaal terras op het westen.
Je wandelt in 3 minuten naar het strand of direct het prachtige duingebied in. Een heerlijke plek dus, waar je het hele jaar door volop het vakantiegevoel ervaart.
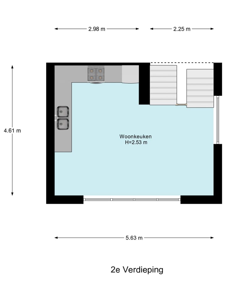
Indeling:
Begane grond: entree met toilet, bijkeuken met keukenblokje en toegang tot het souterrain en berging, royale hal
1e Verdieping: lichte woonkamer met fantastische hoogte (3.92 m) en pelletkachel,schuifpui naar groot terras op het westen
2e Verdieping: ruime woonkeuken met gaskookplaat, afzuigkap, oven, vaatwasser, koel-vriescombinatie en Quooker
3e Verdieping: overloop met vlizotrap naar de vliering, cv-kast,
twee royale slaapkamers (vh 3) waarvan één met zeezicht, beiden met dakkapel en één met Velux dakraam, badkamer met ligbad, inloopdouche, wastafelmeubel en toilet
Bijzonderheden:
. Bouwjaar: 1996
. Perceeloppervlakte: 176 m²
. Gebruiksoppervlakte: 171 m²
. Inhoud: 702 m³
. Isolatie: geheel dubbele beglazing, dak-, vloer- en muurisolatie
. Energielabel B
. Mechanische ventilatie
. Cv ketel bouwjaar 2015
. Woonkamer en keuken v.v. plavuizen vloeren met vloerverwarming
. 6 zonnepanelen (2024)
Aanvaarding: in overleg
Bent u nieuwsgierig geworden? Wij laten u deze bijzondere woning graag zien.
Maak gerust een afspraak voor een bezichtiging en laat u verrassen door de ruimte, de ligging en het comfort.
U bent van harte welkom in Bergen aan Zee.
Kenmerken
Overdracht
- Aangeboden sinds
- Aanvaarding
- In overleg
- Vraagprijs
- € 925.000 kosten koper
- Vraagprijs per m²
- € 5.409
- Status
- Beschikbaar
Bouw
- Soort woonhuis
- Eengezinswoning, hoekwoning (split-level woning)
- Soort bouw
- Bestaande bouw
- Bouwjaar
- 1996
- Soort dak
- Zadeldak bedekt met pannen
Oppervlakten en inhoud
- Gebruiksoppervlakten
- Wonen
- 171 m²
- Overige inpandige ruimte
- 20 m²
- Gebouwgebonden buitenruimte
- 27 m²
- Perceel
- 176 m²
- Inhoud
- 702 m³
Indeling
- Aantal kamers
- 5 kamers (2 slaapkamers)
- Aantal badkamers
- 1 badkamer en 1 apart toilet
- Badkamervoorzieningen
- Dubbele wastafel, inloopdouche, ligbad, toilet, en wastafelmeubel
- Aantal woonlagen
- 4 woonlagen en een kelder
- Voorzieningen
- Dakraam, mechanische ventilatie, en rookkanaal
Energie
- Energielabel
- B
- Isolatie
- Dakisolatie, HR-glas, muurisolatie en vloerisolatie
- Verwarming
- Cv-ketel, pelletkachel en gedeeltelijke vloerverwarming
- Warm water
- Cv-ketel en elektrische boiler
- Cv-ketel
- Atag E 325 EC (CW5) (gas gestookt combiketel uit 2015, eigendom)
Kadastrale gegevens
- BERGEN NOORD-HOLLAND G 1098
- Kadastrale kaart
- Oppervlakte
- 176 m²
- Eigendomssituatie
- Volle eigendom
Buitenruimte
- Ligging
- In centrum, vrij uitzicht en zeezicht
- Tuin
- Achtertuin, voortuin en zonneterras
- Achtertuin
- 72 m² (12,00 meter diep en 6,00 meter breed)
- Ligging tuin
- Gelegen op het oosten bereikbaar via achterom
- Balkon/dakterras
- Balkon aanwezig
Parkeergelegenheid
- Soort parkeergelegenheid
- Betaald parkeren, openbaar parkeren en parkeervergunningen
Foto's 43
© 2001-2025 funda










































