
012 - 2 onder 1 kapwoning Type A (Bouwnr. 012)4625 GC Bergen op ZoomNieuw Borgvliet
Verkocht
€ 609.000 v.o.n.
Omschrijving
Ben je op zoek naar een 2 onder 1 kapwoning in Markiezaten? Bouwnummer 012 wordt standaard uitgebouwd, waardoor er aan de achterkant een ruime leefkeuken ontstaat. Vanuit de achtertuin geniet je van vrij uitzicht. Ook heb je aan de achterzijde van de woning de mogelijkheid om een dakterras te realiseren. Een heerlijke plek om na een dag werken thuis te komen. Zie jij jezelf hier al wonen?
Kenmerken
Overdracht
- Laatste vraagprijs
- € 609.000 vrij op naam
- Vraagprijs per m²
- € 4.319
- Status
- Verkocht
Bouw
- Soort woonhuis
- Herenhuis, 2-onder-1-kapwoning
- Soort bouw
- Nieuwbouw
- Bouwjaar
- 2024
Oppervlakten en inhoud
- Gebruiksoppervlakten
- Wonen
- 141 m²
- Perceel
- 321 m²
- Inhoud
- 524 m³
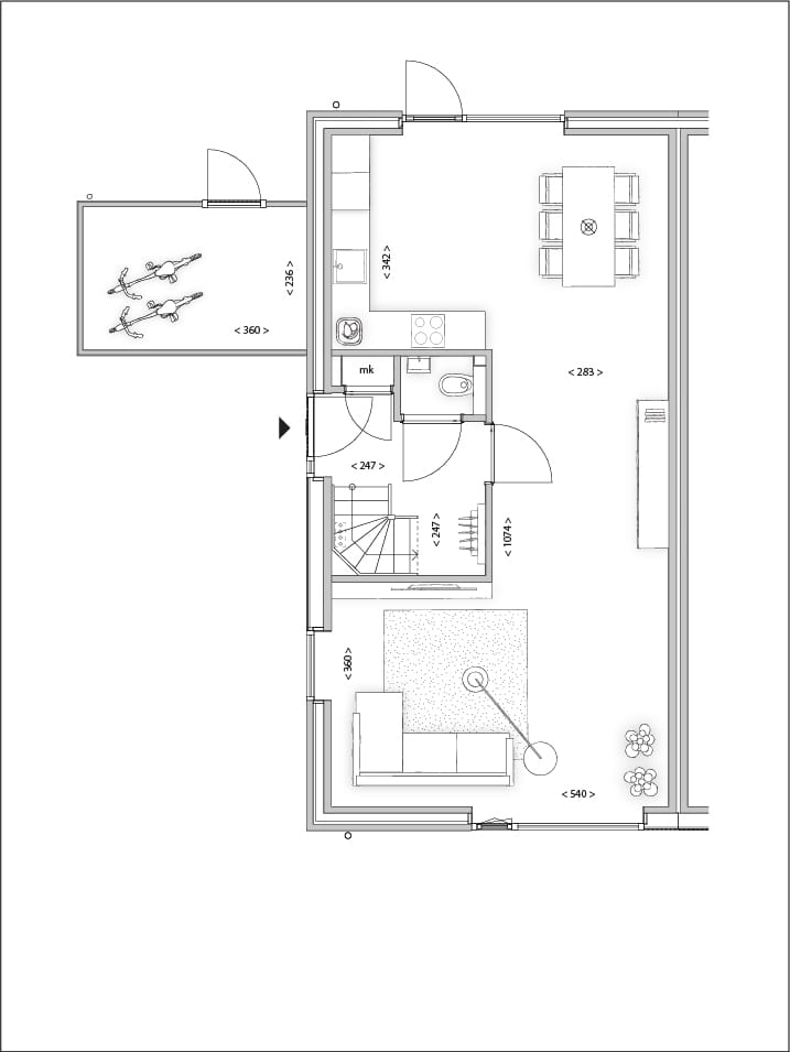
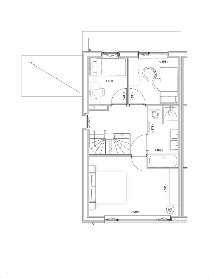
Indeling
- Aantal kamers
- 4 kamers (3 slaapkamers)
- Aantal woonlagen
- 2 woonlagen en een zolder
Energie
- Energielabel
Kadastrale gegevens
- 1 00001
- Kadastrale kaart
- Oppervlakte
- 321 m²
- Eigendomssituatie
- Volle eigendom
Buitenruimte
- Ligging
- Aan drukke weg, in woonwijk en vrij uitzicht
- Tuin
- Achtertuin
- Achtertuin
- 142 m² (13,18 meter diep en 10,75 meter breed)
- Ligging tuin
- Gelegen op het westen
Foto's 14
© 2001-2026 funda













