
020 - 2 onder 1 kapwoning Type A (Bouwnr. 020)4625 GC Bergen op ZoomNieuw Borgvliet
Verkocht
€ 612.500 v.o.n.
Omschrijving
Ben je op zoek naar een 2 onder 1 kapwoning in Markiezaten? Bouwnummer 020 wordt standaard uitgebouwd, waardoor er aan de achterkant een ruime leefkeuken ontstaat. Vanuit de achtertuin geniet je van vrij uitzicht. Ook heb je aan de achterzijde van de woning de mogelijkheid om een dakterras te realiseren. Een heerlijke plek om na een dag werken thuis te komen. Zie jij jezelf hier al wonen?
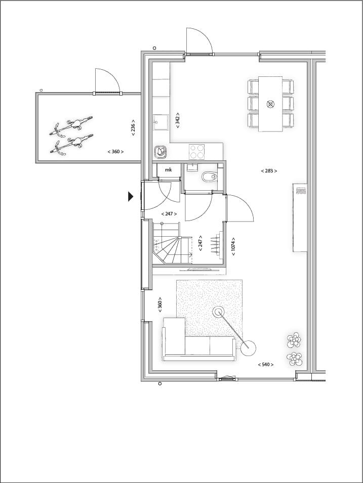
Kom binnen
De entree van de woning is aan de zijkant. Je komt binnen in de hal, hier is ook een toilet en de trap naar boven. Vanuit de hal stap je in het woongedeelte. De woonkamer ligt aan de voorkant. Aan de achterzijde van de woning ligt de keuken met toegang tot de tuin. Optioneel kun je ervoor kiezen om de woning uit te bouwen, eventueel inclusief een eet-/werk-/tuinkamer. Of zelfs een slaapkamer met badkamer.
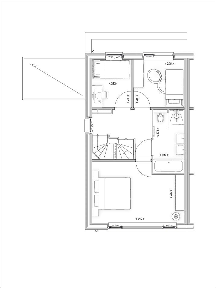
Voor iedereen een slaapkamer
Op de 1e etage zijn er 3 slaapkamers. De badkamer is voorzien van compleet sanitair, maar is ook volledig in te richten naar eigen smaak. De zolder heeft ook behoorlijk wat mogelijkheden. Laat je hem helemaal open als één grote ruimte of maak je er een extra kamer van? En wat denk je van het optionele dakterras? In de afgesloten technische ruimte is er plek voor je wasmachine en droger.
Kenmerken
Overdracht
- Laatste vraagprijs
- € 612.500 vrij op naam
- Vraagprijs per m²
- € 4.344
- Status
- Verkocht
Bouw
- Soort woonhuis
- Herenhuis, 2-onder-1-kapwoning
- Soort bouw
- Nieuwbouw
- Bouwjaar
- 2024
Oppervlakten en inhoud
- Gebruiksoppervlakten
- Wonen
- 141 m²
- Perceel
- 322 m²
- Inhoud
- 524 m³
Indeling
- Aantal kamers
- 4 kamers (3 slaapkamers)
- Aantal woonlagen
- 2 woonlagen en een zolder
Energie
- Energielabel
- A+++
Kadastrale gegevens
- 1 00001
- Kadastrale kaart
- Oppervlakte
- 322 m²
- Eigendomssituatie
- Volle eigendom
Buitenruimte
- Ligging
- Aan drukke weg, in woonwijk en vrij uitzicht
- Tuin
- Achtertuin
- Achtertuin
- 148 m² (13,77 meter diep en 10,75 meter breed)
- Ligging tuin
- Gelegen op het westen
Foto's 14
© 2001-2025 funda













