
021 - 2 onder 1 kapwoning Type B (Bouwnr. 021)4625 GC Bergen op ZoomNieuw Borgvliet
Verkocht
€ 619.000 v.o.n.
Omschrijving
Ben je op zoek naar een 2 onder 1 kapwoning in Markiezaten? Bouwnummer 021 wordt standaard uitgebouwd, waardoor er aan de achterkant een ruime leefkeuken ontstaat. Vanuit de achtertuin geniet je van vrij uitzicht en aan de voorzijde van de woning is de mogelijkheid om een dakterras te realiseren. Een woning met mogelijkheden en een heerlijke plek om na een dag werken thuis te komen! Zie jij jezelf hier al wonen?
Kom binnen
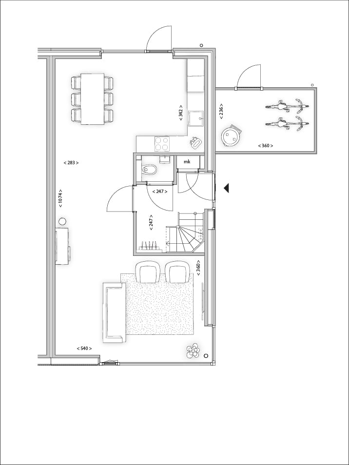
De entree is aan de zijkant. Je komt binnen in de hal, hier is ook een toilet en de trap naar boven. Vanuit de hal stap je in de grote maar vooral ook lichte woonkamer vanwege het hoge hoekraam aan de voorzijde. Aan de achterzijde ligt de keuken met toegang tot de tuin. Optioneel is een extra kamer mogelijk.
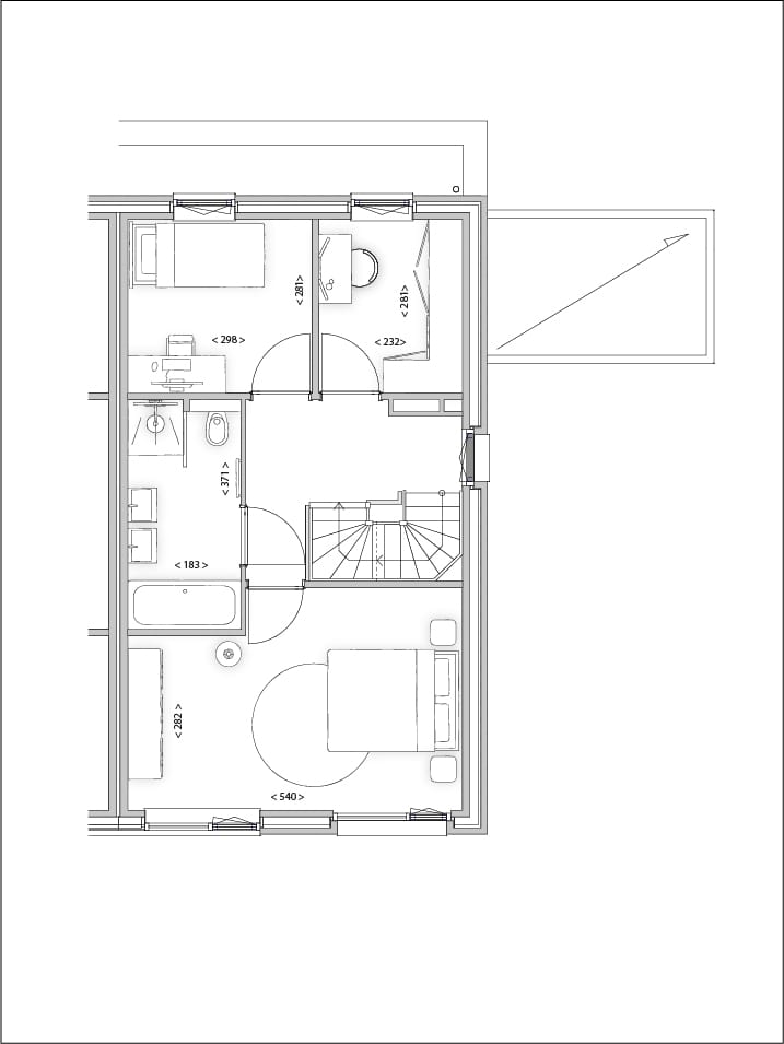
Voor iedereen een slaapkamer
Op de 1e etage zijn er 3 slaapkamers. De badkamer is voorzien van een toilet, douche, ligbad en 2 wastafels, maar is ook volledig in te richten naar eigen smaak. De zolder heeft ook behoorlijk wat mogelijkheden. Laat je hem helemaal open als één grote ruimte of maak je er een extra kamer van en/of in combinatie met een dakterras? Op de zolder is er ook plek voor je wasmachine en droger.
Kenmerken
Overdracht
- Laatste vraagprijs
- € 619.000 vrij op naam
- Vraagprijs per m²
- € 4.240
- Status
- Verkocht
Bouw
- Soort woonhuis
- Herenhuis, 2-onder-1-kapwoning
- Soort bouw
- Nieuwbouw
- Bouwjaar
- 2024
Oppervlakten en inhoud
- Gebruiksoppervlakten
- Wonen
- 146 m²
- Perceel
- 325 m²
- Inhoud
- 540 m³
Indeling
- Aantal kamers
- 4 kamers (3 slaapkamers)
- Aantal woonlagen
- 2 woonlagen en een zolder
Energie
- Energielabel
Kadastrale gegevens
- 1 00001
- Kadastrale kaart
- Oppervlakte
- 325 m²
- Eigendomssituatie
- Volle eigendom
Buitenruimte
- Ligging
- Aan drukke weg, in woonwijk en vrij uitzicht
- Tuin
- Achtertuin
- Achtertuin
- 145 m² (13,46 meter diep en 10,78 meter breed)
- Ligging tuin
- Gelegen op het westen
Foto's 14
© 2001-2026 funda













