Dit huis op Funda: https://www.funda.nl/detail/koop/bergharen/huis-molenweg-26/89219100/

Molenweg 266617 BD BergharenBergharen
€ 625.000 k.k.
Omschrijving
Bent u op zoek naar een vrijstaande woning met zeer ruime bedrijfshal, multifunctioneel in gebruik, groot woonoppervlak omdat het achterste gedeelte eenvoudig te combineren is met het voorhuis, met momenteel drie slaapkamers, een ruime badkamer en zeer veel parkeerruimte, gelegen in een gezellige woonwijk.
Kom dan naar de Molenweg in Bergharen!
De woning ligt op loopafstand van het Kulturhus De Zandloper met o.a. peuterspeelzaal, bibliotheek, basisschool, ontmoetingsruimtes, een muziekzaal, ruimten voor biljarten en de gymzaal. Maar ook op loopafstand van de Kapelberg, een rustige bosrijke omgeving met een fraai historisch gebouw. Bergharen heeft een rijk verenigingsleven, een mooie sportaccommodatie en is gelegen in de nabijheid van een groot watersport- en recreatiegebied. Door de centrale ligging in het Land van Maas en Waal zijn de plaatsen Wijchen en Druten (waar alle voorzieningen aanwezig zijn) binnen 10 autominuten, Nijmegen en Oss binnen 20 minuten te bereiken, ook bent u in vijf minuten op de A73/A50.
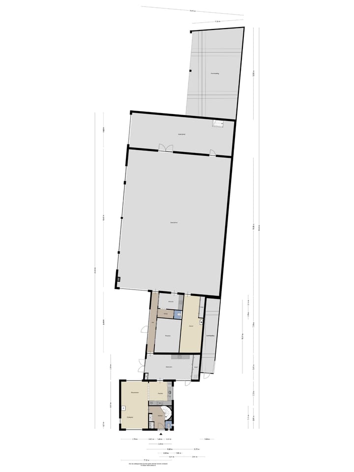
De indeling van de woning bestaande uit,
De begane grond met:
De entree, hal, meterkast, toilet en toegang tot de ruime kelder, de ruime doorzon woon-/eetkamer met airco en sfeervolle open haard, middels de boogmuur de zeer ruime L-keuken, fraai betegeld, met het ruime 5-pits gasfornuis, de mooie schouw met afzuigkap, de rvs oven en magnetron, de vaatwasser, koelkast en vriezer, aansluitend de grote bijkeuken/berging met keukenblok, wasmachine aansluiting, ruime kast met schuifdeuren, de toegang tot de zijtuin en toegang tot de inritzijde. Aansluitend het tweede gedeelte van de woning met de lange hal, de ruime eerste berging, het gangetje naar het toilet, toegang tot de bedrijfsruimte met toegang tot een extra kamer nu in gebruik als kantoor met ruime kast en de tweede cv- installatie, naastgelegen de tweede berging.
De eerste verdieping met:
De overloop, de ruime eerste slaapkamer met airco en toegang tot het dakterras, de badkamer met ruime inloopdouche, wastafelmeubel, toilet en designradiator, de ruime en lichte slaapkamer twee met airco en slaapkamer drie met dubbele inbouwkast.
De zolder is:
Bereikbaar via een vaste trap naar de bergzolder met cv-installatie
De buitenruimte met:
De voortuin met beklinkerde paden, verhoogde stenen borders met vaste planten, grassen en sierheesters, siergrind, omgeven door een metalen sierhekwerk, naastgelegen de eerste inrit.
Aan de linkerzijde de zeer ruime inrit naar de bedrijfshal, afsluitbaar met de elektrische poort.
Aan de rechterzijde de beklinkerde tuin met ruim terras en een zeer ruime overkapping en omringd door een houten schutting.
Bijgebouwen:
Grote stenen schuur/bedrijfshal (± 19.50 x 14.40 meter) voorzien van elektra, water en verwarming, houten kozijnen met dubbelglas, roldeur (3.60 m doorrijhoogte), poetslift, smeerput en bovenkraan 2000 kg hefgewicht. Aansluitend het tweede gedeelte (± 14.40 x 4.90 meter) met de toegang naar de zeer ruime kelder van ± 8.00 x 14.44 meter.
Aan de achterzijde een ruime overkapping van ± 12.90 x 7.16 meter, schuin toelopend.
Overige informatie:
- De woning met tuin en ondergrond heeft als bestemming ‘wonen’, de bedrijfshal met ondergrond en aanhorigheden
heeft een bedrijfsbestemming
- Bij het woonoppervlak is het tweede gedeelte van de woning meegenomen
- De inhoud is gebaseerd op het totale object met bedrijfshal
- Energielabel: F
- Kozijnen: Hout
- Beglazing: Geheel dubbelglas
- Cv-installatie: Remeha 2023
- Voorzieningen: Rolluiken, tv-kabel, glasvezel, airco’s, automatische bewateringsinstallatie plantenbakken, tuinkraan en
stroomaansluiting
- Woonkamer: Stucwerk wanden, pvc-vloer
- Keuken: 2010 met pvc-vloer
- Badkamer: 2016
- Kelder: Ruim e kelder van ± 7.5 m²
- Vloeren: begane grond en 1ste verdieping betonnen vloer, 2e verdieping houten vloer
- Kruipruimte: Niet aanwezig
- Schilderwerk buiten: 2023
- Parkeergelegenheid: Openbaar parkeren en op eigen terrein ± 8 auto’s
- Eternietplaten onder dak woning, asbesthoudende golfplaten op de bedrijfshal en het afdak achter de bedrijfshal
- Bouwjaar bedrijfshal 1979
- In de koopovereenkomst zal o.a. de asbest-, ouderdoms- en niet-zelfbewonen clausule opgenomen worden
Kenmerken
Overdracht
- Aangeboden sinds
- Aanvaarding
- In overleg
- Vraagprijs
- € 625.000 kosten koper
- Vraagprijs per m²
- € 3.342
- Status
- Beschikbaar
Bouw
- Soort woonhuis
- Eengezinswoning, vrijstaande woning
- Soort bouw
- Bestaande bouw
- Bouwjaar
- 1968
- Soort dak
- Zadeldak bedekt met pannen
Oppervlakten en inhoud
- Gebruiksoppervlakten
- Wonen
- 187 m²
- Overige inpandige ruimte
- 481 m²
- Gebouwgebonden buitenruimte
- 128 m²
- Perceel
- 1.365 m²
- Inhoud
- 2.479 m³
Indeling
- Aantal kamers
- 5 kamers (3 slaapkamers)
- Aantal badkamers
- 1 badkamer en 1 apart toilet
- Badkamervoorzieningen
- Inloopdouche, toilet, en wastafel
- Aantal woonlagen
- 2 woonlagen, een zolder, en een kelder
Energie
- Energielabel
- F
- Isolatie
- Dubbel glas
- Verwarming
- Cv-ketel
- Warm water
- Cv-ketel
- Cv-ketel
- Remeha (gas gestookt combiketel uit 2023, eigendom)
Kadastrale gegevens
- BERGHAREN H 1208
- Kadastrale kaart
- Oppervlakte
- 503 m²
- Eigendomssituatie
- Volle eigendom
- BERGHAREN H 1209
- Kadastrale kaart
- Oppervlakte
- 862 m²
- Eigendomssituatie
- Volle eigendom
Buitenruimte
- Tuin
- Voortuin en zijtuin
- Voortuin
- 66 m² (11,00 meter diep en 6,00 meter breed)
- Ligging tuin
- Gelegen op het noorden
Garage
- Soort garage
- Niet aanwezig, wel mogelijk
Parkeergelegenheid
- Soort parkeergelegenheid
- Op eigen terrein en openbaar parkeren
Foto's 37
Plattegronden 5
© 2001-2025 funda









































