Dit huis op Funda: https://www.funda.nl/detail/koop/berghem/huis-landbouwlaan-217/43858937/

Omschrijving
Berghem - Landbouwlaan 217
Een fraaie tussenwoning gelegen in een jonge wijk Piekenhoef, met uitvalswegen en voorzieningen nabij. Deze woning is recent voorzien van maar liefst 16 zonnepanelen, dus klaar voor de toekomst.
Deze woning is gelegen in een jonge woonwijk op loopafstand van de basisschool, het bospark met de aansluitende bosgebieden en in de directe nabijheid van de autosnelwegen richting Nijmegen, Eindhoven en 's-Hertogenbosch.
Een fijne eengezinswoning om zo te betrekken!
Indeling:
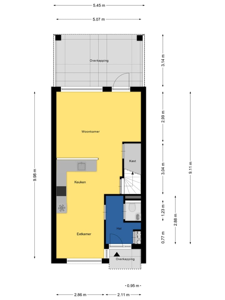
Begane grond: Hal, toilet, meterkast, woonkamer, keuken, trappenkast
Eerste verdieping: Overloop, ruime berging/witgoedruimte, 3 slaapkamers, cv-kast en een ruime badkamer
Extra: Vrijstaande houten berging
Kenmerken.
* Inhoud 352 m³, woonoppervlakte 100 m²
* Perceel 131 m², bouwjaar 2005
* Energielabel A +++
* Je betreedt het woon/leefgedeelte via de hal, met daarin het toilet
* In de woonkamer bevindt zich een trappenkast als praktische opbergruimte
* De keuken (2005) is voorzien van een granieten blad, oven en koelkast. De vaatwasser en inductiekookplaat dateren uit 2022.
* De eerste verdieping biedt plek aan een overloop, 3 slaapkamers, berging, CV kast en een badkamer
* De drie slaapkamers hebben een variërende oppervlakte van ongeveer 6 m², 11 m² en 12 m²
* In de badkamer (2018) vind je een inloopdouche, een wastafel met meubel, toilet, decoradiator en een praktisch raam
* In de berging, van ca. 5m², bevindt zich de WA opstelling
* De achtertuin, ca. 72 m², is gelegen op het noorden en heeft een grasgazon
* Achterin de tuin staat een praktische berging, tevens is er door de achterom toegang tot de achtergelegen brandgang
* Aansluitend aan de woning is er een terras gecreëerd onder de overkapping
* De voortuin is recent samen met de buren vernieuwd
* Complete woning voorzien van een laminaatvloer m.u.v. de hal en natte ruimtes
* HR++ glas
* CV-ketel Remeha, januari 2025!
* 16 zonnepanelen (oktober 2023) met 10 jaar garantie
* Meterkast vernieuwd in 2023, na plaatsing van de zonnepanelen
* Uitzicht op een groenstrook voor de woning en een wijkpark
* Centrale ligging in de wijk nabij school en in onmiddellijke nabijheid van natuurgebied (Herperduin)
Interesse, binnenkijken? Dat kan! Neem contact met ons op voor een bezichtiging.
Kenmerken
Overdracht
- Laatste vraagprijs
- € 400.000 kosten koper
- Vraagprijs per m²
- € 4.000
- Status
- Verkocht
Bouw
- Soort woonhuis
- Eengezinswoning, tussenwoning
- Soort bouw
- Bestaande bouw
- Bouwjaar
- 2005
- Soort dak
- Zadeldak bedekt met bitumineuze dakbedekking
Oppervlakten en inhoud
- Gebruiksoppervlakten
- Wonen
- 100 m²
- Gebouwgebonden buitenruimte
- 19 m²
- Externe bergruimte
- 4 m²
- Perceel
- 131 m²
- Inhoud
- 352 m³
Indeling
- Aantal kamers
- 4 kamers (3 slaapkamers)
- Aantal badkamers
- 1 badkamer
- Badkamervoorzieningen
- Inloopdouche, toilet, wastafel, en wastafelmeubel
- Aantal woonlagen
- 2 woonlagen
- Voorzieningen
- Glasvezelkabel, mechanische ventilatie, TV kabel, en zonnepanelen
Energie
- Energielabel
- A+++
- Isolatie
- Dakisolatie, HR-glas, muurisolatie en vloerisolatie
- Verwarming
- Cv-ketel
- Warm water
- Cv-ketel
- Cv-ketel
- Remeha (gas gestookt combiketel uit 2025, eigendom)
Kadastrale gegevens
- BERGHEM B 5549
- Kadastrale kaart
- Oppervlakte
- 131 m²
- Eigendomssituatie
- Volle eigendom
Buitenruimte
- Ligging
- In woonwijk en vrij uitzicht
- Tuin
- Achtertuin
- Achtertuin
- 72 m² (12,00 meter diep en 6,00 meter breed)
- Ligging tuin
- Gelegen op het noorden bereikbaar via achterom
Bergruimte
- Schuur/berging
- Vrijstaande houten berging
- Voorzieningen
- Elektra
Parkeergelegenheid
- Soort parkeergelegenheid
- Openbaar parkeren
Foto's 39
© 2001-2025 funda






































