Dit huis op Funda: https://www.funda.nl/detail/koop/bergschenhoek/huis-hoeksekade-76/43811734/

Omschrijving
Wonen aan de Hoeksekade in Bergschenhoek – Rust, ruimte en natuur binnen handbereik!
Op een prachtige locatie in Bergschenhoek, aan de geliefde Hoeksekade, staat deze 4-kamer eengezins hoekwoning te koop. De woning biedt de mogelijkheid om uw auto te parkeren op eigen terrein en heeft een diepe achtertuin waar u heerlijk kunt genieten in de zomermaanden.
De Hoeksekade biedt het beste van twee werelden: een groene, rustige omgeving én uitstekende bereikbaarheid van voorzieningen en steden zoals Rotterdam en Den Haag.
Voor de mensen die houden van het buitenleven is naast de diepe achtertuin ook op steenworpafstand het natuur- en recreatiegebied het Lage Bergse Bos, een uitgestrekt natuurgebied met wandel- en fietspaden, waterpartijen en speelweides. Dit maakt de locatie perfect voor natuurliefhebbers, sportievelingen en gezinnen die graag buiten zijn. Daarnaast liggen ook de natuur- en recreatiegebieden ''Rottemeren en het Hoge Bergse Bos'' in de nabije omgeving.
INDELING
BEGANE GROND:
Via de voortuin, waar je ook een auto kunt parkeren, bereik je de voordeur.
Tevens is er de mogelijkheid om de auto achter in de tuin te parkeren.
Entree via de hal met trapopgang naar de eerste verdieping. De woonkamer is voorzien van een nette laminaatvloer en een praktische trapkast voor extra opbergruimte.
Aan de achterzijde van de woning bevindt zich de sfeervolle leefkeuken, een ideale plek om gezellig te dineren. Deze moderne keuken is in 2020 geplaatst en uitgerust met diverse inbouwapparatuur, waaronder een inductiekookplaat, oven, magnetron, vaatwasser en een koel-vriescombinatie.
De badkamer bevindt zich op de begane grond en is bereikbaar via een tussenportaal achter de keuken. In dit portaal bevindt zich tevens een apart toilet. De badkamer is praktisch ingericht en voorzien van een doucheruimte en een wastafelmeubel.
In de bijkeuken bevinden zich de aansluitingen voor zowel de wasmachine als de droger, en vanuit hier loop je direct de achtertuin in.
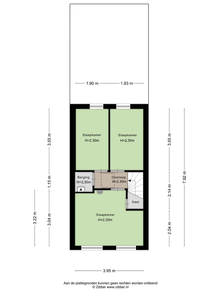
1E VERDIEPING:
Overloop met toegang tot een bergvliering (tevens ook verarmd) via een vlizotrap. Verder bevinden zich op deze verdieping drie slaapkamers en een bergkast met de opstelling van de cv-ketel.
TUIN:
De heerlijk diepe achtertuin ligt op het zuid/westen en beschikt over twee opstallen achterin, ideaal voor de hobbyist die extra ruimte nodig heeft. Onlangs zijn er nieuwe schuttingen geplaatst en is de oprit opnieuw bestraat.
ALGEMEEN:
- Eigen grond
- Meterkast vervangen in 2019
- Nieuwe keuken geplaatst in 2020
- Volledig dubbel glas
- Dichtbij het groen (natuur- en recreatiegebied)
- Oplevering in overleg
BIJZONDERHEDEN:
* Er is een recht van overpad voor de woning van nummer 78 om via het perceel van 76 bij zijn achtertuin te komen.
* Onderdeel van de koop is dat er een erfdienstbaarheid van weg wordt gevestigd op de percelen van nummer 76 en 72 om te komen en gaan met personenauto's, motorvoertuigen en aan de hand gevoerde objecten op wielen. De erfdienstbaarheid strekt zich tot waar de aanwezige bebouwing op een der kavels bevindt. Het toekomstige onderhoud komt voor rekening van beide eigenaren.
* Vanaf 1 januari 2023 zijn makelaars wettelijk verplicht een biedlogboek bij te houden bij de verkoop van bestaande woningen (en wanneer de koper en/of de verkoper een particulier is). Biedingen kun je per die datum, en indien gewenst, nog steeds mondeling met ons bespreken maar dien je daarna digitaal aan ons te bevestigen via jouw MOVE-account. Het biedlogboek is niet van toepassing bij de verkoop van nieuwbouw, recreatiewoningen, bedrijfswoningen, garageboxen, bouwkavels, woon-/bedrijfspanden en (agrarische) bedrijfsobjecten zonder woonbestemming.
* Bij het sluiten van een koopovereenkomst verklaar je je akkoord dat ondertekening van de koopovereenkomst eventueel digitaal plaatsvindt (met iDIN identificatie) door gebruikmaking van het platform van DocuSign.
* De koopovereenkomst wordt opgesteld conform het meest recente model dat is vastgesteld door de NVM, de Consumentenbond en Vereniging Eigen Huis en aangevuld met (indien van toepassing) enkele aanvullende artikelen.
* Vanzelfsprekend staat het je vrij om, indien gewenst, een bouwkundige uit te nodigen de woning bouwkundig voor je te keuren teneinde jezelf een goed beeld te kunnen vormen van de bouwkundige staat van de woning.
* Er is pas sprake van een rechtsgeldige koop als de particuliere verkoper en de particuliere koper de koopovereenkomst hebben ondertekend.
AANVULLENDE ARTIKELEN:
- Omdat het huis ouder is dan 50 jaar, is de 'ouderdomsclausule' van toepassing.
BERGSCHENHOEK
Bergschenhoek is een sfeervol dorp in de gemeente Lansingerland, gelegen in Zuid-Holland, dichtbij Rotterdam, Delft en Den Haag. Bergschenhoek staat bekend om zijn groene omgeving, kindvriendelijke wijken en uitstekende voorzieningen, waardoor het een ideale plek is voor gezinnen, natuurliefhebbers en iedereen die graag rustig woont, maar toch centraal in de Randstad.
ENTHOUSIAST?
Dat kunnen wij ons voorstellen. Maak dan snel een afspraak voor een oriënterende bezichtiging van deze gezinswoning. Je eigen woning nog niet verkocht? Wij komen graag bij je langs! Bel voor een vrijblijvend verkoopgesprek.
TOT SLOT
Deze informatie is door ons met de nodige zorgvuldigheid samengesteld. Onzerzijds wordt echter geen enkele aansprakelijkheid aanvaard voor enige onvolledigheid, onjuistheid of anderszins dan wel de gevolgen daarvan. Alle opgegeven maten en oppervlakten zijn indicatief. Van toepassing zijn de NVM voorwaarden. Ooms Lansingerland behartigt de belangen van de verkopende partij. Ons advies bij het kopen van jouw nieuwe woning is dan ook om je eigen NVM-aankoopmakelaar mee te nemen.
Kenmerken
Overdracht
- Laatste vraagprijs
- € 395.000 kosten koper
- Vraagprijs per m²
- € 4.702
- Status
- Verkocht
Bouw
- Soort woonhuis
- Eengezinswoning, eindwoning
- Soort bouw
- Bestaande bouw
- Bouwjaar
- 1930
Oppervlakten en inhoud
- Gebruiksoppervlakten
- Wonen
- 84 m²
- Externe bergruimte
- 19 m²
- Perceel
- 253 m²
- Inhoud
- 299 m³
Indeling
- Aantal kamers
- 4 kamers (3 slaapkamers)
- Aantal badkamers
- 1 badkamer en 1 apart toilet
- Badkamervoorzieningen
- Douche en wastafelmeubel
- Aantal woonlagen
- 2 woonlagen
- Voorzieningen
- Glasvezelkabel en TV kabel
Energie
- Energielabel
- G
- Isolatie
- Dubbel glas
- Verwarming
- Cv-ketel
- Warm water
- Cv-ketel
- Cv-ketel
- Remeha (gas gestookt combiketel uit 2013, eigendom)
Kadastrale gegevens
- BERGSCHENHOEK B 4051
- Kadastrale kaart
- Oppervlakte
- 253 m²
- Eigendomssituatie
- Volle eigendom
Buitenruimte
- Ligging
- Aan bosrand, aan rustige weg, in bosrijke omgeving en in woonwijk
- Tuin
- Achtertuin
- Achtertuin
- 129 m² (21,23 meter diep en 6,07 meter breed)
- Ligging tuin
- Gelegen op het zuidwesten bereikbaar via achterom
Bergruimte
- Schuur/berging
- Vrijstaande stenen berging
- Voorzieningen
- Elektra
Parkeergelegenheid
- Soort parkeergelegenheid
- Op eigen terrein
Foto's 36
© 2001-2025 funda



































