Dit huis op Funda: https://www.funda.nl/detail/koop/bergschenhoek/huis-mesdagstraat-7/43882818/

Omschrijving
Deze keurig onderhouden woning biedt alles wat u zoekt voor een comfortabel gezinsleven! Gelegen in een rustige en groene wijk, vindt u hier een kindvriendelijke omgeving met alle belangrijke voorzieningen binnen handbereik. Denk aan scholen, kinderopvang, winkels, openbaar vervoer en uitvalswegen die allemaal in de nabije omgeving liggen. Met het prachtige Annie M.G. Schmidtpark op loopafstand, is dit de ideale locatie voor een gezin!
De woning zelf heeft een aantrekkelijke indeling met maar liefst 5 slaapkamers, waardoor er volop ruimte is voor het hele gezin. De moderne keuken is van alle gemakken voorzien, de prachtige badkamer beschikt over een inloopdouche, toilet, dubbele wastafel en een designradiator.
Daarnaast kunt u heerlijk genieten van de verzorgde voor- en achtertuin met een stenen berging voor extra opbergruimte. Deze woning biedt alles voor een comfortabele en praktische levensstijl in een rustige, groene omgeving.
Indeling:
Begane grond:
Via de entree komt u in de hal, die is voorzien van een modern toilet met fontein en een praktische kast met de CV-installatie. De meterkast bevindt zich eveneens in de hal. De lichte woonkamer biedt veel ruimte en een prettige sfeer. Aansluitend vindt u de moderne keuken, die van alle gemakken is voorzien, zoals een combi-oven, koelkast, vriezer, vaatwasser, gasfornuis en afzuigkap. Vanuit de hal is via de trapopgang de eerste verdieping bereikbaar.
Eerste verdieping:
Op de eerste verdieping biedt de overloop toegang tot twee royale slaapkamers. De grootste slaapkamer (ca. 18,7 m²) is voorzien van een schuifkastenwand, de tweede slaapkamer heeft een oppervlakte van ca. 9,3 m². De luxe badkamer op deze verdieping is voorzien van een dubbele wastafel, een inloopdouche, een toilet en een designradiator.
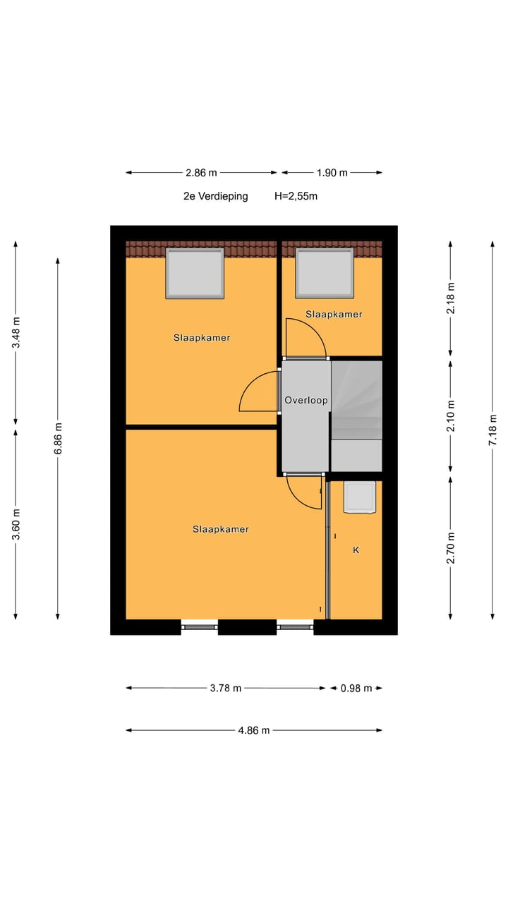
Tweede verdieping:
Via de trapopgang komt u op de tweede verdieping, waar u een overloop treft met toegang tot drie slaapkamers. De slaapkamers hebben afmetingen van respectievelijk ca. 10 m², 4,1 m² en 17,5 m². De grootste slaapkamer heeft een vaste kast met wasmachine aansluiting en extra bergruimte.
Bijzonderheden:
- Moderne keuken met hoogwaardige apparatuur.
- Strak afgewerkte badkamer.
- Ruime voor- en achtertuin met stenen berging.
- Vijf slaapkamers, ideaal voor een gezin of thuiskantoor.
- Kindvriendelijke buurt met scholen, winkels en het Annie M.G. Schmidtpark op loopafstand.
- Uitstekende bereikbaarheid van OV en uitvalswegen.
- Goed onderhouden woning, klaar voor directe bewoning.
- Energielabel A voor lage energiekosten en duurzaamheid.
Kortom, een ideale gezinswoning met alles wat u nodig heeft binnen handbereik! Maak snel een afspraak voor een bezichtiging!
Interesse in deze woning? Schakel direct uw eigen NVM-aankoopmakelaar in. Uw NVM-aankoopmakelaar komt op voor uw belang en bespaart u tijd, geld en zorgen. Adressen van collega NVM-aankoopmakelaars vindt u op de website van NVM Haaglanden.
Kenmerken
Overdracht
- Laatste vraagprijs
- € 469.000 kosten koper
- Vraagprijs per m²
- € 4.078
- Status
- Verkocht
Bouw
- Soort woonhuis
- Eengezinswoning, tussenwoning
- Soort bouw
- Bestaande bouw
- Bouwjaar
- 1998
- Soort dak
- Samengesteld dak bedekt met bitumineuze dakbedekking en pannen
Oppervlakten en inhoud
- Gebruiksoppervlakten
- Wonen
- 115 m²
- Externe bergruimte
- 7 m²
- Perceel
- 113 m²
- Inhoud
- 383 m³
Indeling
- Aantal kamers
- 6 kamers (5 slaapkamers)
- Aantal badkamers
- 1 badkamer en 1 apart toilet
- Badkamervoorzieningen
- Dubbele wastafel, inloopdouche, en toilet
- Aantal woonlagen
- 3 woonlagen
- Voorzieningen
- Dakraam
Energie
- Energielabel
- A
- Isolatie
- Volledig geïsoleerd
- Verwarming
- Cv-ketel
- Warm water
- Cv-ketel
- Cv-ketel
- Vaillant (gas gestookt combiketel uit 2013, eigendom)
Kadastrale gegevens
- BERGSCHENHOEK A 5032
- Kadastrale kaart
- Oppervlakte
- 112 m²
- Eigendomssituatie
- Volle eigendom
- BERGSCHENHOEK A 5039
- Kadastrale kaart
- Oppervlakte
- 1 m² (deelperceel)
- Eigendomssituatie
- Mandelig
Buitenruimte
- Ligging
- In woonwijk
- Tuin
- Achtertuin en voortuin
- Achtertuin
- 48 m² (9,50 meter diep en 5,10 meter breed)
- Ligging tuin
- Gelegen op het noordwesten
Bergruimte
- Schuur/berging
- Vrijstaande stenen berging
Parkeergelegenheid
- Soort parkeergelegenheid
- Openbaar parkeren
Foto's 49
© 2001-2025 funda
















































