
Polderwijk fase 3 | Bouwnummer 016 (Bouwnr. 016)2661 AA BergschenhoekWilderszijde
€ 1.115.000 v.o.n.
Omschrijving
Ben jij met je gezin op zoek naar ruimte en comfort met veel groen in de wijk en de omgeving, maar dicht bij de reuring van een stad? In deze riante Vrijstaande Villa type Flora is het heerlijk thuiskomen, met de luxe van een tuin rondom het huis. Fraaie donkere dakpannen geven de woning een authentieke en aantrekkelijke uitstraling en met 2 parkeerplaatsen op eigen terrein heb je altijd plek voor de auto. De woning is energiezuinig (label A++++), volledig geïsoleerd en heeft vloerverwarming en -koeling. Altijd een aangenaam binnenklimaat dus.
Ruimte en luxe op de begane grond
Kom binnen in de royale hal met een apart toilet en de trap naar bovenliggende etages. Ook heb je hier toegang tot de aangrenzende stenen berging, ideaal voor fietsen en sportspullen. In de grote woonkamer valt het daglicht van alle kanten naar binnen, wát een ruimte! Vanuit daar loop je zo de ruime tuin in, waardoor binnen en buiten naadloos in elkaar overvloeien.
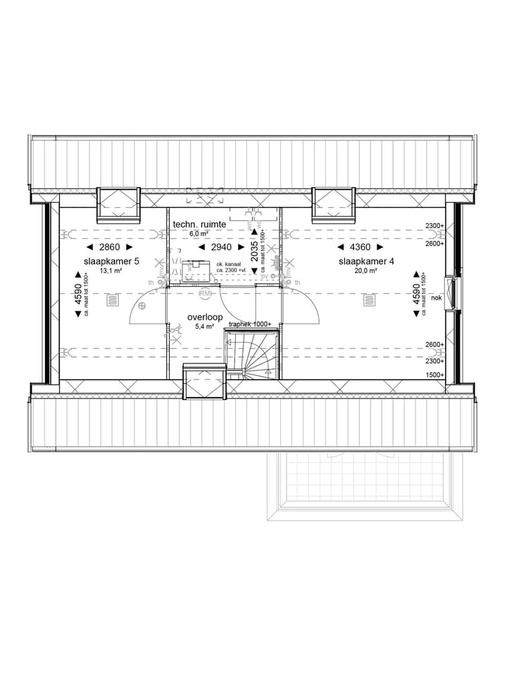
Comfort en plek voor iedereen op de verdiepingen
Op de 1e verdieping vind je 3 lichte slaapkamers. Schuif de gordijnen open en kijk uit over de autoluwe wijk en het groen. De riante badkamer heeft ruimte voor een ligbad, douche en wastafel. Ook vind je op deze etage een apart toilet. Op zolder zijn nog 2 ruime slaapkamers en een aparte technische ruimte met aansluiting voor de wasmachine en droger. Plek genoeg voor het hele gezin!
Kenmerken
Overdracht
- Aangeboden sinds
- Aanvaarding
- In overleg
- Vraagprijs
- € 1.115.000 vrij op naam
- Vraagprijs per m²
- € 6.598
- Status
- Beschikbaar
Bouw
- Soort woonhuis
- Villa, vrijstaande woning
- Soort bouw
- Nieuwbouw
- Bouwjaar
- 2026
Oppervlakten en inhoud
- Gebruiksoppervlakten
- Wonen
- 169 m²
- Inhoud
- 490 m³
Indeling
- Aantal kamers
- 6 kamers (5 slaapkamers)
- Aantal woonlagen
- 2 woonlagen en een zolder
Energie
- Energielabel
- Niet beschikbaar
Buitenruimte
- Ligging
- Aan rustige weg, aan water, in woonwijk en vrij uitzicht
- Tuin
- Achtertuin en voortuin
Foto's 4
© 2001-2026 funda



