
Omschrijving
Deze ruim opgezette en goed onderhouden eengezinswoning heeft een heerlijk rustige ligging op korte afstand van het zeer uitgebreide centrum van Berkel en Rodenrijs. De woning is uitgevoerd met een ruime doorzonwoonkamer met een prachtige lichtinval, uitgebouwde keuken met een moderne hoekopstelling voorzien van inbouwapparatuur, stijlvolle badkamer met ligbad, fraaie toiletruimte, 3 grote slaapkamers + een open study (totaal minstens 4 slaapkamers mogelijk), een dakkapel en keurig aangelegde achtertuin met grote berging. De ligging nabij scholen, winkels, speeltuin De Kievit, het Huijgenspark en openbaar vervoer is uitstekend en parkeren kan direct voor de woning. Daarnaast zijn grote steden zoals Rotterdam, Delft, Zoetermeer en Den Haag snel en goed te bereiken.
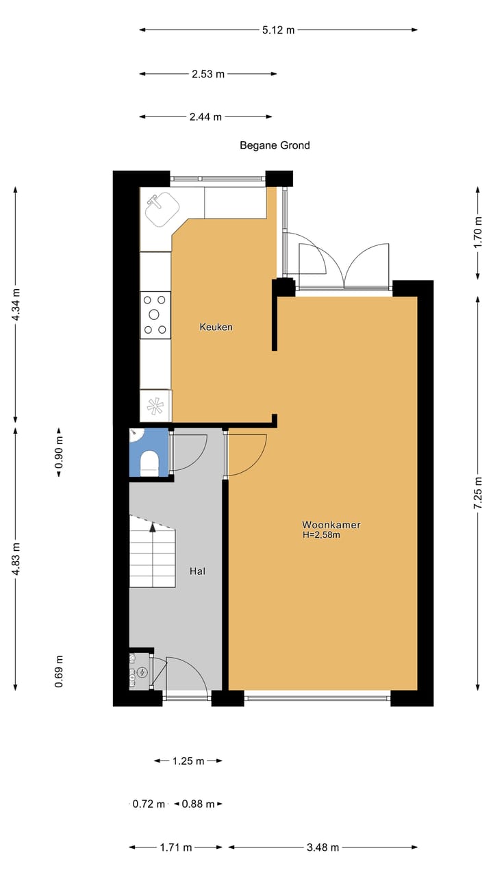
Indeling
Begane grond:
Entreehal met trapopgang, fraaie toiletruimte en meterkast. De doorzonwoonkamer van ca. 23m² geniet door de grote raampartijen en vernieuwde achterpui een prachtige lichtinval. De aan de achterzijde gesitueerde keuken van ca. 11m² is uitgebouwd en ingericht met een moderne hoekopstelling voorzien van de volgende inbouwapparatuur: koel-/vriescombinatie, vaatwasser, gaskookplaat, afzuigschouw, magnetron en oven. De begane grondvloer is belegd met laminaat. De achtertuin is fraai aangelegd met sierbestrating, schuttingen, een achterom en grote, stenen berging.
Eerste verdieping:
Overloop met toegang tot de vergrote en modern uitgevoerde badkamer, welke is ingericht met een ligbad/douche, wastafelmeubel en zwevend toilet. Zowel aan de voor- als achterzijde is er een woningbrede slaapkamer (ca. 15m² en ca. 12m²), welke desgewenst te splitsen zijn in meerdere slaap- en/of werkkamers. De achterslaapkamer beschikt over een klein balkon. Ook deze woonlaag is voorzien van laminaat.
Tweede verdieping:
Flinke overloop, welke uitstekend dienst kan doen als open study, met opstelplaatsen voor de wasmachine, droger en cv-combiketel. Grote zolderkamer van ca. 9m² voorzien van een laminaatvloer en een gedeelde dakkapel met de overloop.
Bijzonderheden:
- Goed onderhouden woning met een rustige ligging nabij het centrum.
- Keurig aangelegde achtertuin met grote schuur.
- Moderne keukenopstelling, badkamer en toiletruimte.
- Uitgebouwde keuken en dakkapel op de 2e verdieping.
- Totaal minstens 4 slaap- en/of werkkamers mogelijk.
Interesse in deze woning? Schakel direct uw eigen NVM-aankoopmakelaar in. Uw NVM-aankoopmakelaar komt op voor uw belang en bespaart u tijd, geld en zorgen.
Adressen van collega NVM-aankoopmakelaars vindt u op de website van NVM Haaglanden.
Kenmerken
Overdracht
- Laatste vraagprijs
- € 435.000 kosten koper
- Vraagprijs per m²
- € 4.307
- Status
- Verkocht
Bouw
- Soort woonhuis
- Eengezinswoning, tussenwoning
- Soort bouw
- Bestaande bouw
- Bouwjaar
- 1960
- Soort dak
- Samengesteld dak bedekt met overig en pannen
Oppervlakten en inhoud
- Gebruiksoppervlakten
- Wonen
- 101 m²
- Gebouwgebonden buitenruimte
- 2 m²
- Externe bergruimte
- 7 m²
- Perceel
- 114 m²
- Inhoud
- 343 m³
Indeling
- Aantal kamers
- 4 kamers (3 slaapkamers)
- Aantal badkamers
- 1 badkamer en 1 apart toilet
- Badkamervoorzieningen
- Ligbad, toilet, en wastafel
- Aantal woonlagen
- 3 woonlagen
- Voorzieningen
- Glasvezelkabel en TV kabel
Energie
- Energielabel
- D
- Isolatie
- Gedeeltelijk dubbel glas
- Verwarming
- Cv-ketel
- Warm water
- Cv-ketel
- Cv-ketel
- Combiketel (gas gestookt combiketel, eigendom)
Kadastrale gegevens
- BERKEL EN RODENRIJS A 2562
- Kadastrale kaart
- Oppervlakte
- 114 m²
- Eigendomssituatie
- Volle eigendom
Buitenruimte
- Ligging
- In woonwijk
- Tuin
- Achtertuin en voortuin
- Achtertuin
- 44 m² (8,00 meter diep en 5,50 meter breed)
- Balkon/dakterras
- Balkon aanwezig
Bergruimte
- Schuur/berging
- Vrijstaande stenen berging
Parkeergelegenheid
- Soort parkeergelegenheid
- Openbaar parkeren
Foto's 52
© 2001-2025 funda



















































