
Omschrijving
Rustig wonen aan de Lavendelstraat 21 in Beuningen
Deze TUSSENWONING met BERGING en diepe achtertuin ligt aan een rustige straat in een kindvriendelijke en ruim opgezette woonwijk. Je woont hier aan de Lavendelstraat 21 in Beuningen Gld, op loopafstand van het centrum met supermarkten, winkels en horeca binnen handbereik. Ook scholen, sportverenigingen en het openbaar vervoer zijn dichtbij. En met Nijmegen op fietsafstand en directe aansluiting op de A50 en A73 is de bereikbaarheid uitstekend.
Bijzonderheden
- Bouwjaar: 1971
- Woonoppervlakte: 86 m², de meters op de tweede verdieping mogen volgens de NEN2580-norm niet tot woonoppervlak gerekend worden. Het genoemde woonoppervlak betreft dus alleen de meters op de begane grond en de eerste verdieping.
- Overige inpandige ruimte: 19 m²
- Gebouwgebonden buitenruimte: 19 m²
- Externe bergruimte: 13 m²
- Inhoud: 358 m³
- Perceeloppervlakte: 171 m²
- Energielabel: C
- Dakpannen vernieuwd in 2023, kap geïsoleerd met glaswol
- Vloerisolatie (2020) met HR++ bodemparels
- Isolerende beglazing, rolluiken (voorzijde), zonwering (achterzijde)
- Glasvezel aanwezig
Indeling
Begane grond
Je komt binnen in de hal met toiletruimte, voorzien van een vrij hangend toilet, fonteintje en raam. De woonkamer is licht en ruim dankzij grote ramen aan zowel de voor- als achterzijde. Aan de achterzijde bevindt zich de open keuken (2017) met inductiekookplaat, vlakscherm afzuigkap, koelkast, vrieskast, hete lucht oven en een handige provisiekast. Via de keuken heb je toegang tot de achtertuin met overkapping.
Eerste verdieping
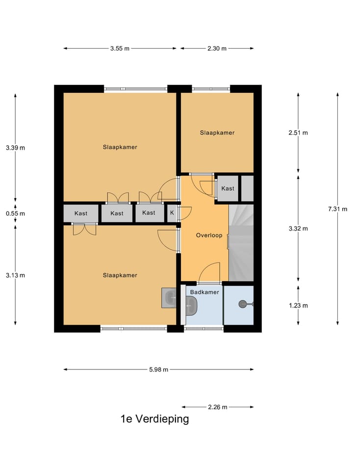
Op de eerste verdieping zijn drie slaapkamers en een badkamer. De slaapkamer aan de achterzijde beschikt over twee bergkasten, de slaapkamer aan de voorzijde over één. De badkamer (2012) is uitgerust met een douche, vaste wastafel, toiletkast en een raam voor daglicht en ventilatie.
Zolderverdieping
Een vaste trap leidt naar de voorzolder met dakkapel (1995) en de opstelling van de cv-ketel (Nefit Trendline HRC CW4, 2014, eigendom). Op deze verdieping bevindt zich ook een slaapkamer met dakkapel en bergruimte achter de knieschotten.
Tuin
De woning heeft een verzorgde voor- en achtertuin. De achtertuin ligt op het oosten en beschikt over een terras en een (hoge) overkapping van ca. 3 meter diep (2014). De vrijstaande houten berging is voorzien van elektra en heeft nieuwe golfplaten gekregen in 2025.
Nieuwsgierig geworden naar Lavendelstraat 21 in Beuningen Gld? Neem contact met ons op voor een bezichtiging – je bent van harte welkom!
Kenmerken
Overdracht
- Laatste vraagprijs
- € 350.000 kosten koper
- Vraagprijs per m²
- € 4.070
- Status
- Verkocht
Bouw
- Soort woonhuis
- Eengezinswoning, tussenwoning
- Soort bouw
- Bestaande bouw
- Bouwjaar
- 1971
- Soort dak
- Zadeldak bedekt met pannen
Oppervlakten en inhoud
- Gebruiksoppervlakten
- Wonen
- 86 m²
- Overige inpandige ruimte
- 19 m²
- Gebouwgebonden buitenruimte
- 19 m²
- Externe bergruimte
- 13 m²
- Perceel
- 171 m²
- Inhoud
- 358 m³
Indeling
- Aantal kamers
- 5 kamers (4 slaapkamers)
- Aantal badkamers
- 1 badkamer en 1 apart toilet
- Badkamervoorzieningen
- Douche en wastafel
- Aantal woonlagen
- 2 woonlagen en een zolder
- Voorzieningen
- Natuurlijke ventilatie en TV kabel
Energie
- Energielabel
- Isolatie
- Dakisolatie, dubbel glas, HR-glas en vloerisolatie
- Verwarming
- Cv-ketel
- Warm water
- Cv-ketel
- Cv-ketel
- Nefit Trendline HRC CW4 (gas gestookt combiketel uit 2014, eigendom)
Kadastrale gegevens
- BEUNINGEN B 1777
- Kadastrale kaart
- Oppervlakte
- 171 m²
- Eigendomssituatie
- Volle eigendom
Buitenruimte
- Ligging
- Aan rustige weg, in centrum en in woonwijk
- Tuin
- Achtertuin, voortuin en zonneterras
- Achtertuin
- 83 m² (14,00 meter diep en 5,90 meter breed)
- Ligging tuin
- Gelegen op het oosten
Bergruimte
- Schuur/berging
- Vrijstaande houten berging
- Voorzieningen
- Elektra
Foto's 43
© 2001-2026 funda










































