
Omschrijving
Ben je op zoek naar een sfeervolle, betaalbare woning met karakter? Dan hebben we goed nieuws voor je! Deze jaren ’30 eengezinswoning is er helemaal klaar voor om jouw nieuwe thuis te worden.
Zowel binnen als buiten is er aan ruimte geen gebrek! Zo is de keuken verplaatst naar de uitbouw, zijn er vier slaapkamers met zelfs een mogelijkheid voor een vijfde en is de woning voorzien van een diepe zonnige achtertuin. De woning is degelijk, altijd goed onderhouden en kan naar wens op onderdelen worden gemoderniseerd naar je eigen stijl.
De woning is gelegen in een kindvriendelijke woonomgeving, in de directe nabijheid van diverse (basis)scholen en winkelcentrum 'Plantage'. Het is de ideale plek voor zowel gezinnen met kinderen als voor koppels of alleenstaanden die op zoek zijn naar een rustige en toch levendige woonlocatie. In de buurt vind je het prachtige wandelpark Westerhout waar je kunt genieten van de natuur en frisse lucht. Bovendien bevindt de woning zich op een korte afstand van de uitvalswegen A9/A22, waardoor reizen makkelijk en snel is.
Bouwjaar: ca. 1933
Gebruiksoppervlak woonfunctie: 112 m²
Perceeloppervlakte: 118 m²
Inhoud: 388 m³
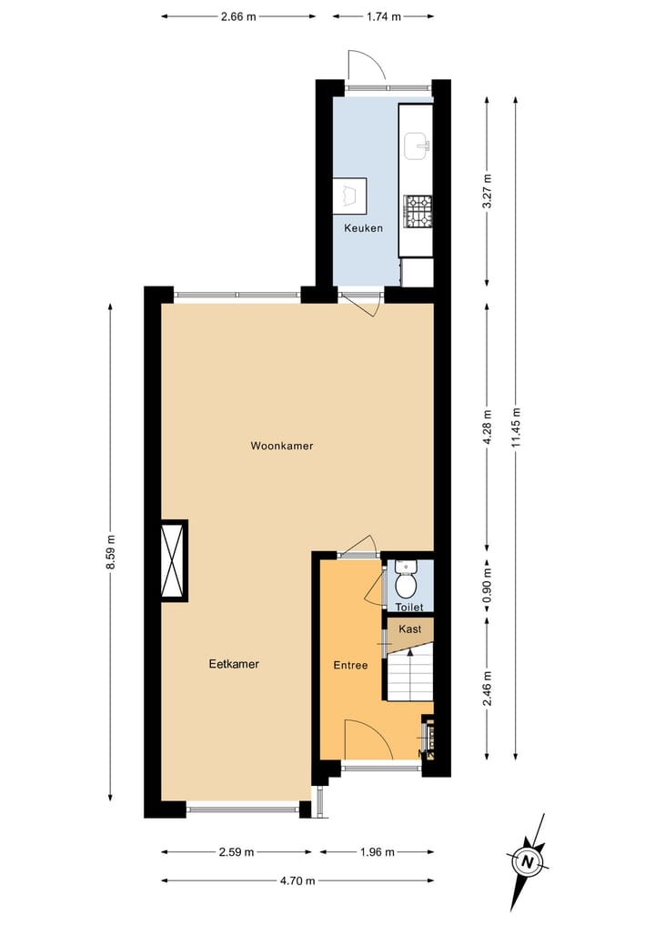
Indeling:
Entree/hal, trapopgang met kast, toiletruimte, woonkamer, keuken in uitbouw,
Eerste verdieping:
Overloop met trapopgang, slaapkamer met vaste kast aan de voorzijde, inpandige badkamer en twee goed bemeten slaapkamers aan de achterzijde,
Tweede verdieping:
Via vaste trap naar enorme overloop met daklichttoetreding, opstelling Cv-ketel, royale vierde slaapkamer en grote bergruimte.
BIJZONDERHEDEN:
- dakpannen vervangen
- gevels gestraald en opnieuw gevoegd
- achtergevel geheel in metselwerk opgetrokken (veel extra ruimte op 2e verdieping)
- uitbouw begane grond waarnaar de keuken is verplaatst
- grotendeels voorzien van kunststof kozijnen
- vaste airco in woonkamer
- royale vrijstaande berging met 2 toegangsdeuren (vanuit tuin en steeg)
- parkeren in de directe omgeving
- winkelcentrum de Plantage om de hoek
- goed gelegen ten opzichte van het centrum, openbaar vervoer en uitvalswegen
- op fietsafstand van duinen en strand van Wijk aan Zee
- aanvaarding in overleg (kan desgewenst snel)
Interesse in dit huis? Schakel direct uw eigen NVM-aankoopmakelaar in. Uw NVM-aankoopmakelaar komt op voor úw belang en bespaart u tijd, geld en zorgen. Adressen van collega NVM-aankoopmakelaars vindt u op Funda.
Kenmerken
Overdracht
- Laatste vraagprijs
- € 395.000 kosten koper
- Vraagprijs per m²
- € 3.527
- Status
- Verkocht
Bouw
- Soort woonhuis
- Eengezinswoning, tussenwoning
- Soort bouw
- Bestaande bouw
- Bouwjaar
- 1933
- Specifiek
- Gemeubileerd en gestoffeerd
- Soort dak
- Zadeldak bedekt met pannen
Oppervlakten en inhoud
- Gebruiksoppervlakten
- Wonen
- 112 m²
- Externe bergruimte
- 6 m²
- Perceel
- 118 m²
- Inhoud
- 388 m³
Indeling
- Aantal kamers
- 7 kamers (4 slaapkamers)
- Aantal badkamers
- 1 badkamer en 1 apart toilet
- Badkamervoorzieningen
- Douche en wastafel
- Aantal woonlagen
- 3 woonlagen
- Voorzieningen
- Airconditioning, buitenzonwering, dakraam, natuurlijke ventilatie, en TV kabel
Energie
- Energielabel
- D
- Isolatie
- Grotendeels dubbelglas
- Verwarming
- Cv-ketel
- Warm water
- Cv-ketel
- Cv-ketel
- Nefit (gas gestookt combiketel uit 2016, eigendom)
Kadastrale gegevens
- WIJK AAN ZEE EN DUIN B 9673
- Kadastrale kaart
- Oppervlakte
- 118 m²
- Eigendomssituatie
- Volle eigendom
Buitenruimte
- Ligging
- In woonwijk
- Tuin
- Achtertuin en voortuin
- Achtertuin
- 54 m² (12,00 meter diep en 4,50 meter breed)
- Ligging tuin
- Gelegen op het zuidoosten bereikbaar via achterom
Bergruimte
- Schuur/berging
- Vrijstaande stenen berging
- Voorzieningen
- Elektra
Parkeergelegenheid
- Soort parkeergelegenheid
- Openbaar parkeren
Foto's 42
© 2001-2025 funda









































