
Omschrijving
Fraaie maisonnette met terras aan voor- en achterzijde met 3 slaapkamers (89 m2).
Gelegen boven het winkelcentrum Planetenbaan te Bilthoven vindt u dit ruime appartement, verdeeld over twee lagen, met woonkamer met openslaande deuren naar riant zonneterras op het Zuiden.
De open keuken geeft u ten alle tijden contact met uw bezoek.
Op de tweede verdieping vindt u drie heerlijke slaapkamers en een ruime badkamer met twee persoons jacuzzi waar u lekker kunt ontspannen na een lange dag werken.
Het appartement heeft op de begane grond een berging.
Op loopafstand vindt u de winkels, en op een steenworp afstand bevindt u zich in het bos.
De combi van voorzieningen en natuur zijn daardoor binnen handbereik.
U bent van harte welkom bij dit fijne appartement ! Geschikt voor starters en kleine gezinnen.
Ligging:
Winkels: 50 m.
Bushalte: ca. 250 m (4 x per uur, ca. 12 min. naar Utrecht Centrum).
Station Bilthoven: ca. 2.4 km.
Winkelcentrum Kwinkelier te Bilhoven: ca. 2.5 km.
Indeling:
Begane grond:
Gezamenlijk entree en brievenbussen.
1e verdieping:
Via een trap bereikt u het dakterras waar de deuren van de appartementen zich bevinden.
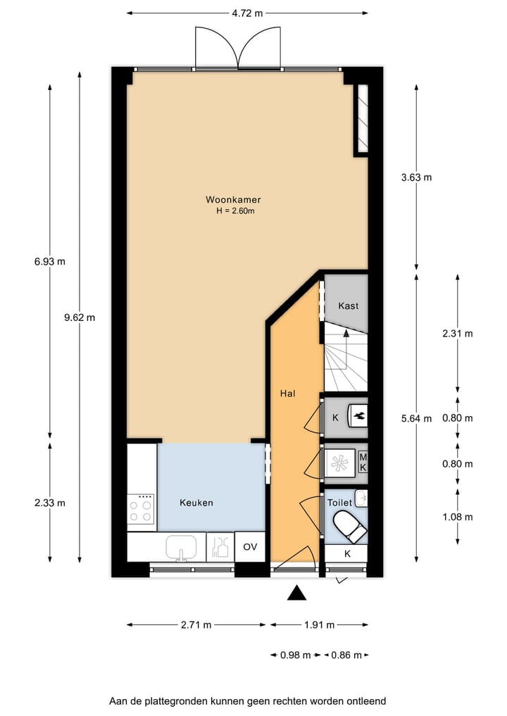
Entree, toilet, drie diepe kasten, een garderobe dee en toegang naar de keuken.
De open keuken is voorzien van een kookplaat, afzuigkap, combi-magnetron, vaatwasser en koelkast met vriesvakje.
De woonkamer gaat over de totale breedte en via de openslaande deuren heeft u toegang tot het dakterras waar u de hele dag kunt genieten van de zon.
Deze verdieping is voorzien van een gietvloer.
2e verdieping:
Aan de voorzijde liggen twee fijne slaapkamers.
Aan de achterzijde een zeer ruime slaapkamer met toegang tot de enorme badkamer met twee-persoons jacuzzi.
Bijzonderheden:
- Bouwjaar: 1958.
- Woonoppervlak: 89 m2.
- Bijdrage v.v.e.: € 177,74.
- CV: Remeha, 2023.
- De slaapkamer aan de achterzijde heeft twee rolluiken.
- Groepenkast is vernieuwd.
- Oplevering: april 2025.
-
Kenmerken
Overdracht
- Servicekosten
- € 178 per maand
- Laatste vraagprijs
- € 350.000 kosten koper
- Vraagprijs per m²
- € 3.933
- Status
- Verkocht
- Bijdrage VvE
- € 177,74 per maand
Bouw
- Soort appartement
- Maisonnette
- Soort bouw
- Bestaande bouw
- Bouwjaar
- 1958
- Soort dak
- Plat dak bedekt met bitumineuze dakbedekking
Oppervlakten en inhoud
- Gebruiksoppervlakten
- Wonen
- 89 m²
- Externe bergruimte
- 4 m²
- Inhoud
- 300 m³
Indeling
- Aantal kamers
- 4 kamers (3 slaapkamers)
- Aantal badkamers
- 1 badkamer en 1 apart toilet
- Badkamervoorzieningen
- Douche, jacuzzi, en wastafel
- Aantal woonlagen
- 3 woonlagen
- Voorzieningen
- Glasvezelkabel en rolluiken
- Gelegen op
- 2e woonlaag
Energie
- Energielabel
- Niet beschikbaar
- Isolatie
- Gedeeltelijk dubbel glas
- Verwarming
- Cv-ketel
- Warm water
- Cv-ketel
- Cv-ketel
- Gas gestookt combiketel
Kadastrale gegevens
- DE BILT F 1889
- Kadastrale kaart
- Eigendomssituatie
- Volle eigendom
Buitenruimte
- Tuin
- Zonneterras
Bergruimte
- Schuur/berging
- Inpandig
VvE checklist
- Inschrijving KvK
- Ja
- Jaarlijkse vergadering
- Ja
- Periodieke bijdrage
- Ja (€ 177,74 per maand)
- Reservefonds aanwezig
- Ja
- Onderhoudsplan
- Ja
- Opstalverzekering
- Ja
Foto's 41
© 2001-2025 funda








































