Dit huis op Funda: https://www.funda.nl/detail/koop/bitgum/huis-buorren-17/43751855/

Omschrijving
Op karakteristieke woonstand, op een groot perceel en toch midden in het dorp, vind je deze vrijstaande woning, met veel meer ruimte dan de buitenkant in eerste instantie doet vermoeden. De woning heeft een vrijstaande garage met carport, en een schuur. Desgewenst kun je hier levensloopbestendig wonen: er is een slaapkamer en een badkamer beneden. Er is een luxe keuken, een moderne badkamer en boven zijn nog 4 slaapkamers! De woning ligt op een oude terp en kijkt uit op o.a. de kerk (uit de 17de eeuw). Totale perceeloppervlakte: 450 m².
Indeling.
B.g.: entree, grote (centrale) hal met o.a. toilet, meterkast en vaste kasten, en trapopgang; royale woonkamer met (sier) balkenplafond en fraaie lichtinval, halfopen keukenruimte met moderne en luxe keuken in hoekopstelling, uitgevoerd in roestvrij staal met een natuurstenen blad en diverse inbouwapparatuur uit de toplijn van Bosch (combi-oven, XXL koelvriescombinatie, XXL vaatwasser, Bora kookplaat met afzuiging, en een Quooker) en deur naar de tuin. Vanuit de hal toegang tot de slaapkamer op de begane grond, alsook de badkamer met douchecabine, wastafelmeubel met dubbele wastafel, en doorloop naar de witgoedruimte/bijkeuken.
Boven (1ste verd.): grote overloop met o.a. de CV ketelopstelling, 4 slaapkamers (2 grotere, 2 kleinere);
2de verd.: ruime bergzolder over de gehele lengte van de woning.
De vrijstaande garage heeft aan weerzijden overkappingen, bijv. geschikt als carport of extra bergruimte. De garage is thans in gebruik als hobby-/bergruimte, en heeft een (berg)zolder (via steektrap).
De tuin biedt veel privacy en een goede zonnestand met een ligging noord - zuid, is zowel schaduw als zon mogelijk. De tuin is eenvoudig, en aangelegd met o.a. gazon en borders, en een terras achter de woning.
Algemeen: een verrassend ruime woning, op een groot perceel, met veel berg-/ en leefruimte in en om de woning, en o.a.;
- voorzien van centrale verwarming (CV ketel van 2014); voorzien van vloerisolatie (2023), nagenoeg geheel v.v. isolerende beglazing (m.u.v. slaapkamer b.g.);
- de elektrische installatie is vernieuwd (volledige 3 fasen meterkast) en er zijn 12 zonnepanelen geplaatst (2023);
- de keukeninrichting is recent vernieuwd: een zeer luxe uitgevoerde keuken met de beste inbouwapparatuur (zie voor specificaties de vragenlijst); de badkamer is eveneens vernieuwd (beide in 2023);
- deels voorzien van houten vloeren en deels van betonvloeren;
- de verdieping kan relatief eenvoudig opnieuw ingedeeld worden, om zo alle ruimte maximaal te benutten, en evt. een extra badkamer boven te realiseren;
- de tuin is royaal en heeft veel potentie, maar verdient wat liefde en aandacht;
- Sint Annaparochie en Leeuwarden liggen op ongeveer 10 autominuten en bieden (hoger) onderwijs en en keur aan voorzieningen; de N383 is de verbindingsweg richting de A31 (Leeuwarden - Afsluitdijk).
Beetgum (Fries: Bitgum) is een terpdorp, ooit ontstaan op een kwelderwal direct ten zuidwesten van de vml. Middelzee. Beetgum ligt tussen Beetgumermolen en Berlikum. Tussen deze plaatsen ligt een kassengebied en langs het dorp loopt de N383 (verbindingsweg van St. Annaparochie richting Leeuwarden. De dorpen Beetgum, Beetgumermolen en Engelum vormen een gemeenschap (de Trije Doarpen) en delen een aantal faciliteiten, zoals kinderopvang, basisscholen, een dorpshuis, sportvelden, enkele winkels en horecagelegenheden. Voor de liefhebber is er een actief verenigingsleven. In 2023 telde het dorp Beetgum 760 inwoners.
Deze informatie is door ons met de nodige zorgvuldigheid samengesteld, en is geheel vrijblijvend. Onzerzijds wordt echter geen enkele aansprakelijkheid aanvaard voor enige onvolledigheid, onjuistheid of anderszins, dan wel de gevolgen daarvan. Alle opgegeven maten, oppervlakten en energielabel zijn indicatief. Kandidaat koper heeft zijn eigen onderzoekplicht naar alle zaken die voor hem of haar van belang zijn. Indien u specifieke wensen heeft omtrent de woning, adviseren wij u deze tijdig kenbaar te maken (aan uw aankopend makelaar/adviseur) en hiernaar zelfstandig onderzoek te (laten) doen.
Bel, app of mail ons voor een bezichtiging in Beetgum, of vraag deze aan via Funda.nl!
Kenmerken
Overdracht
- Laatste vraagprijs
- € 350.000 kosten koper
- Vraagprijs per m²
- € 2.555
- Status
- Verkocht
Bouw
- Soort woonhuis
- Eengezinswoning, vrijstaande woning
- Soort bouw
- Bestaande bouw
- Bouwjaar
- 1973
- Soort dak
- Zadeldak bedekt met pannen
Oppervlakten en inhoud
- Gebruiksoppervlakten
- Wonen
- 137 m²
- Gebouwgebonden buitenruimte
- 26 m²
- Externe bergruimte
- 26 m²
- Perceel
- 450 m²
- Inhoud
- 516 m³
Indeling
- Aantal kamers
- 6 kamers (5 slaapkamers)
- Aantal badkamers
- 1 badkamer en 1 apart toilet
- Badkamervoorzieningen
- Douche en dubbele wastafel
- Aantal woonlagen
- 2 woonlagen en een zolder
- Voorzieningen
- Natuurlijke ventilatie, TV kabel, en zonnepanelen
Energie
- Energielabel
- C
- Isolatie
- Grotendeels dubbelglas en vloerisolatie
- Verwarming
- Cv-ketel
- Warm water
- Cv-ketel
- Cv-ketel
- Vailliant (gas gestookt combiketel uit 2014, eigendom)
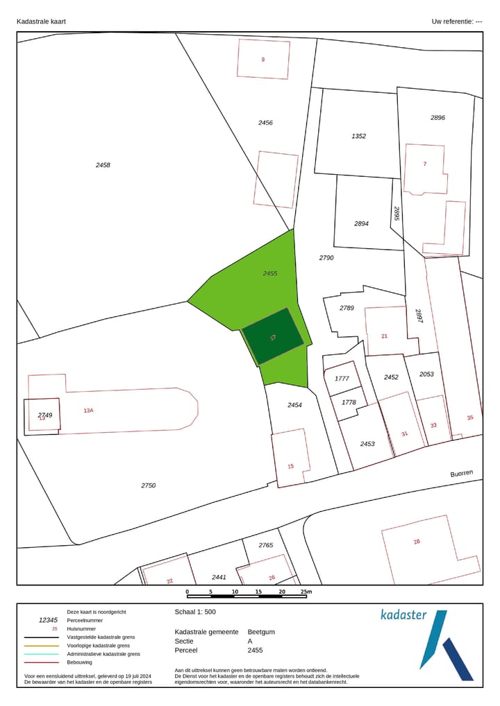
Kadastrale gegevens
- BEETGUM A 2455
- Kadastrale kaart
- Oppervlakte
- 450 m²
- Eigendomssituatie
- Volle eigendom
Buitenruimte
- Ligging
- Beschutte ligging, in centrum en vrij uitzicht
- Tuin
- Achtertuin en zijtuin
- Achtertuin
- 250 m² (12,50 meter diep en 20,00 meter breed)
- Ligging tuin
- Gelegen op het noordwesten bereikbaar via achterom
Garage
- Soort garage
- Carport en vrijstaande stenen garage
- Capaciteit
- 1 auto
- Voorzieningen
- Elektra
Parkeergelegenheid
- Soort parkeergelegenheid
- Op eigen terrein en openbaar parkeren
Foto's 37
© 2001-2025 funda




































