Dit huis op Funda: https://www.funda.nl/detail/koop/blaricum/huis-huizerweg-57/43079337/

Huizerweg 571261 AT BlaricumBlaricum-Dorp
€ 2.585.000 k.k.
BlikvangerKarakteristieke vrijstaande woning met praktijkruimte.
Omschrijving
Exclusief zeer karakteristiek landhuis met praktijkruimte en luxe faciliteiten in Blaricum
Welkom bij Huizerweg 57 te Blaricum, een unieke kans om te wonen in één van meest karakteristieke villa’s te wonen met een royale woonoppervlakte van 359 m² op een riant perceel van 2.461 m². Dit bijzondere object combineert historische charme en biedt alles wat u zoekt in een exclusieve villa, waaronder een zwembad, prachtige tuinen en een vrijstaande prakrijkruimte.
Bijzonderheden die het verschil maken:
• Locatie: Gelegen in volledige privacy.
• Tuin: Fraai aangelegd en voorzien van een decoratieve vijver op het zuidwesten – een oase van rust en schoonheid.
• Faciliteiten: Inclusief een verwarmd zwembad met jetstream en een apart praktijkgebouw, ideaal voor werk aan huis of als gastenverblijf.
• Authenticiteit: Recent gerestaureerd met behoud van authentieke details, gecombineerd met moderne gemakken.
Indeling van de woning
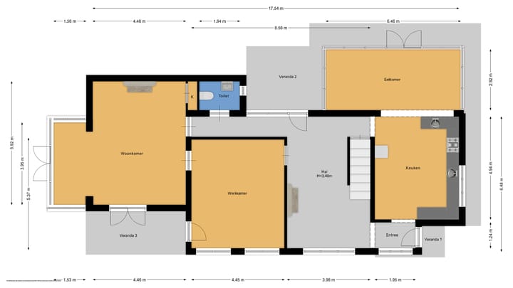
Begane grond
Bij binnenkomst wordt u verwelkomd in een royale hal met een prachtige antieke schouw en een elegante bordestrap. Vanuit de hal heeft u toegang tot:
• Woonkeuken: Sfeervol en licht, met de nodige apparatuur en een aansluitende serre.
• Living: Gezellige ruimte met een open haard en een serre, die zorgt voor een warme en uitnodigende sfeer.
• Dining: Een separate eetkamer voor de family diners.
• Werkkamer: Perfect voor werk of studie in een rustige omgeving.
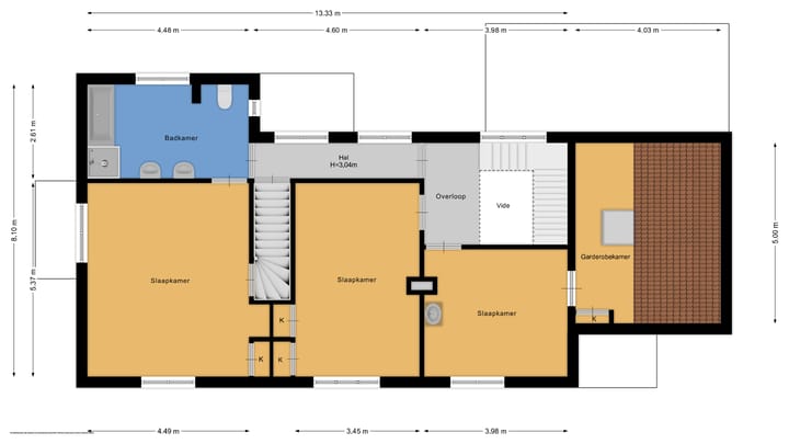
Eerste verdieping
• Slaapkamers: Drie royale slaapkamers, waarvan één met een praktische inbouwkast en een andere met een fraai balkon dat uitkijkt over de tuin.
• Badkamer: Luxe afgewerkt met marmer, voorzien van een ligbad, aparte douche, toilet en dubbele wastafels.
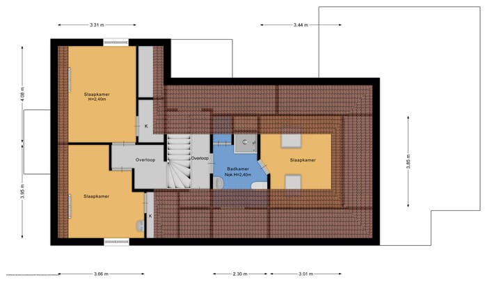
Zolder of tweede verdieping
• Slaapkamers: Drie royale slaapkamers.
• Badkamer: Douche, toilet en wastafel.
Praktijkruimte
Het aparte praktijkgebouw biedt een lichte werkruimte met grote ramen, een wachtkamer en een eigen toilet met douche. Deze ruimte is ideaal voor zakelijke doeleinden of als gastenverblijf. Momenteel is de praktijkruimte in gebruik door een tandarts.
Bent u klaar om verliefd te worden op deze unieke woning? Neem contact met ons op en plan een bezichtiging. Laat u betoveren door de rust, ruimte en het ongeëvenaarde karakter van Huizerweg 57 te Blaricum!
Kenmerken
Overdracht
- Aangeboden sinds
- Aanvaarding
- In overleg
- Vraagprijs
- € 2.585.000 kosten koper
- Vraagprijs per m²
- € 7.716
- Status
- Beschikbaar
Bouw
- Soort woonhuis
- Villa, vrijstaande woning
- Soort bouw
- Bestaande bouw
- Bouwjaar
- 1903
- Specifiek
- Monument
- Soort dak
- Samengesteld dak bedekt met pannen
Oppervlakten en inhoud
- Gebruiksoppervlakten
- Wonen
- 335 m²
- Overige inpandige ruimte
- 23 m²
- Gebouwgebonden buitenruimte
- 39 m²
- Perceel
- 2.461 m²
- Inhoud
- 1.414 m³
Indeling
- Aantal kamers
- 9 kamers (6 slaapkamers)
- Aantal badkamers
- 2 badkamers
- Badkamervoorzieningen
- Inloopdouche, ligbad, 2 toiletten, wastafelmeubel, douche, en wastafel
- Aantal woonlagen
- 3 woonlagen en een kelder
- Voorzieningen
- Alarminstallatie, buitenzonwering, mechanische ventilatie, rookkanaal, TV kabel, en zwembad
Energie
- Energielabel
- F
- Isolatie
- Dakisolatie en gedeeltelijk dubbel glas
- Verwarming
- Cv-ketel
- Warm water
- Gasboiler
- Cv-ketel
- Gas gestookt uit 2018, eigendom
Kadastrale gegevens
- BLARICUM A 2950
- Kadastrale kaart
- Oppervlakte
- 2.461 m²
- Eigendomssituatie
- Volle eigendom
Buitenruimte
- Ligging
- Vrij uitzicht
- Tuin
- Tuin rondom
- Balkon/dakterras
- Balkon aanwezig
Bergruimte
- Schuur/berging
- Inpandig
- Voorzieningen
- Elektra en verwarming
Garage
- Soort garage
- Garage mogelijk en parkeerplaats
Parkeergelegenheid
- Soort parkeergelegenheid
- Op afgesloten terrein en op eigen terrein
Foto's 64
© 2001-2025 funda































































