Dit huis op Funda: https://www.funda.nl/detail/koop/bolsward/huis-it-rak-6/43835086/

Omschrijving
Levensloopbestendige woning!
In de rustige woonwijk Eekwerd met veel groen en waterpartijen staat deze comfortabele twee-onder-één-kapwoning. De woning is goed onderhouden en beschikt over een garage, een slaap- en badkamer op de begane grond en 3 slaapkamers op de 1e verdieping. Het geheel is gelegen op een perceel eigen grond van 225 m².
Voorzien van kunststof kozijnen, 16 zonnepanelen en Energielabel B. Alle stadsvoorzieningen van Bolsward zijn op wandel- of fietsafstand.
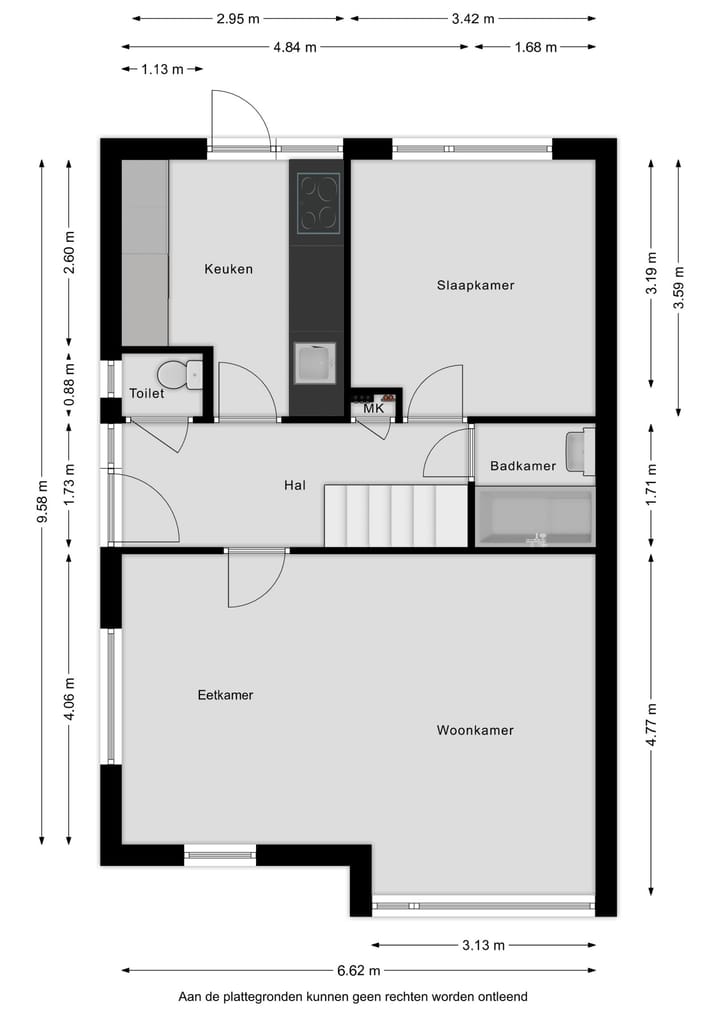
Indeling
Entree, hal, meterkast, trapopgang en toilet. De zonnige woonkamer met erker is aan de voorzijde gelegen en heeft een mooi zicht over de straat en het plantsoen. In de gesloten keuken aan de achterzijde is optimaal gebruik gemaakt van de ruimte door een parallelle keukenopstelling. De keuken is in 2022 geplaatst en voorzien van inbouwapparatuur en een quooker. Vanuit de hal is er ook toegang tot de badkamer en de slaapkamer. De badkamer is voorzien van een bad/douchecombinatie, een wastafelmeubel en een designradiator. De slaapkamer heeft royale afmetingen, is voorzien van airconditioning en kijkt uit op de achtertuin. De beschutte achtertuin is bereikbaar vanuit de keuken. Deze onderhoudsvriendelijke tuin heeft een zonligging op het noordoosten. De vrijstaande stenen garage beschikt over een garagedeur en een tuindeur. De oprit aan de voorzijde biedt parkeerruimte voor meerdere auto's.
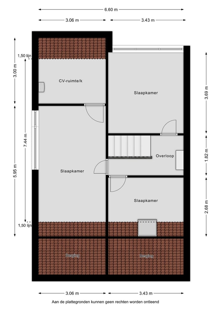
Eerste verdieping
De 1e verdieping beschikt over een centrale overloop en 3 ruime slaapkamers. Aan de achterzijde van de grote slaapkamer voorzien van airconditioning is een afgesloten cv-ruimte. Hier bevinden zich tevens een wastafel en de witgoedaansluitingen. Ook de middelgrote slaapkamer is voorzien van een vaste wastafel.
Tweede verdieping
De ruime bergzolder is bereikbaar via een vlizotrap vanaf de overloop.
Tuin
De beschutte achtertuin heeft een zonligging op het noordoosten. De tuin is onderhoudsvriendelijk aangelegd met een vrijstaande stenen garage en een achterom via de zijkant van de woning.
De voortuin ligt op het zuidwesten. Deze is voorzien van bestrating, een haagje en enkele borders. De oprit aan de voorzijde biedt parkeerruimte voor meerdere auto's.
Bijzonderheden
* Slaapkamer en badkamer op de begane grond;
* Nieuwe keuken 2022 met inductiekookplaat en quooker;
* Intergas cv-ketel 2008;
* 16 Zonnepanelen ± 2016/2020;
* Airconditioning Mitsubishi;
* Energielabel B;
* Begane grond en verdiepingsvloer beton;
* Rustige woonomgeving;
* Woonwijk met veel groenvoorzieningen;
* Goede locatie op korte afstand van winkels, scholen en sportvoorzieningen van Bolsward;
* Dankzij de A7 zijn de Randstad en Groningen in ± één uur te bereiken.
* Bezichtiging uitsluitend via de makelaar.
Kenmerken
Overdracht
- Laatste vraagprijs
- € 375.000 kosten koper
- Vraagprijs per m²
- € 3.233
- Status
- Verkocht
Bouw
- Soort woonhuis
- Eengezinswoning, 2-onder-1-kapwoning
- Soort bouw
- Bestaande bouw
- Bouwjaar
- 1978
- Soort dak
- Dwarskap bedekt met pannen
Oppervlakten en inhoud
- Gebruiksoppervlakten
- Wonen
- 116 m²
- Overige inpandige ruimte
- 8 m²
- Externe bergruimte
- 19 m²
- Perceel
- 225 m²
- Inhoud
- 379 m³
Indeling
- Aantal kamers
- 5 kamers (4 slaapkamers)
- Aantal badkamers
- 1 badkamer en 1 apart toilet
- Badkamervoorzieningen
- Ligbad en wastafel
- Aantal woonlagen
- 2 woonlagen en een zolder
- Voorzieningen
- Airconditioning, natuurlijke ventilatie, en zonnepanelen
Energie
- Energielabel
- Isolatie
- Dakisolatie, dubbel glas en muurisolatie
- Verwarming
- Cv-ketel
- Warm water
- Cv-ketel
- Cv-ketel
- Intergas (gas gestookt combiketel uit 2008, eigendom)
Kadastrale gegevens
- BOLSWARD B 4947
- Kadastrale kaart
- Oppervlakte
- 225 m²
- Eigendomssituatie
- Volle eigendom
Buitenruimte
- Tuin
- Achtertuin en voortuin
- Achtertuin
- 60 m² (8,50 meter diep en 7,00 meter breed)
- Ligging tuin
- Gelegen op het noordoosten bereikbaar via achterom
Garage
- Soort garage
- Vrijstaande stenen garage
- Capaciteit
- 1 auto
Parkeergelegenheid
- Soort parkeergelegenheid
- Op eigen terrein en openbaar parkeren
Foto's 41
© 2001-2026 funda








































