Dit huis op Funda: https://www.funda.nl/detail/koop/boxmeer/huis-van-speyk-35/43872231/

Omschrijving
Van Speyk 35, 5831 LA BOXMEER.
Een ruime tussenwoning met 3 slaapkamers, grote woonkamer, badkamer met ligbad/douche, grote zolderverdieping met 4e slaapkamer, stenen berging en ruime achtertuin op het Noord-Westen.
INDELING:
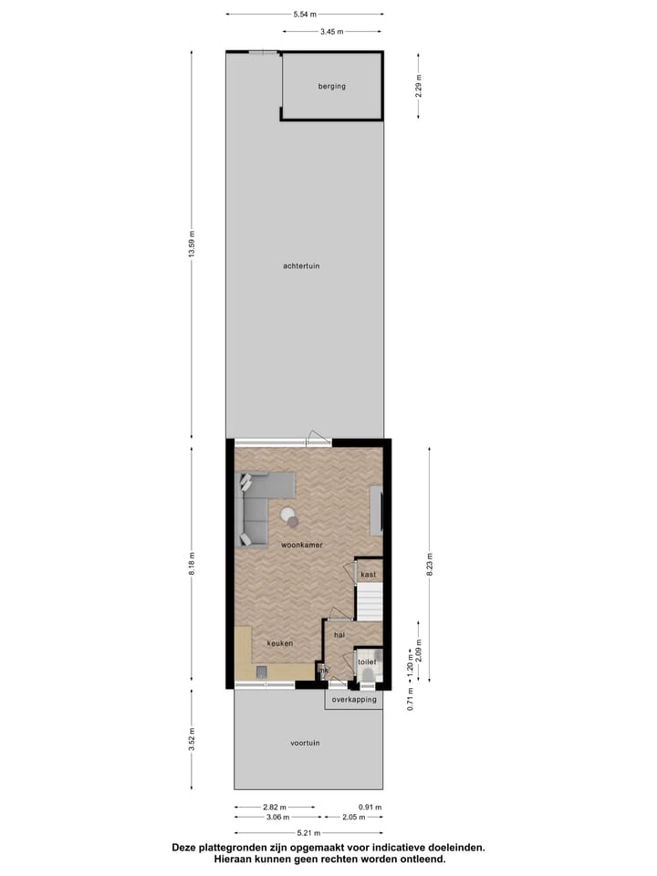
Begane grond:
Entree/hal - toilet - meterkast - woonkamer met provisiekast - open keuken.
1e Verdieping:
Overloop - 3 slaapkamers - badkamer met ligbad/douchecombinatie, wastafel en toilet - vaste trap naar...
2e Verdieping:
Voorzolder met CV-opstelling - ruime zolder met 2 dakvensters en 4e slaapkamer.
BIJZONDERHEDEN:
- Gunstige ligging in een kindvriendelijke wijk met alle voorzieningen in de nabije omgeving.
- De wijk grenst direct aan Natuurgebied "De Maasheggen" waarin u heerlijk kunt wandelen en fietsen.
- Kruipruimte aanwezig.
- Aluminium kozijnen met isolerende beglazing.
- Boxmeer is gelegen op 20 minuten van Nijmegen en op slechts enkele minuten van de opritten van de snelwegen A-73 en A-77.
- Projectnotaris, de verkoper bepaald de notaris.
Kenmerken
Overdracht
- Laatste vraagprijs
- € 300.000 kosten koper
- Vraagprijs per m²
- € 2.857
- Status
- Verkocht
Bouw
- Soort woonhuis
- Eengezinswoning, tussenwoning
- Soort bouw
- Bestaande bouw
- Bouwjaar
- 1975
- Specifiek
- Kluswoning
- Soort dak
- Zadeldak bedekt met pannen
Oppervlakten en inhoud
- Gebruiksoppervlakten
- Wonen
- 105 m²
- Externe bergruimte
- 8 m²
- Perceel
- 158 m²
- Inhoud
- 356 m³
Indeling
- Aantal kamers
- 5 kamers (4 slaapkamers)
- Aantal badkamers
- 1 badkamer en 1 apart toilet
- Badkamervoorzieningen
- Ligbad, toilet, en wastafel
- Aantal woonlagen
- 2 woonlagen en een zolder
- Voorzieningen
- TV kabel
Energie
- Energielabel
- C
- Isolatie
- Dakisolatie en dubbel glas
- Verwarming
- Cv-ketel
- Warm water
- Cv-ketel
- Cv-ketel
- Gas gestookt combiketel, eigendom
Kadastrale gegevens
- BOXMEER L 3486
- Kadastrale kaart
- Oppervlakte
- 158 m²
- Eigendomssituatie
- Volle eigendom
Buitenruimte
- Ligging
- Aan rustige weg en in woonwijk
- Tuin
- Achtertuin en voortuin
- Achtertuin
- 55 m² (10,00 meter diep en 5,50 meter breed)
- Ligging tuin
- Gelegen op het noordwesten bereikbaar via achterom
Bergruimte
- Schuur/berging
- Vrijstaande stenen berging
- Voorzieningen
- Elektra
Parkeergelegenheid
- Soort parkeergelegenheid
- Openbaar parkeren
Foto's 29
© 2001-2025 funda




























