
Omschrijving
Instapklaar wonen mét uitzicht op de Grote Kerk!?
Dit instapklare 2-kamerappartement met zonnig balkon en lift is gelegen op de vierde verdieping. Het bruisende centrum, historische Spanjaardsgat, de nieuwe haven, het Stadspark en het openbaar vervoer zijn op loopafstand bereikbaar. Ook de verbinding naar de uitvalswegen en het station zijn uitstekend.
Bouwjaar: 1974. Woonoppervlakte: ca. 40m². Inhoud: ca. 129m³.
Locatie:
Het appartement is gelegen op de vierde verdieping boven de ‘’Adriaen Lofts‘’ nabij het ‘’Spanjaardsgat’’ en de ‘’Nieuwe haven’’ en heeft uitzicht op de Grote Kerk van Breda. Een grote diversiteit aan winkels, horecagelegenheden en openbare (culturele) voorzieningen is op steenworp afstand gelegen.
Het station (NS en bus) is op 10 min. loop- en 5 min. fietsafstand gelegen. Vanaf het CS Breda is het mogelijk met de HSL rechtstreeks in 30 min. Rotterdam CS en in 1 uur. Amsterdam CS te bereiken.
Complex:
Het complex is voorzien van een liftinstallatie en in het souterrain bevindt zich een eigen berging. De servicekosten bedragen ongeveer € 167,69,- per maand, dit is exclusief het voorschot stookkosten (ca. € 95,-) en inclusief waterverbruik, gezamenlijke opstalverzekering, schoonmaak en elektra verbruik van de algemene ruimte en reservering voor het groot en klein onderhoud.
De verwarming geschiedt middels stadsverwarming (gasloos!) en het warme water wordt centraal voorzien.
Parkeren:
Er is voldoende parkeergelegenheid nabij het appartementencomplex. Het is mogelijk om een parkeervergunning hiervoor aan te vragen. Nadere informatie is via de gemeente Breda verkrijgbaar.
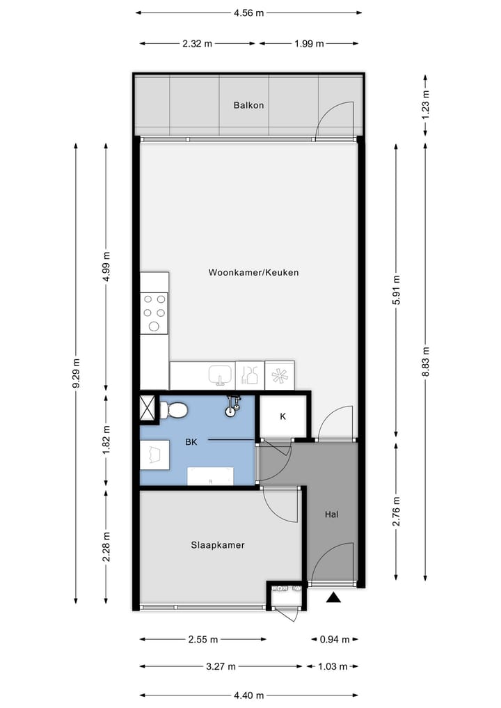
Indeling:
Begane grond:
Centrale, afsluitbare hal/entree met bellentableau, brievenbussen en toegang tot de lift en het trappenhuis. In het souterrain bevindt zich naast een centrale fietsenstalling een eigen afsluitbare berging voorzien van elektra.
Vierde verdieping:
Hal/entree met (video)intercom, vaste kast en toegang tot de slaapkamer, badkamer en de woonkamer.
De woonkamer met open keuken heeft veel lichtinval en uitzicht op de grote kerk! Via een deur is het balkon bereikbaar. Balkon is gelegen op het zuidoosten met voldoende privacy.
Moderne open keuken (2024) in hoek opgesteld voorzien van 5-pitsgaskookplaat, een koelkast, een combi-oven en een vaatwasmachine. De keuken is voorzien van diverse onder- en bovenkasten.
De volledig betegelde, moderne badkamer (2022) beschikt over een douche, een wastafelmeubel, een toilet en de wasmachineaansluiting.
De slaapkamer is gelegen aan de voorzijde.
Op de galerij is de opstelplaats van de vernieuwde meterkast van het appartement.
Bijzonderheden:
- Gehele appartement is gemoderniseerd in 2024/2025 m.u.v. de badkamer (2022);
- Gehele appartement is voorzien van glad stucwerk en hoge plinten;
- Prachtig vrij uitzicht over het centrum van Breda en de grote kerk;
- Gehele appartement is voorzien van dubbele beglazing;
- Het gehele appartement is voorzien van een hippe PVC visgraatvloer;
- Verwarming middels stadsverwarming (gasloos!);
- Het complex beschikt over een afgesloten gezamenlijke fietsenstalling gelegen in het souterrain;
- Voor parkeren kan gebruik gemaakt worden van de openbare parkeerplaatsen aan de voor- of achterzijde van het complex d.m.v. een parkeervergunning, voor bewoners aan te vragen bij de gemeente;
- Aangezien de woning ouder is dan 50 jaar zal in de NVM koopakte de algemene ouderdomsclausule worden opgenomen.
Een fijn appartement en direct geschikt voor fijne bewoning!
Met hoeveel zorg ook samengesteld er kunnen onvolledigheden voorkomen in de informatie en de afbeeldingen en het kan derhalve niet als een aanbod worden gezien. Er kunnen geen rechten aan worden ontleend en de opgegeven afmetingen, oppervlakte- en inhoudsmaten zijn dan ook indicatief.
Wij maken gebruik van een NVM model koopovereenkomst. In het kader van zekerheidstelling wordt er standaard een bankgarantie/waarborgsom van 10% opgenomen in de koopovereenkomst.
Kenmerken
Overdracht
- Laatste vraagprijs
- € 250.000 kosten koper
- Vraagprijs per m²
- € 6.250
- Status
- Verkocht
- Bijdrage VvE
- € 167,69 per maand
Bouw
- Soort appartement
- Galerijflat (appartement)
- Soort bouw
- Bestaande bouw
- Bouwjaar
- 1974
- Soort dak
- Plat dak bedekt met bitumineuze dakbedekking
Oppervlakten en inhoud
- Gebruiksoppervlakten
- Wonen
- 40 m²
- Gebouwgebonden buitenruimte
- 6 m²
- Externe bergruimte
- 5 m²
- Inhoud
- 129 m³
Indeling
- Aantal kamers
- 2 kamers (1 slaapkamer)
- Aantal badkamers
- 1 badkamer
- Badkamervoorzieningen
- Douche, toilet, en wastafelmeubel
- Aantal woonlagen
- 1 woonlaag
- Gelegen op
- 4e woonlaag
Energie
- Energielabel
- C
- Isolatie
- Dubbel glas
- Verwarming
- Stadsverwarming
- Warm water
- Centrale voorziening en stadsverwarming
Kadastrale gegevens
- BREDA F 1062
- Kadastrale kaart
- Eigendomssituatie
- Volle eigendom
Buitenruimte
- Ligging
- In centrum
Bergruimte
- Schuur/berging
- Box
- Voorzieningen
- Elektra
Parkeergelegenheid
- Soort parkeergelegenheid
- Betaald parkeren en parkeervergunningen
VvE checklist
- Inschrijving KvK
- Ja
- Jaarlijkse vergadering
- Ja
- Periodieke bijdrage
- Ja (€ 167,69 per maand)
- Reservefonds aanwezig
- Ja
- Onderhoudsplan
- Ja
- Opstalverzekering
- Ja
Foto's 34
© 2001-2026 funda

































