
Omschrijving
Volledig gemoderniseerd luxueus 3-kamer appartement, gelegen op de derde woonlaag.
Dit prachtig gerenoveerde appartement (2020/2021) beschikt over een balkon aan de voorzijde (gelegen op het westen) en achterzijde (gelegen op het zuidoosten) en een royale berging in het souterrain (10 m²).
De woning is gelegen in de gewilde wijk 'Sportpark' op een toplocatie in Breda Zuidoost. Op enkele minuten lopen of fietsen ligt de Ginnekenweg en Wilhelminastraat met de vele leuke winkels. Ook het Van Coothplein en het gezellige stadscentrum zijn op loopafstand. Diverse scholen en sportverenigingen zijn ook korte afstand gelegen.
Begane grond
Centrale entree met bellentableau en brievenbussen, toegang tot het trappenportaal en de privé bergingen in het souterrain.
Derde woonlaag
Portiek
Bordes voorzien van de meterkast (8 groepen, een fornuisgroep en 4x aardlek) en de toegangsdeur naar het appartement.
Indeling appartement
Entree/ hal voorzien van de intercom.
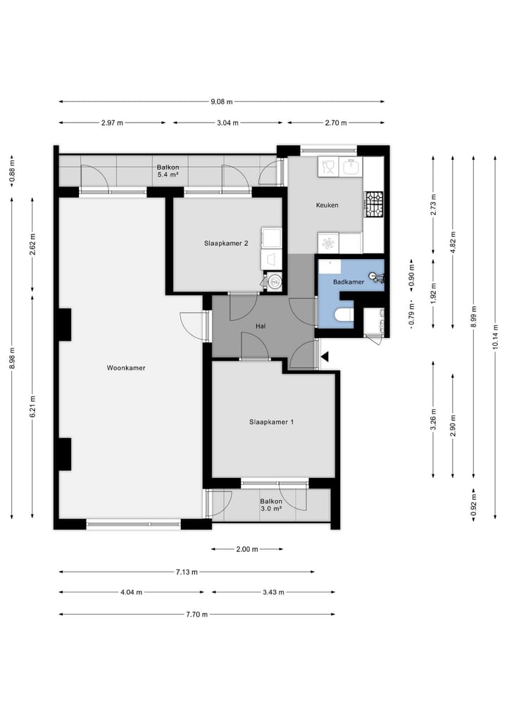
Sfeervolle royale woonkamer (ca. 33 m²) voorzien van een deur die toegang biedt naar een balkon aan de voor- en achterzijde.
Moderne keuken (ca. 7 m²) voorzien van een donkere inrichting met een kunststof aanrechtblad en de volgende inbouwapparatuur: een inductiekookplaat, een afzuigkap, een combi- magnetron, een vaatwasser en een koel- vriescombinatie.
Slaapkamer 1 (ca. 11 m²), gelegen aan de voorzijde en voorzien van een deur die toegang biedt naar het balkon.
Slaapkamer 2 (ca. 8 m²), gelegen aan de achterzijde en voorzien van een vaste kast met daarin de boiler, aansluitingen voor de wasapparatuur en een deur die toegang biedt naar het balkon.
Badkamer met toiletruimte voorzien van een inloopdouche, een wastafelmeubel en een wandcloset.
Het gehele appartement, met uitzondering van de keuken, badkamer en toiletruimte is voorzien van een houten visgraatvloer.
Handig om te weten:
Het appartement is eind 2020/begin 2021 volledig verbouwd: nieuwe keuken inclusief apparatuur, nieuwe badkamer met toiletruimte, elektra volledig vernieuwd, nieuwe vloeren, nieuwe meterkast, zonnepanelen geplaatst.
Berging in het souterrain;
Balkon aan de voorzijde (gelegen op het westen) en achterzijde (gelegen op het zuidoosten);
Voorzien van 10 zonnepanelen;
Zeer lage maandlasten - ca. € 25 per maand elektra.
Gasloos appartement.
Algemeen
Bij een aan-/ verkoop wordt gebruik gemaakt van het model van de koopovereenkomst, vastgesteld door de Nederlandse Vereniging van Makelaars in onroerende goederen NVM, de Consumentenbond en de Vereniging Eigen Huis.
In deze koopovereenkomst wordt standaard de verplichting tot het storten van een waarborgsom of het stellen van een bankgarantie door de koper ter grootte van 10% van de koopsom opgenomen.
Een koopovereenkomst komt tot stand onder de opschortende voorwaarde dat beide partijen de koopovereenkomst ondertekenen. Partijen kunnen derhalve aan een mondelinge overeenkomst geen rechten en plichten ontlenen.
Aangezien de woning ouder is dan 68 jaar zal in de NVM koopakte de Algemene Ouderdomsclausule worden opgenomen.
Hoewel deze advertentie zorgvuldig is samengesteld door Steverink en partners, is het mogelijk dat informatie verouderd en/of niet meer correct is. Steverink en partners en de verkoper(s) geven dan ook geen enkele garantie noch aanvaarden ze enige aansprakelijkheid voor de juistheid dan wel volledigheid van de verstrekte of vermelde gegevens, tekeningen en afmetingen. De door Steverink en partners gebruikte afmetingen en oppervlakten zijn indicatief.
De advertentie is geen concreet aanbod waar u rechten aan kunt ontlenen en dient te worden gezien als een uitnodiging om in onderhandeling te treden.
Steverink en partners kan u voorzien van een geheel vrijblijvend en kosteloos financieel advies. Een onafhankelijke hypotheek- en assurantieadviseur staat voor u klaar.
Vereniging van eigenaren
Als u een appartement koopt wordt u automatisch lid van de vereniging van eigenaren, de VvE. Aan deze vereniging betaalt u een bijdrage (de "servicekosten") van € 169,28 per maand. Deze bijdrage omvat onder andere de opstalverzekering, onderhoud van de gemeenschappelijke ruimtes en reservering voor groot en klein onderhoud.
Kenmerken
Overdracht
- Laatste vraagprijs
- € 325.000 kosten koper
- Vraagprijs per m²
- € 4.514
- Status
- Verkocht
Bouw
- Soort appartement
- Portiekflat (appartement)
- Soort bouw
- Bestaande bouw
- Bouwjaar
- 1956
- Soort dak
- Plat dak bedekt met bitumineuze dakbedekking
Oppervlakten en inhoud
- Gebruiksoppervlakten
- Wonen
- 72 m²
- Gebouwgebonden buitenruimte
- 8 m²
- Externe bergruimte
- 10 m²
- Inhoud
- 267 m³
Indeling
- Aantal kamers
- 3 kamers (2 slaapkamers)
- Aantal badkamers
- 1 badkamer en 1 apart toilet
- Badkamervoorzieningen
- Inloopdouche en wastafelmeubel
- Aantal woonlagen
- 3 woonlagen
- Voorzieningen
- Zonnepanelen
- Gelegen op
- 3e woonlaag
Energie
- Energielabel
- Niet beschikbaar
- Isolatie
- HR-glas en vloerisolatie
- Verwarming
- Elektrische verwarming
- Warm water
- Elektrische boiler
Kadastrale gegevens
- BREDA D 9487
- Kadastrale kaart
- Eigendomssituatie
- Volle eigendom
- BREDA D 9487
- Kadastrale kaart
- Eigendomssituatie
- Volle eigendom
Buitenruimte
- Ligging
- Aan rustige weg en in woonwijk
- Balkon/dakterras
- Balkon aanwezig
Bergruimte
- Schuur/berging
- Inpandig
- Voorzieningen
- Elektra
Parkeergelegenheid
- Soort parkeergelegenheid
- Openbaar parkeren
VvE checklist
- Inschrijving KvK
- Nee
- Jaarlijkse vergadering
- Nee
- Periodieke bijdrage
- Nee
- Reservefonds aanwezig
- Nee
- Onderhoudsplan
- Nee
- Opstalverzekering
- Nee
Foto's 24
© 2001-2025 funda























