Dit huis op Funda: https://www.funda.nl/detail/koop/breda/appartement-flierstraat-53/43219829/

Flierstraat 534812 LC BredaHeuvel
€ 345.000 k.k.
Omschrijving
Riant 4-kamerappartement (type bovenwoning) met 3 volwaardige slaapkamers, een groot terras van 18 m² op het zuiden met vrij uitzicht, en rustig gelegen in de wijk Heuvel op steenworp afstand van het fraaie Mgr. Nolensplein.
De winkels aan het Dr. Stuyckenplein, de gezellige Haagse Markt van Princenhage en het bruisende stadscentrum van Breda zijn op loop- en fietsafstand gelegen.
Bouwjaar ca. 1991
Woonoppervlakte ca. 120 m²
Terras ca. 18 m²
Servicekosten ca. € 60 per maand
LIGGING EN STAND
De woning is gunstig gelegen op loopafstand van de winkels van het Dr. Struyckenplein, nabij bushalten en op korte fietsafstand van het bruisende stadscentrum van Breda en het Mastbos. De verbinding met de snelwegen A16, A27 en A58 is goed door de ligging nabij de Zuidelijke Rondweg.
BOUWKWALITEIT
De woning is op degelijke wijze gebouwd en is volledig voorzien van dubbel glas en dakisolatie. De woning wordt verwarmd door de hoog-rendement cv-ketel (bouwjaar 2025). De keuken en badkamer zijn compleet uitgevoerd.
INDELING
BEGANE GROND
Ruime hal met entree, trapopgang naar de 1e verdieping, meterkast (ca. 5.25 x 2.10 m).
1e VERDIEPING
Hal met trapopgang naar de 2e verdieping; grote L-woonkamer (ca. 9.10 x 3.70 m en 2.95 x 2.40 m); open keuken met U-keukenblok voorzien van 5-pits gaskookplaat, afzuigkap, combi-oven, koelkast, vrieskast (ca. 2.55 x 2.40 m); ruim balkon van 18 m² (ca. 6.30 x 2.80 m); tussenhal met toiletruimte en toegang tot slaapkamer I en de badkamer (slaapkamer I aan de voorzijde met dakkapel (ca. 4.10 x 3.25 m); badkamer voorzien van ligbad met douchescherm en -kraan, wastafel en aansluiting wasapparatuur (ca. 2.55 x 2.45 m).
2e VERDIEPING
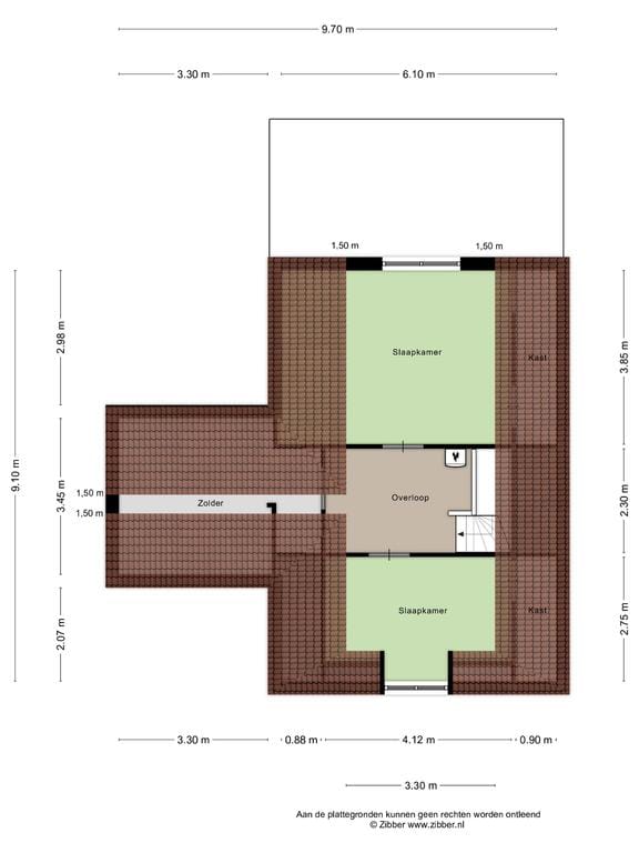
Ruime overloop met opstelplaats van de cv-ketel; slaapkamer II aan de voorzijde met dakkapel (ca. 3.30 x 2.30 m); slaapkamer III aan de achterzijde (ca. 3.85 x 3.60 m).
Kenmerken
Overdracht
- Aangeboden sinds
- Vraagprijs
- € 345.000 kosten koper
- Vraagprijs per m²
- € 2.875
- Status
- Beschikbaar
- Bijdrage VvE
- € 60,00 per maand
Bouw
- Soort appartement
- Bovenwoning (appartement)
- Soort bouw
- Bestaande bouw
- Bouwjaar
- 1991
- Specifiek
- Gedeeltelijk gestoffeerd
- Soort dak
- Samengesteld dak bedekt met pannen
Oppervlakten en inhoud
- Gebruiksoppervlakten
- Wonen
- 120 m²
- Overige inpandige ruimte
- 2 m²
- Gebouwgebonden buitenruimte
- 17 m²
- Inhoud
- 360 m³
Indeling
- Aantal kamers
- 4 kamers (3 slaapkamers)
- Aantal badkamers
- 1 badkamer en 1 apart toilet
- Badkamervoorzieningen
- Ligbad en wastafel
- Aantal woonlagen
- 3 woonlagen
- Gelegen op
- 1e woonlaag
Energie
- Energielabel
- Isolatie
- Dakisolatie, dubbel glas, muurisolatie, vloerisolatie en volledig geïsoleerd
- Verwarming
- Cv-ketel
- Warm water
- Cv-ketel
- Cv-ketel
- Hoog-rendement Vaillant (gas gestookt combiketel uit 2025, eigendom)
Kadastrale gegevens
- BREDA I 5182
- Kadastrale kaart
- Eigendomssituatie
- Volle eigendom
Buitenruimte
- Ligging
- Aan rustige weg en in woonwijk
- Tuin
- Zonneterras
- Zonneterras
- 18 m² (6,30 meter diep en 2,80 meter breed)
- Ligging tuin
- Gelegen op het zuiden
- Balkon/dakterras
- Dakterras aanwezig
Bergruimte
- Schuur/berging
- Inpandig
- Isolatie
- Volledig geïsoleerd
Parkeergelegenheid
- Soort parkeergelegenheid
- Openbaar parkeren
VvE checklist
- Inschrijving KvK
- Ja
- Jaarlijkse vergadering
- Ja
- Periodieke bijdrage
- Ja (€ 60,00 per maand)
- Reservefonds aanwezig
- Ja
- Onderhoudsplan
- Nee
- Opstalverzekering
- Ja
Foto's 22
© 2001-2026 funda





















