
Omschrijving
Luxe en groot 3-kamerappartement gelegen op de tweede verdieping met balkon aan de voorzijde van het gebouw. Royale woonkamer met veel lichtinval, 2 slaapkamers, badkamer, ruim balkon met middag- avondzon, berging en eigen parkeerplaats in de parkeerkelder. Het appartement ligt in het luxe afgewerkt complex “Residence Le Chateau”, gelegen in de wijk Ypelaar, tegenover winkelcentrum “De Burcht” en nabij diverse uitvalswegen. Op de begane grond van het complex is een medisch centrum gevestigd. Tevens is er een bushalte voor de deur (driemaal per uur richting centraal station en centrum).
Kan je niet wachten om dit appartement te bezichtigen? Ga dan snel naar de website van Van der Sande Makelaars voor de digitale rondleiding van deze woning.
INDELING
BEGANE GROND
Entree met bellentableau, brievenbussen en centrale hal met een fraai atrium, trappenhuis en twee liftinstallaties. Voorts toegang naar ondergelegen parkeerkelder met parkeerplaats en toegang naar de bergingen.
INDELING
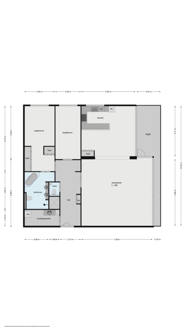
APPARTEMENT TWEEDE VERDIEPING
Ruime entree / hal met garderobe, videofoon-installatie en meterkast (8 groepen en 1 aardlekschakelaar). De entree is voorzien van een eiken houten vloer en spachtelputz wandafwerking. Vanuit de royale hal heeft men toegang tot de bijkeuken, woonkamer, toilet en beide slaapkamers.
Toilet, volledig betegeld met zwevend toilet, fonteintje en mechanische ventilatie.
Bijkeuken, met klein keukenblok en aansluitpunten voor de wasapparatuur, cv- combiketel (Nefit combi 2002) en de mechanische ventilatie unit.
Woonkamer met eiken vloerdelen, spachtelputz wandafwerking, spuitwerk plafondafwerking, sfeervolle open keuken en toegang tot balkon.
Open eetkeuken met keukeninrichting in u-opstelling met natuurstenen aanrechtblad, diverse onder- en bovenkasten, 4-pits keramische kookplaat, combi-oven/magnetron, vaatwasmachine en koelkast. Fraai uitzicht over winkelcentrum De Burcht.
Slaapkamer I met eiken vloer, spachtelputz- wandafwerking en toegang tot de badkamer. In deze kamer is een vaste kastenwand aanwezig.
Badkamer, volledig betegeld met inloopdouche, ligbad, tweede toilet, designradiator, 2 vaste wastafels en vaste kast en mechanische ventilatie. Alle kranen zijn thermostaatkranen.
Slaapkamer II met eiken vloer en spachtelputz wandafwerking.
Bijkeuken, met klein keukenblok en aansluitpunten voor de wasapparatuur, cv- combiketel (Nefit combi) en de mechanische ventilatie unit.
BERGING
Berging, gelegen in het souterrain en met elektra.
PARKEERPLAATS
Eigen parkeerplaats, gelegen in de parkeerkelder en toegankelijk middels een afstandsbediening.
BIJZONDERHEDEN
- De VvE kosten zijn ca. € 193 ,- met daarin inbegrepen de gebruikelijke verzekeringen, beheer, reservering groot gezamenlijk onderhoud, gezamenlijk klein onderhoud, etc;
- Het appartement is grotendeels voorzien van houten vloer, stucwerk wand- en plafondafwerking;
- Het appartement is goed geïsoleerd;
- Het balkon is voorzien van elektrisch zonnescherm en de woonkamer van (zonne)screens;
- Het appartement is zeer gunstig gelegen ten opzichte van winkelcentrum 'De Burcht', verschillende medische voorzieningen, het bos en de bus-voorzieningen;
-Alle kozijnen zijn uitgevoerd in onderhoudsvrij aluminium met dubbele beglazing;
-Energielabel A.
- Indicatie energieverbruik 2023:
Gas ca 1456 m3
elektra ca 2756 Kwh
Water: ca. 70m3
Gebaseerd op een 1-persoonshuishouding.
Aan bovengenoemde opgaven kunnen geen rechten worden ontleend, aangezien de vermelde kosten variabel zijn en/of periodiek gewijzigd kunnen worden.
Kenmerken
Overdracht
- Servicekosten
- € 193 per maand
- Laatste vraagprijs
- € 800.000 kosten koper
- Vraagprijs per m²
- € 5.263
- Status
- Verkocht
- Bijdrage VvE
- € 193,00 per maand
Bouw
- Soort appartement
- Galerijflat (appartement)
- Soort bouw
- Bestaande bouw
- Bouwjaar
- 2007
- Soort dak
- Plat dak
Oppervlakten en inhoud
- Gebruiksoppervlakten
- Wonen
- 152 m²
- Gebouwgebonden buitenruimte
- 17 m²
- Externe bergruimte
- 5 m²
- Inhoud
- 506 m³
Indeling
- Aantal kamers
- 3 kamers (2 slaapkamers)
- Aantal badkamers
- 1 badkamer en 1 apart toilet
- Badkamervoorzieningen
- Douche, dubbele wastafel, ligbad, toilet, en wastafelmeubel
- Aantal woonlagen
- 1 woonlaag
- Voorzieningen
- Mechanische ventilatie en TV kabel
- Gelegen op
- 2e woonlaag
Energie
- Energielabel
- A
- Isolatie
- Volledig geïsoleerd
- Verwarming
- Cv-ketel
- Warm water
- Cv-ketel
- Cv-ketel
- Nefit (gas gestookt combiketel uit 2007, eigendom)
Kadastrale gegevens
- GINNEKEN M 2696
- Kadastrale kaart
- Eigendomssituatie
- Volle eigendom
- GINNEKEN M 2696
- Kadastrale kaart
- Eigendomssituatie
- Volle eigendom
- GINNEKEN M 2696
- Kadastrale kaart
- Eigendomssituatie
- Volle eigendom
Buitenruimte
- Ligging
- In woonwijk
Bergruimte
- Schuur/berging
- Box
- Voorzieningen
- Elektra
Garage
- Soort garage
- Parkeerkelder
Parkeergelegenheid
- Soort parkeergelegenheid
- Openbaar parkeren en parkeergarage
VvE checklist
- Inschrijving KvK
- Ja
- Jaarlijkse vergadering
- Ja
- Periodieke bijdrage
- Ja (€ 193,00 per maand)
- Reservefonds aanwezig
- Ja
- Onderhoudsplan
- Ja
- Opstalverzekering
- Ja
Foto's 55
© 2001-2025 funda






















































