Dit huis op Funda: https://www.funda.nl/detail/koop/breda/appartement-nonnenveld-433/43140749/

Nonnenveld 4334811 DT BredaChassé
€ 599.000 k.k.
Omschrijving
Op absolute toplocatie, een royaal modern instapklaar 4-kamer appartement voorzien van een sfeervolle winterkamer, gelegen op de 2e verdieping met een geweldig uitzicht over het Chassé Park, de watertoren, de singel en de stad Breda.
Het appartement ligt in één van de vijf 'Woontorens' (toren 1), een bekroond ontwerp van de bekende architecten Rem Koolhaas en Xaveer de Geyter.
Deze ruim opgezette, autoluwe wijk vormt een mooi, rustig park op loopafstand van de Grote Markt, het Chassé Theater, de Pathé bioscoop, het Valkenberg park, het Centraal Station. en vele andere, gezellige uitgaansgelegenheden.
Er is een eigen parkeerplaats (nr. 195) in de parkeergarage onder het complex, evenals een eigen berging (ca. 7 m2) en gezamenlijke fietsenstalling.
Begane grond
Centrale entree met brievenbussen, videofoon-installatie en toegang tot de liftinstallatie en het trappenhuis. Tevens toegang tot uw parkeerplaats in de afgesloten parkeergarage en de berging.
2e verdieping
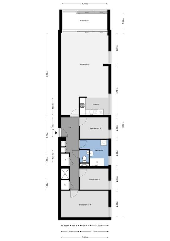
Entree/ hal voorzien van een videofoon, een kast met daarin de meterkast (7 groepen, een fornuisgroep en 2 aardlekschakelaars) en twee bergingen.
Royale woonkamer (ca. 5.00 x 6.86/ 1.87 x 1.83 m) voorzien van een schuifpui naar de sfeervolle winterkamer (ca. 9 m²) met schuifdeuren die volledig opengeschoven kunnen worden.
Open keuken (ca. 3.03 x 1.83 m) voorzien van een grijze keukeninrichting met een kunststof aanrechtblad (marmerlook) en de volgende inbouwapparatuur: een 4-pits inductie kookplaat, een afzuigkap, een oven, een koel- vriescombinatie en een vaatwasser.
Slaapkamer 1 (ca. 5.00 x 2.82 m) met een prachtig weids uitzicht.
Slaapkamer 2 (ca. 3.03 x 2.25 m) met een prachtig weids uitzicht.
Moderne badkamer (ca. 1.99 x 2.82 m) met een beton ciré vloer en voorzien van een inloopdouche, een wastafelmeubel en aansluitingen voor de was apparatuur.
Moderne toiletruimte met een beton ciré vloer en voorzien van een toilet en fonteintje.
Slaapkamer 3 (ca. 3.03 x 2.23 m) met een prachtig weids uitzicht.
Het gehele appartement is voorzien van een prachtige PVC visgraatvloer, met uitzondering van de toiletruimte en badkamer.
Belangrijk om te weten:
Energielabel B;
3 slaapkamers;
Hoek appartement met veel lichtinval;
Gelegen op rustige, mooie, autoluwe en groene locatie in de binnenstad van Breda;
Parkeerplaats;
Externe berging;
Lift; Bouwjaar 2001.
De verwarming en de warmwatervoorziening geschieden door middel van stadsverwarming.
Het complex is gebouwd met duurzame materialen, zeer goed geïsoleerd en kent een hoogwaardige afwerking. De buitenkozijnen zijn in aluminium uitgevoerd.
Naast de eigen parkeerplaats is er in de directe omgeving voldoende (betaalde) parkeergelegenheid.
Algemeen
Bij een aan-/ verkoop wordt gebruik gemaakt van het model van de koopovereenkomst, vastgesteld door de Nederlandse Vereniging van Makelaars in onroerende goederen NVM, de Consumentenbond en de Vereniging Eigen Huis. In deze koopovereenkomst wordt standaard de verplichting tot het storten van een waarborgsom of het stellen van een bankgarantie door de koper ter grootte van 10% van de koopsom opgenomen. Een koopovereenkomst komt tot stand onder de opschortende voorwaarde dat beide partijen de koopovereenkomst ondertekenen. Partijen kunnen derhalve aan een mondelinge overeenkomst geen rechten en plichten ontlenen.
Hoewel deze advertentie zorgvuldig is samengesteld door Steverink en partners, is het mogelijk dat informatie verouderd en/of niet meer correct is. Steverink en partners en de verkoper(s) geven dan ook geen enkele garantie noch aanvaarden ze enige aansprakelijkheid voor de juistheid dan wel volledigheid van de verstrekte of vermelde gegevens, tekeningen en afmetingen. De door Steverink en partners gebruikte afmetingen en oppervlakten zijn indicatief. De advertentie is geen concreet aanbod waar u rechten aan kunt ontlenen en dient te worden gezien als een uitnodiging om in onderhandeling te treden.
Steverink en partners kan u voorzien van een geheel vrijblijvend en kosteloos financieel advies. Een onafhankelijke hypotheek- en assurantieadviseur staat voor u klaar.
Vereniging van eigenaren
Als u een appartement koopt wordt u automatisch lid van de vereniging van eigenaren, de VvE. Aan deze vereniging betaalt u een bijdrage (de "servicekosten") van € 261,= per maand voor het appartement en de parkeerplaats. Deze bijdrage omvat onder andere de opstalverzekering, onderhoud van de gemeenschappelijke ruimtes en reservering voor groot en klein onderhoud.
Kenmerken
Overdracht
- Aangeboden sinds
- Aanvaarding
- In overleg
- Vraagprijs
- € 599.000 kosten koper
- Vraagprijs per m²
- € 5.598
- Status
- Beschikbaar
- Bijdrage VvE
- € 261,00 per maand
Bouw
- Soort appartement
- Portiekflat (appartement)
- Soort bouw
- Bestaande bouw
- Bouwjaar
- 2001
- Soort dak
- Plat dak
Oppervlakten en inhoud
- Gebruiksoppervlakten
- Wonen
- 107 m²
- Externe bergruimte
- 7 m²
- Inhoud
- 304 m³
Indeling
- Aantal kamers
- 4 kamers (3 slaapkamers)
- Aantal badkamers
- 1 badkamer en 1 apart toilet
- Badkamervoorzieningen
- Inloopdouche en wastafel
- Aantal woonlagen
- 1 woonlaag
- Voorzieningen
- Alarminstallatie, lift, en mechanische ventilatie
Energie
- Energielabel
- B
- Isolatie
- Dubbel glas en HR-glas
- Verwarming
- Stadsverwarming
- Warm water
- Centrale voorziening
Kadastrale gegevens
- BREDA B 8284
- Kadastrale kaart
- Eigendomssituatie
- Volle eigendom
Buitenruimte
- Ligging
- Aan park, in centrum en in woonwijk
Bergruimte
- Schuur/berging
- Inpandig
- Voorzieningen
- Elektra
Garage
- Soort garage
- Parkeerkelder, parkeerplaats en souterrain
- Capaciteit
- 1 auto
- Voorzieningen
- Elektrische deur en elektra
Parkeergelegenheid
- Soort parkeergelegenheid
- Betaald parkeren, parkeergarage en parkeervergunningen
VvE checklist
- Inschrijving KvK
- Ja
- Jaarlijkse vergadering
- Ja
- Periodieke bijdrage
- Ja (€ 261,00 per maand)
- Reservefonds aanwezig
- Ja
- Onderhoudsplan
- Ja
- Opstalverzekering
- Ja
Foto's 35
Plattegronden 3
© 2001-2025 funda





































