
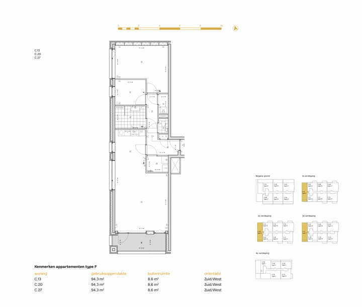
Princenpark Breda Gebouw C Type F (Bouwnr. C.27)4813 EA BredaPrincenhage
Verkocht onder voorbehoud
€ 521.000 v.o.n.
Omschrijving
Princenpark Gebouw C Type F bouwnummer C.27
Gebruiksoppervlakte : ca. 94 m2
Oppervlakte buitenruimte: ca. 9 m2
Kenmerken:
- Appartement met royale loggia
- Twee slaapkamers
- Een badkamer
- Privé parkeerplaats in de parkeerkelder
- Individuele berging in de parkeerkelder
GEBOUW C
Het plan Princenpark bestaat uit zeven gebouwen: A tot en met G. Gebouw C biedt ruimte aan 32 luxe koopappartementen. Het gebouw is verdeeld over vijf bouwlagen met daaronder een ruime parkeerkelder die toegankelijk is voor bewoners van gebouw C. Naast de parkeerplaatsen vindt u hier ook de individuele bergingen.
GOEDE BEREIKBAARHEID
Vanuit het centrale trappenhuis in gebouw C kunt u met de lift naar de parkeerkelder gaan. Met de auto bereikt u de parkeerkelder via de hellingbaan. Deze heeft een toegangscontrole en wordt ook door bewoners van gebouw A en B gebruikt. De overdekte hoofdentree van gebouw C bevindt zich aan de Luciastraat. Deze is gemakkelijk te bereiken via een trap. Hier is ook een schuine opgang zodat mensen met een rolstoel of rollator de ingang kunnen bereiken. Bij de hoofdentree vindt u de postkasten en de videofooninstallatie. Vanuit uw woning kunt u de voordeur openen en uw bezoek binnenlaten.
GENIETEN VAN RUST
Op het kelderdek tussen gebouw B en C ligt een gemeenschappelijke daktuin. Deze behoort toe aan de eigenaren van zowel gebouw B als C. Deze daktuinen worden aangelegd volgens het ontwerp van de landschapsarchitect. Het worden duurzame, groene oases die uitnodigen tot ontmoeting en ontspanning.
Kenmerken
Overdracht
- Aangeboden sinds
- Aanvaarding
- In overleg
- Vraagprijs
- € 521.000 vrij op naam
- Vraagprijs per m²
- € 5.543
- Status
- Verkocht onder voorbehoud
Bouw
- Soort appartement
- Portiekflat
- Soort bouw
- Nieuwbouw
- Bouwjaar
- 2027
- Keurmerken
- Woningborg Garantiecertificaat
Oppervlakten en inhoud
- Gebruiksoppervlakten
- Wonen
- 94 m²
- Gebouwgebonden buitenruimte
- 9 m²
- Inhoud
- 329 m³
Indeling
- Aantal kamers
- 3 kamers (2 slaapkamers)
- Aantal woonlagen
- 1 woonlaag
- Voorzieningen
- Balansventilatie en lift
- Gelegen op
- 4e woonlaag
Energie
- Energielabel
- A+++
- Isolatie
- Volledig geïsoleerd
- Verwarming
- Gehele vloerverwarming, warmte terugwininstallatie en warmtepomp
- Warm water
- Elektrische boiler
Buitenruimte
- Ligging
- Aan park, aan rustige weg en in woonwijk
Bergruimte
- Schuur/berging
- Inpandig
Garage
- Soort garage
- Parkeerkelder
Parkeergelegenheid
- Soort parkeergelegenheid
- Parkeergarage
Foto's 10
© 2001-2025 funda









