
Omschrijving
Prachtig luxe turn-key appartement! Wakker worden met uitzicht op de Wilhelminavijver!
Karakteristiek recent gerenoveerd luxueus 2-kamerappartement gelegen op de tweede verdieping.
Dit prachtige gerenoveerde (2024) appartement ligt op een toplocatie in Breda- Centrum aan de rand van de geliefde karakteristieke woonwijk Zandberg, direct grenzend aan de prachtige Wilhelminavijver.
Op enkele minuten van het historisch centrum van Breda, het winkelgebied Wilhelminastraat/Nieuwe Ginnekenstraat met diverse scholen, restaurants en alle denkbare voorzieningen. Ook de uitvalswegen zijn goed bereikbaar.
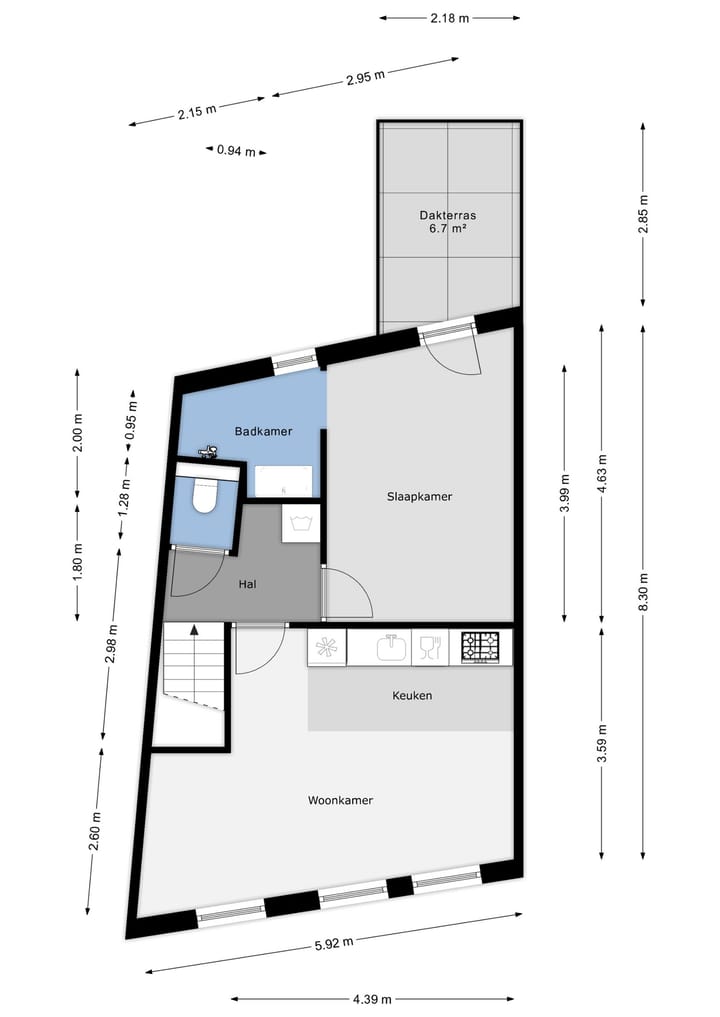
1e verdieping
De entree is gelegen op de 1e verdieping.
2e verdieping
Entree/ hal voorzien van een vaste kast met daarin de opstelplaats van de elektrische boiler, aansluitingen voor de wasapparatuur en de meterkast (11 groepen en aardlek).
Toiletruimte voorzien van een wandcloset.
Woonkamer (ca. 19 m²) voorzien van hoge raampartijen waardoor er veel licht binnenkomt.
De woonkamer heeft een open verbinding met de keuken. Vanuit de woonkamer heb je een prachtig uitzicht op het Wilhelminapark.
Moderne keuken voorzien van een donkere keukeninrichting met een fineer aanrechtblad en de volgende inbouwapparatuur: een inductiekookplaat, een afzuigkap, een combimagnetron, een koelkast en een vaatwasser.
Slaapkamer (ca. 13 m²) gelegen aan de achterzijde. Een deur biedt toegang tot het dakterras (ca. 7 m²), gelegen op het zuiden.
Moderne badkamer (ca. 4 m²) voorzien van een inloopdouche en een wastafelmeubel met lades.
Het gehele appartement met uitzondering van de badkamer en toiletruimte zijn voorzien van een visgraat pvc vloer.
Dakterras
Het appartement is voorzien van een prachtig ruim dakterras van ca. 7 m² gelegen op het zuiden. Het dakterras is voorzien van een prachtige zinken balustrade.
Belangrijk om te weten:
De bovenwoning is in 2024 verbouwd, hierbij is echt alles aangepakt:
- Nieuwe kozijnen
- Nieuwe elektra en meterkast
- Nieuwe leidingen
- Nieuwe badkamer
- Nieuwe toiletruimte
- Nieuwe luxe keuken met inbouwapparatuur
- Nieuwe vloeren
- Alles glad gestuct
- Alles geschilderd
- Energielabel A
- 4 zonnepanelen (a 450 wp per stuk) - totaal 1.800 wp
- Gasloos
Algemeen
Aangezien de woning ouder is dan 115 jaar zal in de NVM koopakte de Algemene Ouderdomsclausule worden opgenomen.
Hoewel deze advertentie zorgvuldig is samengesteld door Steverink en partners, is het mogelijk dat informatie verouderd en/of niet meer correct is. Steverink en partners en de verkoper(s) geven dan ook geen enkele garantie noch
aanvaarden ze enige aansprakelijkheid voor de juistheid dan wel volledigheid van de verstrekte of vermelde gegevens, tekeningen en afmetingen. De door Steverink en partners gebruikte afmetingen en oppervlakten zijn indicatief. De advertentie is geen concreet aanbod waar u rechten aan kunt ontlenen en dient te worden gezien als een uitnodiging om in onderhandeling te treden.
Steverink en partners kan u voorzien van een geheel vrijblijvend en kosteloos financieel advies. Een onafhankelijke hypotheek- en assurantieadviseur staat voor u klaar.
Vereniging van eigenaren
Als u een appartement koopt wordt u automatisch lid van de vereniging van eigenaren, de VvE. Aan deze vereniging betaalt u een bijdrage (de "servicekosten") van € 125,= per maand. Deze bijdrage omvat onder andere de opstalverzekering, onderhoud van de gemeenschappelijke ruimtes en reservering voor groot en klein onderhoud.
Kenmerken
Overdracht
- Laatste vraagprijs
- € 325.000 kosten koper
- Vraagprijs per m²
- € 7.065
- Status
- Verkocht
- Bijdrage VvE
- € 125,00 per maand
Bouw
- Soort appartement
- Bovenwoning (appartement)
- Soort bouw
- Bestaande bouw
- Bouwjaar
- 1908
- Specifiek
- Beschermd stads- of dorpsgezicht
- Soort dak
- Plat dak bedekt met bitumineuze dakbedekking
Oppervlakten en inhoud
- Gebruiksoppervlakten
- Wonen
- 46 m²
- Gebouwgebonden buitenruimte
- 7 m²
- Inhoud
- 157 m³
Indeling
- Aantal kamers
- 2 kamers (1 slaapkamer)
- Aantal badkamers
- 1 apart toilet
- Aantal woonlagen
- 1 woonlaag
- Voorzieningen
- Mechanische ventilatie en zonnepanelen
- Gelegen op
- 3e woonlaag
Energie
- Energielabel
- A
- Isolatie
- Dakisolatie, dubbel glas, HR-glas, muurisolatie, vloerisolatie en volledig geïsoleerd
- Verwarming
- Elektrische verwarming
- Warm water
- Elektrische boiler
Kadastrale gegevens
- BREDA B 9569
- Kadastrale kaart
- Eigendomssituatie
- Volle eigendom
Buitenruimte
- Ligging
- Aan park en in woonwijk
- Tuin
- Zonneterras
- Zonneterras
- 7 m² (3,00 meter diep en 2,25 meter breed)
- Ligging tuin
- Gelegen op het zuiden
- Balkon/dakterras
- Dakterras aanwezig
Parkeergelegenheid
- Soort parkeergelegenheid
- Betaald parkeren en parkeervergunningen
VvE checklist
- Inschrijving KvK
- Ja
- Jaarlijkse vergadering
- Ja
- Periodieke bijdrage
- Ja (€ 125,00 per maand)
- Reservefonds aanwezig
- Ja
- Onderhoudsplan
- Ja
- Opstalverzekering
- Ja
Foto's 21
© 2001-2025 funda




















