Dit huis op Funda: https://www.funda.nl/detail/koop/breda/huis-haagweg-286/43755738/

Omschrijving
Verrassend royale vooroorlogse tussenwoning met een living van circa 46 m², gelegen op korte afstand van de gezellige Haagse Markt in de dorpskern van Princenhage en op korte afstand van het Bourgondische centrum van Breda.
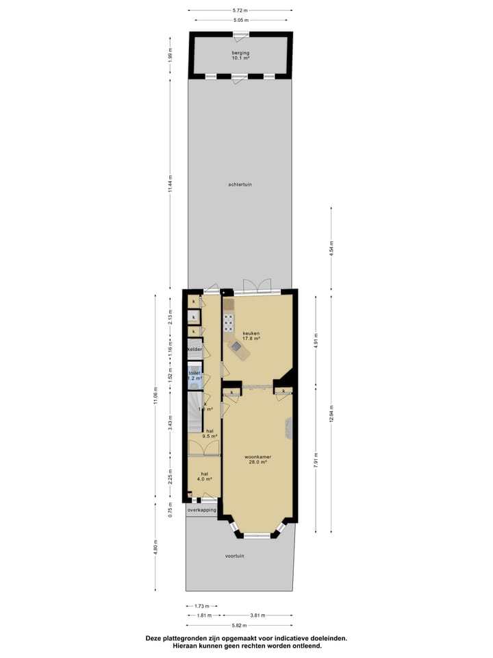
Goed onderhouden karakteristieke tussenwoning met op de begane grond een plafond hoogte van maar liefst 3 meter! Met gevel in Art-Nouveau stijl en nog meer authentieke elementen. Deze sfeervolle woning is voorzien van vrijstaande stenen berging met achterom en een volop privacy biedende fraai aangelegde achtertuin van ruim 65 m².
De Haagweg in een straat met veel karakteristieke woningen, voldoende parkeergelegenheid, een zeer goede verbinding naar het stadscentrum, het Centraal Station en tot de in- en uitvalswegen. Op loopafstand tref je diverse winkels aan. De gezellige Haagse Markt en de weekmarkt op de Haagdijk zijn binnen enkele (fiets)minuten bereikbaar. Het bruisende centrum van Breda bereik je al op minder dan 1,5 kilometer afstand.
Bouwjaar : ca. 1909
Energielabel : Energielabel C
Perceel oppervlakte : 175 m²
Inhoud : ca. 525 m³
Woonoppervlakte : ca. 138 m²
Aanvaarding : in onderling overleg
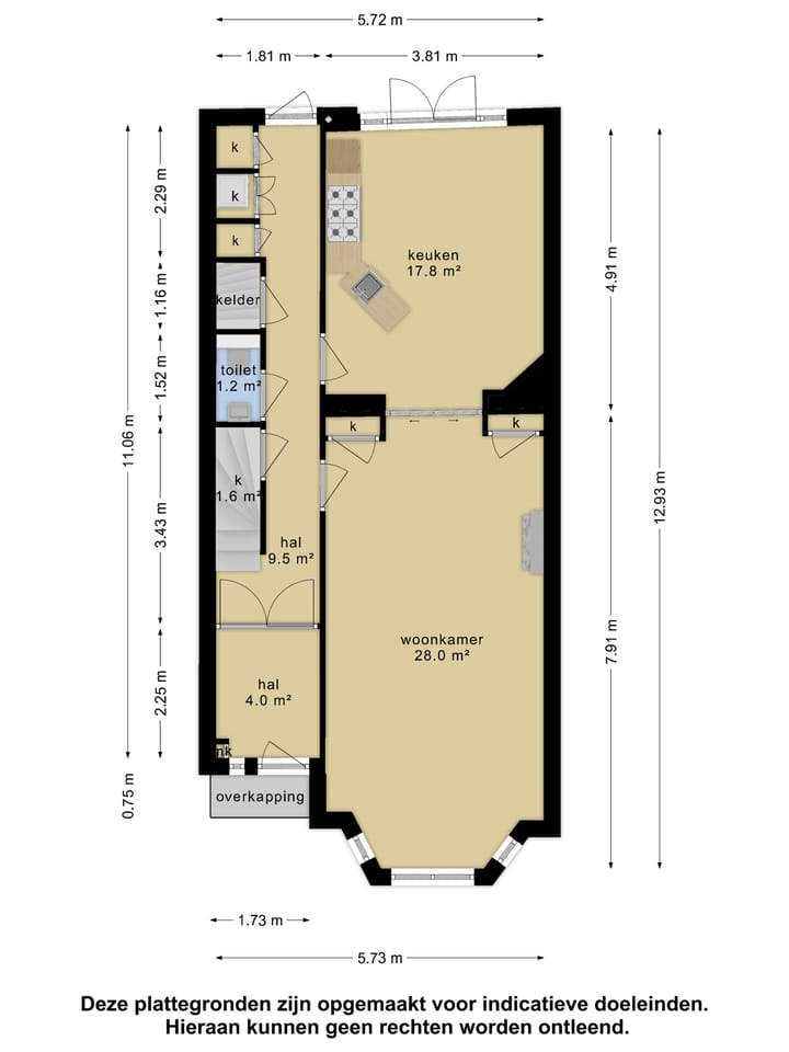
Kelder:
Royale provisie/wijn kelder (ca. 1.80x3.45 m.) met een gewelven plafond.
Begane grond:
Entree/vestibule met klapdeuren en granito vloer; centrale hal met granito vloer, trapopgang naar de eerste verdieping, gedeeltelijk betegelde toiletruimte met wandcloset voorzien van inbouw reservoir en fonteintje; toegang tot de kelder en een bijkeuken/achter entree met vaste kastenwand voorzien van aansluitingen ten behoeve van de wasapparatuur.
Woonkamer en-suite (totaal ca. 46 m²) met authentieke planken vloer, schuifdeuren met glas in lood bovenramen, twee vaste kasten en openslaande deuren naar de achtertuin. De en-suite is onderverdeeld in een woonkamer (ca. 28 m²) met een royale erker aan de straatzijde en een schouw met gashaard; woonkeuken (ca. 18 m²) aan de tuinzijde voorzien van marmoleum vloerafwerking en een keukeninrichting met 5 pits gaskookplaat met wok brander, afzuigkap, koel-vriescombinatie, combi oven/magnetron en een vaatwasser.
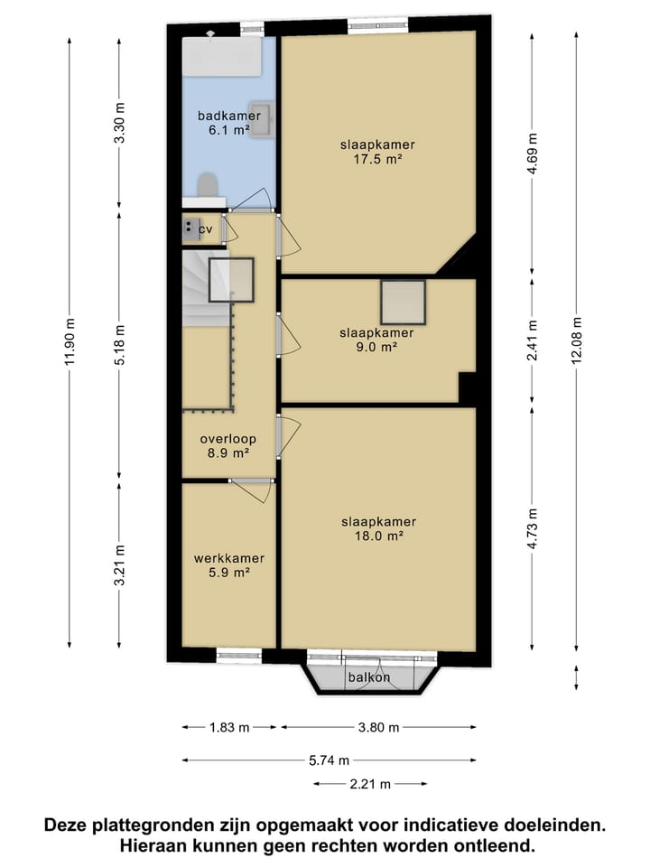
Eerste verdieping:
Overloop met vaste kast voorzien van CV-combiketel (HR 2009); slaapkamer voorzijde (ca. 3.80x4.70 m.) met openslaande deuren naar balkon; werkkamer voorzijde (ca. 1.80x3.20 m.); slaapkamer (ca. 2.40x3.80 m.) met lichtkoepel; slaapkamer achterzijde (ca. 3.80x4.70 m.); gedeeltelijk betegelde badkamer (ca. 1.80x3.30 m.) met ligbad/douche combinatie, wastafel, wandcloset voorzien van inbouw reservoir en een design radiator.
De eerste verdieping is met uitzondering van het sanitair voorzien van een fraaie visgraat parketvloer.
Tuin met berging:
Volop privacy biedende, fraai aangelegde achtertuin van ruim 65 m² voorzien van een royale stenen berging van (ca. 2.00x5.00 m.) welke is voorzien van elektra en loopdeur naar een achterom.
Algemeen
- Plafond hoogte van 3 meter op de begane grond.
- Voor een goede indruk van deze verrassend royale en sfeervolle woning is een bezichtiging meer dan de moeite waard.
- Bij een verkoop wordt als basis gebruik gemaakt van het model van de koopovereenkomst, vastgesteld door de Nederlandse Vereniging van Makelaars in onroerende goederen NVM, de Consumentenbond en de Vereniging Eigen Huis. In deze koopovereenkomst wordt standaard de verplichting tot het storten van een waarborgsom of het stellen van een bankgarantie door de koper ter grootte van 10% van de koopsom opgenomen.
- Een koopovereenkomst komt tot stand onder de opschortende voorwaarde dat beide partijen de koopovereenkomst ondertekenen. Partijen kunnen derhalve noch aan een mondelinge overeenkomst, noch aan een schriftelijke bevestiging daarvan, rechten ontlenen.
- Deze vrijblijvende informatie is met de grootste zorg samengesteld, echter aan de inhoud hiervan kunnen geen rechten worden ontleend. Maatvoeringen zijn slechts indicatief en kunnen afwijken van de werkelijke situatie en zijn uitsluitend bedoeld om een indruk te geven van de indeling.
Kenmerken
Overdracht
- Laatste vraagprijs
- € 595.000 kosten koper
- Vraagprijs per m²
- € 4.312
- Status
- Verkocht
Bouw
- Soort woonhuis
- Eengezinswoning, tussenwoning
- Soort bouw
- Bestaande bouw
- Bouwjaar
- 1909
- Soort dak
- Plat dak bedekt met bitumineuze dakbedekking
Oppervlakten en inhoud
- Gebruiksoppervlakten
- Wonen
- 138 m²
- Gebouwgebonden buitenruimte
- 3 m²
- Externe bergruimte
- 10 m²
- Perceel
- 175 m²
- Inhoud
- 525 m³
Indeling
- Aantal kamers
- 5 kamers (3 slaapkamers)
- Aantal badkamers
- 1 badkamer en 1 apart toilet
- Badkamervoorzieningen
- Douche, ligbad, toilet, en wastafel
- Aantal woonlagen
- 2 woonlagen en een kelder
- Voorzieningen
- Natuurlijke ventilatie, rolluiken, rookkanaal, en TV kabel
Energie
- Energielabel
- C
- Isolatie
- Dubbel glas en muurisolatie
- Verwarming
- Cv-ketel en gashaard
- Warm water
- Cv-ketel
- Cv-ketel
- Vaillant VHR (gas gestookt combiketel uit 2009, eigendom)
Kadastrale gegevens
- PRINCENHAGE H 2323
- Kadastrale kaart
- Oppervlakte
- 175 m²
- Eigendomssituatie
- Volle eigendom
Buitenruimte
- Ligging
- Beschutte ligging en in woonwijk
- Tuin
- Achtertuin en voortuin
- Achtertuin
- 65 m² (11,30 meter diep en 5,75 meter breed)
- Ligging tuin
- Gelegen op het noordwesten bereikbaar via achterom
- Balkon/dakterras
- Balkon aanwezig
Bergruimte
- Schuur/berging
- Vrijstaande stenen berging
- Voorzieningen
- Elektra
Parkeergelegenheid
- Soort parkeergelegenheid
- Openbaar parkeren
Foto's 53
© 2001-2025 funda




















































