Dit huis op Funda: https://www.funda.nl/detail/koop/breda/huis-uitoord-33/43065598/

Omschrijving
Welkom aan Uitoord 33 in Breda. Deze verzorgde tussenwoning met drie slaapkamers en een royale tuin ligt in een rustige, kindvriendelijke buurt. Je woont hier comfortabel, met scholen, winkels en openbaar vervoer op korte afstand, ideaal voor starters of jonge gezinnen.
Ligging:
De woning ligt in een rustige, kindvriendelijke buurt in Breda-Noord met een vrij uitzicht over de landerijen. In de directe omgeving vind je alles wat je nodig hebt: basisscholen, supermarkten, sportclubs en speeltuinen. Het Haagse Beemdenbos en de Asterdplas liggen op korte afstand, ideaal voor een wandeling of een dagje buiten. Het centrum van Breda is snel bereikbaar per fiets of openbaar vervoer, en ook de A16 en A27 zijn vlot aan te rijden.
Indeling
Begane grond
Je komt de woning binnen via de entree. Hier bevinden zich het gastentoilet en de trap naar de eerste verdieping. De ruime woonkamer heeft prettig lichtinval dankzij de grote raampartijen. Ook is er een gezellige zithoek gecreëerd. De open keuken is voorzien van inbouwapparatuur: een ingebouwde koelkast, vriezer, vaatwasser en keramische kookplaat.
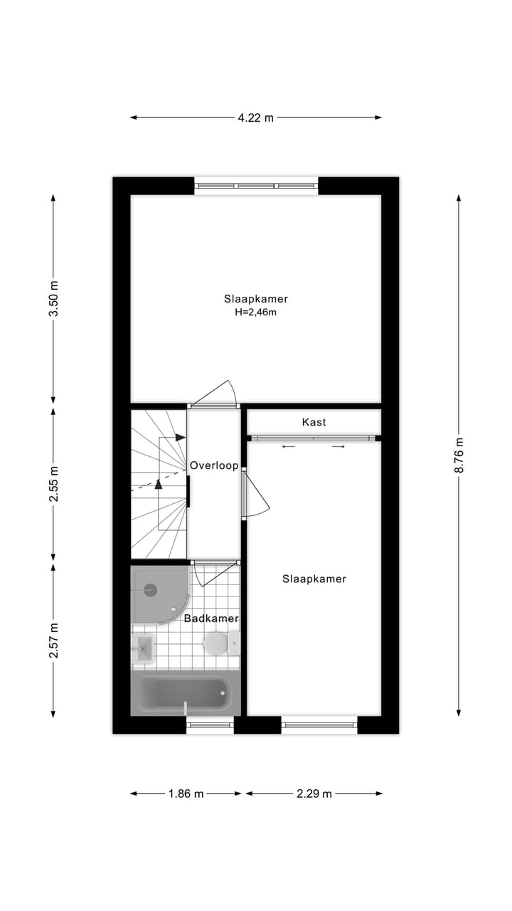
Eerste verdieping
Grenzend aan de overloop van de eerste verdieping zijn twee slaapkamers en de badkamer gelegen. De slaapkamers bieden rust, privacy en comfort. Eén van de slaapkamers is uitgerust met een ingebouwde kast. In de badkamer tref je een comfortabel ligbad, een tweede toilet, een douchecabine en een wastafel met spiegelkast.
Tweede verdieping
De tweede verdieping is in meerdere delen opgesplitst. De voorzolder is voorzien van een dakraam en wasmachineaansluiting. Daarachter bevindt zich een ruimte die kan dienen als slaapkamer. Hier vind je ook weer een ingebouwde kast die extra bergruimte biedt.
Tuin
De achtertuin is gelegen op het westen, waardoor je in de middag en avond heerlijk van de zon kunt genieten. De tuin is onderhoudsarm aangelegd en beschikt over een achterom, wat extra praktisch is. Aan de voorzijde van de woning bevindt zich een vrijstaande stenen garage, groot genoeg voor het parkeren van een auto en het opbergen van fietsen of gereedschap.
Highlights:
Verzorgde tussenwoning met drie slaapkamers;
Ruime, onderhoudsarme achtertuin op het westen;
Vrijstaande stenen garage aan de voorzijde (geschikt voor een auto);
Gelegen in een rustige, kindvriendelijke wijk in Breda-Noord;
Aanvaarding/oplevering in overleg.
Deze informatie is door ons met de nodige zorgvuldigheid samengesteld. Onzerzijds wordt echter geen enkele aansprakelijkheid aanvaard voor enige onvolledigheid, onjuistheid of anderszins, dan wel de gevolgen daarvan. Alle opgegeven maten en oppervlakten zijn indicatief.
Kenmerken
Overdracht
- Laatste vraagprijs
- € 398.000 kosten koper
- Vraagprijs per m²
- € 3.618
- Status
- Verkocht
Bouw
- Soort woonhuis
- Eengezinswoning, tussenwoning
- Soort bouw
- Bestaande bouw
- Bouwjaar
- 1986
- Soort dak
- Zadeldak bedekt met pannen
- Keurmerken
- Algemene Woning Keur
Oppervlakten en inhoud
- Gebruiksoppervlakten
- Wonen
- 110 m²
- Externe bergruimte
- 23 m²
- Perceel
- 167 m²
- Inhoud
- 359 m³
Indeling
- Aantal kamers
- 4 kamers (3 slaapkamers)
- Aantal badkamers
- 1 badkamer en 1 apart toilet
- Badkamervoorzieningen
- Douche en ligbad
- Aantal woonlagen
- 3 woonlagen
- Voorzieningen
- Buitenzonwering, dakraam, rolluiken, en TV kabel
Energie
- Energielabel
- Niet beschikbaar
- Isolatie
- Dakisolatie, grotendeels dubbelglas, muurisolatie en vloerisolatie
- Verwarming
- Stadsverwarming
- Warm water
- Stadsverwarming
Kadastrale gegevens
- BREDA H 3279
- Kadastrale kaart
- Oppervlakte
- 167 m²
- Eigendomssituatie
- Volle eigendom
Buitenruimte
- Ligging
- Vrij uitzicht
- Tuin
- Achtertuin en voortuin
- Achtertuin
- 10,00 meter diep en 4,60 meter breed
- Ligging tuin
- Gelegen op het westen bereikbaar via achterom
Garage
- Soort garage
- Vrijstaande stenen garage
- Capaciteit
- 1 auto
- Voorzieningen
- Elektra
- Isolatie
- Dakisolatie
Parkeergelegenheid
- Soort parkeergelegenheid
- Op eigen terrein en openbaar parkeren
Foto's 47
© 2001-2026 funda














































