
Omschrijving
Wil jij een jaren '30 woning met energielabel A? Dan ben je hier aan het juiste adres!
De leukste woning uit de straat? Wij denken van wel; maar in ieder geval de meest unieke door de opbouw op de uitbouw. Daarmee biedt de woning fors meer ruimte, zowel op de begane grond als de eerste verdieping. Extra verrassend voor een karakteristieke woning uit 1929: dit pand heeft zelfs energielabel A! Waar kom je dat nou tegen? Doordat er 11 zonnepanelen geplaatst zijn en rekening is gehouden met isolatie, is dit pand zeer energiezuinig. Sfeer, woonvibe en charme zijn de woorden die passen bij deze karakteristieke tussenwoning die in een van de meest gewilde wijken in het gemoedelijke zuiden van ons mooie Breda 'Het Ginneken' ligt. Je zou gewoon naar de voorgevel kunnen blijven kijken! Het is echt een instapklare woning te noemen waar alles flink gemoderniseerd is. Er zijn onder andere een ruime woonkamer, 4 slaapkamers en moderne badkamer en flinke berging met vliering te zien tijdens een bezichtiging. De achtertuin heeft de middag en avondzon, wat heerlijk toeven is. Kom jij tijdens een bezichtiging ervaren of dit de woning is die de komende jaren jou jouw woongenot gaat geven? Pas wel op: je kan op slag verliefd raken!
INDELING
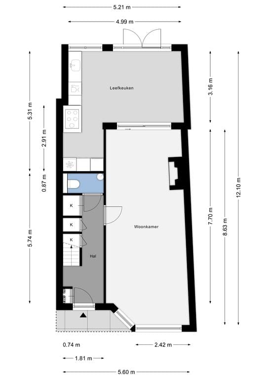
BEGANE GROND
Entree / hal, met (open) trapopgang met kast op maat, de meterkast (10 groepen, 3 aardlekschakelaars, digitale dag- en nachtstroom tariefmeter), het toilet, ruime verdiepte trapkast (met digitale gas- & watermeter) en toegang tot de woonkamer via stalen Gers taatsdeur voorzien van rookglas.
Toilet, betegeld, met zwevend closet, fonteintje en ventilatie.
Woonkamer, met grote gashaard (2011, opnieuw betegeld in 2019 en binnenwerk vernieuwd) en de open woonkeuken. De woonkamer is voorzien van een eiken visgraat parket en gestucte wand- en plafondafwerking en houten shutters.
Middels stalen Gers schuifdeuren met rookglas is de woon-eetkeuken bereikbaar.
Open & moderne (2011) woonkeuken, met composiet werkblad, koel/vriescombinatie (2022), 5-pits gasfornuis, afzuigkap, rvs spoelbak, combi oven/magnetron, vaatwasser en bergruimte. Via openslaande deuren is de tuin te bereiken.
EERSTE VERDIEPING
Overloop, met groot dakraam wat zorgt voor extra lichtinval, het toilet, gangkast, toegang tot slaapkamers I, II, III, IV en de badkamer.
Handige gangkast met de CV-ketel (eigendom, Remeha Calenta CW4, 2011) aansluiting wasmachine en Goodwe (2019) omvormer en bergruimte.
Toilet, betegeld, met zwevend closet, fonteintje, spots en ventilatie.
Slaapkamer I, gelegen aan de achterzijde, met spots en inbouwkast.
Slaapkamer II, gelegen aan de achterzijde, met spots, inbouwkast, airco met eigen unit en Frans balkon.
Moderne badkamer (2016), tussenin gelegen, betegeld, met design radiator, duo ligbad, inloopdouche met stalen douchedeur, 2 wastafels op meubel, spots en ventilatie.
Slaapkamer III, gelegen aan de voorzijde met airco met eigen unit en via het raam toegang tot een klein balkon.
Slaapkamer IV, gelegen aan de voorzijde.
TUIN
Voortuin voorzien van natuursteen.
Achtertuin, volledig vernieuwd in 2019 en voorzien van kunststof vlonders, ingebouwde trampoline en volledig geïsoleerde berging . De tuin is gelegen op het noordwesten, met waterpunt, verlichting, elektrisch zonnescherm en berging en achterom. In alle seizoenen kun je genieten van de middag- en avondzon.
BERGING
De volledig geïsoleerde vernieuwde berging (2022) is voorzien van een geïsoleerde wanden en vloer, Velux dakraam, verdieping, op maat gemaakte kasten, werkblad en achterom. Voorzien van elektra, gas, water, infrarood verwarming, aansluiting was droger met vliering.
Deze multifunctionele ruimte is uitermate geschikt voor o.a. werken aan huis, extra logeerunit, speelkamer en bijkeuken/wasruimte.
BIJZONDERHEDEN
- Het pand is grotendeels voorzien van houten kozijnen met dubbele beglazing. Alleen de voordeur en het raam erboven hebben enkele beglazing;
- De begane grond is grotendeels voorzien van deels houten en deels tegelvloer, stucwerk wand- en plafondafwerking;
- De eerste verdieping is grotendeels voorzien van laminaat vloeren, stucwerk wand- en plafondafwerking;
- De ramen zijn grotendeels voorzien van horren op maat en de openslaande deuren naar tuin voorzien van een plissedeur.
- Het platte dak is in 2016 vernieuwd en geïsoleerd; In 2019 zijn 11 zonnepanelen geplaatst;
- De uitbouw heeft vloerverwarming (op ketel; het tegel gedeelte);
- In 2019 is de spouw geïsoleerd en de vloer is geïsoleerd met Tonzon
- In 2016 is de opbouw geplaatst;
- In 2022 is de voorzijde van de woning geschilderd;
- Volledig geïsoleerde berging met GWL in 2022;
- De uitbouw begane grond is 2010/2011 geplaatst;
- Deze woning heeft energielabel A;
- Indicatie huidig energieverbruik:
Gas en elektra: ca. € 90,- per maand
Gebaseerd op een 2-persoonshuishouding.
Aan bovengenoemde opgaven kunnen geen rechten worden ontleend, aangezien de vermelde kosten variabel zijn en/of periodiek gewijzigd kunnen worden.
Kenmerken
Overdracht
- Laatste vraagprijs
- € 595.000 kosten koper
- Vraagprijs per m²
- € 4.798
- Status
- Verkocht
Bouw
- Soort woonhuis
- Eengezinswoning, tussenwoning
- Soort bouw
- Bestaande bouw
- Bouwjaar
- 1929
- Soort dak
- Plat dak
Oppervlakten en inhoud
- Gebruiksoppervlakten
- Wonen
- 124 m²
- Gebouwgebonden buitenruimte
- 3 m²
- Externe bergruimte
- 16 m²
- Perceel
- 165 m²
- Inhoud
- 466 m³
Indeling
- Aantal kamers
- 5 kamers (4 slaapkamers)
- Aantal badkamers
- 1 badkamer
- Badkamervoorzieningen
- Douche, dubbele wastafel, en ligbad
- Aantal woonlagen
- 2 woonlagen
- Voorzieningen
- TV kabel
Energie
- Energielabel
- A
- Isolatie
- Dakisolatie, dubbel glas en muurisolatie
- Verwarming
- Cv-ketel en gashaard
- Warm water
- Cv-ketel
- Cv-ketel
- Remeha Calenta CW4 (gas gestookt combiketel uit 2011, eigendom)
Kadastrale gegevens
- GINNEKEN I 4459
- Kadastrale kaart
- Oppervlakte
- 165 m²
- Eigendomssituatie
- Volle eigendom
Buitenruimte
- Ligging
- In bosrijke omgeving en in woonwijk
- Tuin
- Achtertuin en voortuin
- Achtertuin
- 83 m² (16,11 meter diep en 5,15 meter breed)
- Ligging tuin
- Gelegen op het noordwesten bereikbaar via achterom
Bergruimte
- Schuur/berging
- Vrijstaande stenen berging
- Voorzieningen
- Vliering, elektra en stromend water
- Isolatie
- Dakisolatie, dubbel glas, muurisolatie en vloerisolatie
Parkeergelegenheid
- Soort parkeergelegenheid
- Openbaar parkeren
Foto's 53
© 2001-2025 funda




















































