Dit huis op Funda: https://www.funda.nl/detail/koop/breda/huis-waterviolier-100/43079935/

Omschrijving
Energielabel A+
Nieuwe keuken uit 2024
Schitterend gelegen riante singelwoning met dakterras en zonnige achtertuin. Deze woning is gesitueerd aan de noordelijke singelwand in de gewilde nieuwbouwwijk “Kroeten”.
Bouwjaar: 2001; Perceel 159m²; Inhoud: ca. 455m³. Woonoppervlakte: ca. 147m².
De woning is gelegen in de wijk Kroeten, in de Haagse Beemden. Scholen, medisch centrum, winkelcentrum Heksenwiel, de Asterdplas en het Station “Prinsenbeek” zijn op loop-/fietsafstand te bereiken. De ligging ten opzichte van het centrum van Breda, het Centraal Station van Breda en de diverse uitvalswegen (A16, A58 en A59) is uitstekend.
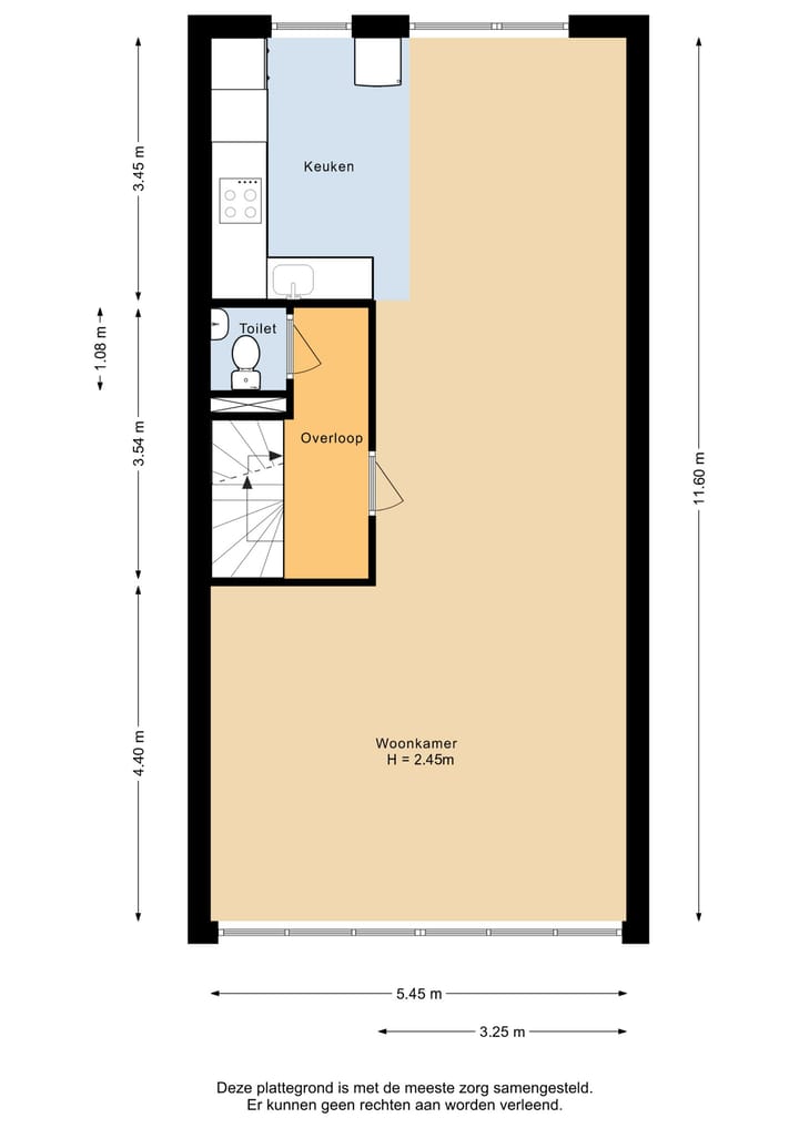
De woonkamer is gelegen op de eerste verdieping en is hierdoor verrassend ruim (ca. 55m²). De ramen aan zowel de voor- als achterzijde zorgen voor veel licht. Aan de achterzijde van de woonkamer bevind zich de nieuwe ( 2024) keuken in L-vorm met diverse inbouwapparatuur, met meer dan genoeg ruimte voor een eettafel.
Bij dit grotere woningtype en de woonkamer op de eerste verdieping is er een prachtig zicht op de natuurlijke omgeving, mede doordat de woning aan de singelzijde gesitueerd is. Het zonnige (zuidwesten) dakterras op de tweede verdieping is aan de voorzijde gelegen.
Het woonhuis beschikt over twee badkamers, waarvan één grote op de begane grond en een kleinere op de tweede verdieping. De betegelde badkamer I op de begane grond is uitgerust met een ligbad, douche en wastafel. Badkamer II is voorzien van een douchecabine en wastafel.
De achtertuin is aangelegd met sierbestrating, diverse borders met vaste beplanting, een buitenkraantje en een achterom. Aan de voorzijde van het woonhuis is er een ruime oprit met 2 parkeerplaatsen en een inpandige berging die ook van buiten toegankelijk is. De berging biedt genoeg ruimte voor het stallen van meerdere fietsen.
Het woonhuis is voorzien van een volledig isolatiepakket. Voor de centrale verwarming wordt gebruik gemaakt van het stadsverwarmingsnet. Het warm water wordt geregeld middels een HR-doorstroomapparaat (2010). Ook is de woning voorzien van mechanische ventilatie.
Het betreft hier een verrassende ruime en schitterend gelegen woning!
Indeling
Begane grond:
Entree/hal met meterkast (9 groepen, kookgroep, 2 aardlekschakelaars), trapopgang, toiletruimte met fonteintje; inpandige berging; badkamer I met ligbad, douche en wastafel; slaapkamer I met net afgewerkte inbouwkast en deur naar de achtertuin; slaapkamer II met deur naar de achtertuin.
Eerste verdieping:
Overloop met toiletruimte, trapopgang naar de tweede verdieping; royale woonkamer/keuken (totaal ca. 55 m²), U-vormige woonkamer met open verbinding naar de moderne L-vormige keuken met hoek opgestelde keukeninrichting (Kvik, 2024) voorzien van diverse inbouwapparatuur zoals een vaatwasser, inductie kookplaat, afzuigkap en combioven. De losse energiezuinige koel/vriescombinatie blijft achter.
Tweede verdieping:
Overloop met toegang tot badkamer II en 2 slaapkamers. Badkamer I is voorzien van douchecabine en wastafel; slaapkamer III gelegen aan de achterzijde; slaap-/werkkamer IV gelegen aan de voorzijde met net afgewerkte inbouwkast en deur naar het dakterras.
Algemeen:
- De ruime, lichte living is afgewerkt met lamelparket vloerdelen;
- Warmwatervoorziening is een HR-doorstroomapparaat;
- Uitstekende isolatie, energielabel A+;
- De woning beschikt over 6 zonnepanelen;
- Er is door KPN glasvezel tot aan de voordeur aangelegd.
Met hoeveel zorg ook samengesteld er kunnen onvolledigheden voorkomen in de informatie en de afbeeldingen en het kan derhalve niet als een aanbod worden gezien. Er kunnen geen rechten aan worden ontleend en de opgegeven afmetingen, oppervlakte- en inhoudsmaten zijn dan ook indicatief.
Wij maken gebruik van een NVM model koopovereenkomst. In het kader van zekerheidstelling wordt er standaard een bankgarantie/waarborgsom van 10% opgenomen in de koopovereenkomst.
Kenmerken
Overdracht
- Laatste vraagprijs
- € 450.000 kosten koper
- Vraagprijs per m²
- € 3.061
- Status
- Verkocht
Bouw
- Soort woonhuis
- Eengezinswoning, tussenwoning (drive-in woning)
- Soort bouw
- Bestaande bouw
- Bouwjaar
- 2001
- Soort dak
- Plat dak
Oppervlakten en inhoud
- Gebruiksoppervlakten
- Wonen
- 147 m²
- Gebouwgebonden buitenruimte
- 22 m²
- Perceel
- 159 m²
- Inhoud
- 455 m³
Indeling
- Aantal kamers
- 5 kamers (4 slaapkamers)
- Aantal badkamers
- 2 badkamers en 2 aparte toiletten
- Badkamervoorzieningen
- 2 douches en ligbad
- Aantal woonlagen
- 3 woonlagen
- Voorzieningen
- Mechanische ventilatie
Energie
- Energielabel
- Isolatie
- Volledig geïsoleerd
- Verwarming
- Stadsverwarming
- Warm water
- Centrale voorziening
Kadastrale gegevens
- BREDA I 3833
- Kadastrale kaart
- Oppervlakte
- 159 m²
- Eigendomssituatie
- Volle eigendom
Buitenruimte
- Ligging
- In woonwijk
- Tuin
- Achtertuin en voortuin
- Achtertuin
- 63 m² (11,50 meter diep en 5,50 meter breed)
- Ligging tuin
- Gelegen op het noordoosten bereikbaar via achterom
- Balkon/dakterras
- Dakterras aanwezig
Bergruimte
- Schuur/berging
- Inpandig
Foto's 54
© 2001-2026 funda





















































