
Maarland Noordzijde 13231 CE BrielleBrielle
€ 875.000 k.k.
Omschrijving
In de historische vesting van Den Briel gelegen voormalig "Poortwachtershuis". Dit charmante woonhuis ligt op het meest unieke plekje van de vesting en diende vroeger als tolhuis voor het aangeven van goederen die met het veer Den Briel werden binnengebracht. De Noordpoort is afgebroken, maar het huis met prachtige details is bespaard gebleven en op de Monumentenlijst gezet. Deze verzorgde vrijstaande woning is gelegen op 249 m2 eigen grond en heeft een woonopp van ca. 101 m2. Het huis beschikt over 3 slaapkamers en een werkkamer, een tuin met zonnig terras, berging en eigen aanlegsteiger. Verwarming geschiedt middels cv-ketel (Rodiac). In de nabijheid bevinden zich winkels, horeca, sportfaciliteiten en het Brielse meer. Parkeren kan op eigen terrein of in de straat.
Omschrijving
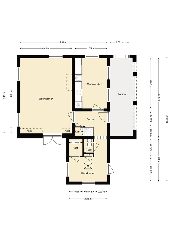
Middels een fraaie arcade is er toegang tot de woning.
Begane grond
Entree/ ontvangsthal met garderobe, plavuizenvloer, trapkast en trapopgang met fraaie trapleuning naar de eerste verdieping. In de doorgang naar de werkkamer bevindt zich het toilet met fonteintje.
Woonkamer - ca. 6.01 x 4.40 m
De zonnige woonkamer is gelegen aan de achterzijde en heeft een prachtig uitzicht over de haven en is v.v. een schitterend balkenplafond. Verder heeft de ruimte met eikenvloer een fraaie betegelde schouw (met rookkanaal). De openslaande deuren bieden toegang tot de tuin.
Woonkeuken - ca. 4.30 x 2.74 m
De woonkeuken met op maat gemaakte houten wandopstelling is gelegen aan de voorzijde. De keuken kijkt uit op de vestingwallen. De opstelling is v.v. spoelunit, Boretti fornuis met oven, 5 pits gaskookplaat, afzuigkap, koelkast, vriezer en wasmachineaansluiting. Het zijraam biedt uitzicht op de haven.
Werkkamer - ca. 3.23 x 2.04 m
Multifunctionele ruimte die momenteel in gebruik is als werkkamer. In deze kamer bevindt zich een vaste kast, de meterkast en een achterdeur naar de tuin. De kamer heeft aan twee zijden uitzicht op de haven. Via het luik is zolder bereikbaar. De vloer is afgewerkt met plavuizen.
Eerste verdieping
Overloop met vaste kast en toegang tot de 3 slaapkamers en de badkamer. De gehele verdieping is v.v. parket. Via een luik is een zolder bereikbaar.
Slaapkamer I - ca. 6.11 x 2.90/ 3.80 m
Deze hoofdslaapkamer met dakkapel en dakraam is gelegen aan de achterzijde en heeft ook het prachtige uitzicht over de haven. Dat is nog eens fijn ontwaken. De kamer is v.v. vaste kasten (1 met de geiser).
Slaapkamer II - ca. 8 m2
Deze kamer met dakkapel is gelegen aan de voorzijde van de woning en is v.v. een vaste kast.
Slaapkamer III - ca. 6 m2
Deze kamer is gelegen aan de voorzijde van de woning en heeft een vaste kast en dakraam.
Badkamer - ca. 2.75 x 2.06 m
De wit betegelde badkamer met dakraam is uitgerust met een ligbad met douche, wastafelmeubel en 2e toilet.
Tuin
De heerlijk zonnige tuin met buitenhaard is misschien wel het mooiste plekje van dit unieke huis. Vanuit de tuin is er zicht op de haven en op de binnenkomende boten. De tuin is omheind met de originele kademuur, waardoor er veel privacy is. Op het grote met marmer betegelde terras is het heerlijk vertoeven. Via een trap is het lager gelegen terras bereikbaar met aanlegsteiger en tuinberging. Ideaal om direct met een eigen boot het Brielse meer op te varen. De kademuur is in 2022 gerenoveerd en via de tuinpoort is de straat bereikbaar.
Berging - ca. 2.55 x 1.55 m
De houten tuinberging is een praktische plek om spullen op te bergen.
Naast de woning is een strook eigen grond met mogelijkheid voor het parkeren van een auto.
Historie
De stad Brielle bezit nog steeds haar oude stadswallen, gebouwd volgens het oud-Nederlands vestingstelsel. De vestinggordel van Den Briel heeft negen bastions en vijf ravelijnen en is gerestaureerd tussen 1972 en 1975. Sinds 1713 is er weinig aan de vesting veranderd, waardoor de verdedigingswerken tot de belangrijkste overgebleven vestingwerken van Nederland behoren. Brielle heeft met zijn 9 bastions de meeste nog bestaande bastions van alle vestingsteden in Nederland. Op 1 april 1572 werd de stad ingenomen door de Watergeuzen onder leiding van Lumey en Bloys van Treslong, waarbij veerman Jan Coppelstock een belangrijke rol vervulde. De Inname van Den Briel wordt algemeen gezien als het eigenlijke begin van de opstand tegen Filips II; zie ook Tachtigjarige Oorlog. Aan dit feit dankt Brielle haar schildspreuk Libertatis Primitiae, "eersteling der vrijheid".
Bijzonderheden:
- unieke vrijstaande woning aan de haven, met tuin en ligplaats;
- rijksmomument (nummer 10704) en beschermd stadsgezicht;
- kademuur renovatie 2022;
- unieke locatie aan vaarwater en het Brielse meer;
- zonnig huis met royaal en zonnig terras;
- cv via Rodiac (1978) en warm water middels geiser (Nefit 2008);
- houten kozijnen v.v. enkel glas;
- rolluik woonkamer;
- 3 slaapkamers en een werkkamer;
- 249 m2 eigen grond, woonoppervlak ca. 101 m2.
Disclaimer:
Deze informatie is door De Vreij Makelaardij met de nodige zorgvuldigheid samengesteld. De informatie is echter van algemene aard en niet meer dan een uitnodiging om in onderhandeling te treden. Onzerzijds en verkoper wordt echter geen enkele aansprakelijkheid aanvaard door enige onvolledigheid, onjuistheid of anderszins, dan wel de gevolgen daarvan. De meetinstructie is gebaseerd op de NEN2580. De meetinstructie is bedoeld om een meer eenduidige manier van meten toe te passen voor het geven van een indicatie van de gebruiksoppervlakte. De meetinstructie sluit verschillen in meetuitkomsten niet volledig uit, door bijvoorbeeld interpretatieverschillen, afrondingen of beperkingen bij het uitvoeren van de meting. Van toepassing zijn de Vastgoed Ned voorwaarden.
Kenmerken
Overdracht
- Oorspronkelijke vraagprijs
- € 1.150.000 kosten koper
- Aangeboden sinds
- Aanvaarding
- In overleg
- Vraagprijs
- € 875.000 kosten koper
- Vraagprijs per m²
- € 8.663
- Status
- Beschikbaar
Bouw
- Soort woonhuis
- Eengezinswoning, vrijstaande woning
- Soort bouw
- Bestaande bouw
- Bouwjaar
- 1750
- Specifiek
- Beschermd stads- of dorpsgezicht en monument
- Soort dak
- Tentdak bedekt met pannen
Oppervlakten en inhoud
- Gebruiksoppervlakten
- Wonen
- 101 m²
- Overige inpandige ruimte
- 7 m²
- Gebouwgebonden buitenruimte
- 10 m²
- Externe bergruimte
- 4 m²
- Perceel
- 249 m²
- Inhoud
- 426 m³
Indeling
- Aantal kamers
- 6 kamers (3 slaapkamers)
- Aantal badkamers
- 1 badkamer
- Badkamervoorzieningen
- Douche, ligbad, toilet, wastafel, en wastafelmeubel
- Aantal woonlagen
- 2 woonlagen
- Voorzieningen
- Dakraam, rolluiken, en rookkanaal
Energie
- Energielabel
- Niet verplicht
- Verwarming
- Cv-ketel
- Warm water
- Geiser
- Cv-ketel
- Rodiac (gas gestookt uit 1978, eigendom)
Kadastrale gegevens
- BRIELLE B 3859
- Kadastrale kaart
- Oppervlakte
- 213 m²
- Eigendomssituatie
- Volle eigendom
- BRIELLE B 5044
- Kadastrale kaart
- Oppervlakte
- 36 m²
- Eigendomssituatie
- Volle eigendom
Buitenruimte
- Ligging
- Aan vaarwater, aan water, in centrum en vrij uitzicht
- Tuin
- Achtertuin
- Achtertuin
- 117 m² (13,00 meter diep en 9,00 meter breed)
- Ligging tuin
- Gelegen op het oosten bereikbaar via achterom
Bergruimte
- Schuur/berging
- Vrijstaande houten berging
Parkeergelegenheid
- Soort parkeergelegenheid
- Op eigen terrein en openbaar parkeren
Foto's 48
Plattegronden 4
© 2001-2026 funda



















































