Dit huis op Funda: https://www.funda.nl/detail/koop/brielle/huis-nobelstraat-91/43870339/

Omschrijving
Karakteristiek huis in de binnenstad met tuin en eigen parkeerplaats. In de historische vesting ligt dit volledig herbouwde Rijksmonument, bekend als het voormalig Zuideindse Gasthuis (gesticht in 1293) met gepleisterde lijstgevel, hoog schilddak, 2 slaapkamers, stadstuin én naastgelegen parkeerplaats. De woning op de oude locatie is in 2007 gebouwd, geïsoleerd en van werkelijk alle gemakken voorzien. Alles klopt aan deze woning: de glad gestuukte wanden, de moderne keuken, fraaie badkamer, eiken visgraatvloer en fraaie overkapping in de tuin. Het woonoppervlak is ca. 102 m2. Verwarming middels cv-combiketel (Intergas HR 2023). Voorzieningen als winkels, scholen en sportvelden zijn dichtbij. Het Brielse meer is op loopafstand. De parkeerplaats (overdekt) is gelegen op het achtergelegen terrein.
Omschrijving
Prachtig betegelde entree/ hal met meterkast en toilet met fonteintje (mogelijkheid voor het plaatsen van een fiets).
Woonkamer - ca. 6.59 x 3.88 m
De sfeervolle woonkamer is gelegen aan de tuinzijde van de woning en heeft openslaande deuren naar de stadstuin. De woonkamer is v.v. airconditioning. De eiken vloer is gelegd in fraai visgraatmotief. Via de trap is de bovengelegen verdieping bereikbaar.
Eetkamer - ca. 2.28 x 2.12 m
De gezellige eetkamer is gelegen aan de voorzijde van de woonkamer en biedt plaats aan de eettafel.
Keuken - ca. 3.38 x 2.50 m
De moderne groene keuken aan de voorzijde van de woning is geplaatst in een dubbele wandopstelling welke is v.v. spoelunit, 5 pits gaskookplaat, afzuigkap, combi-oven, koelkast, vriezer, vaatwasmachine, Dektron werkblad en voldoende opbergmogelijkheden. Tevens bevindt zich hier een vaste kast.
Aansluitend aan de keuken is een tweede hal/ voorraadkast. Ideaal als bergplek. Vanuit hier is middels enkele traptreden de wijnkelder bereikbaar.
Souterrain/ wijnkelder - ca. 4.81 x 2.23 m (hoogte ca. 1.20 m)
Ideaal voor het opslaan van voorraad of als wijnkelder. De ruimte beschikt over elektra.
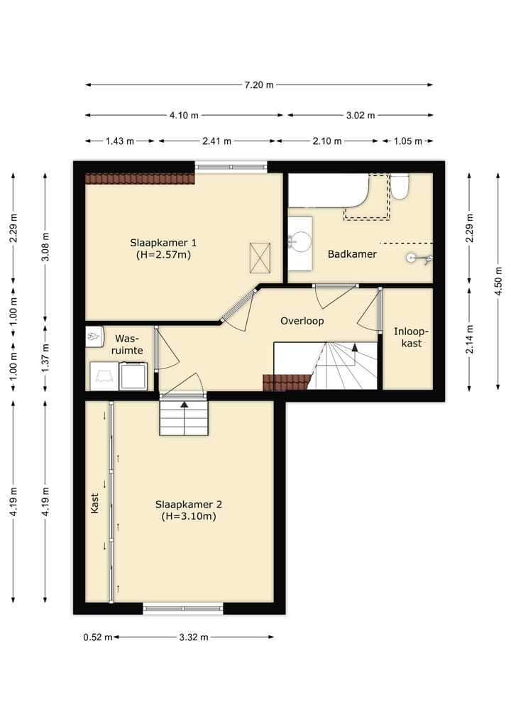
Eerste verdieping
Overloop met royale inloopkast. Wasruimte met wasmachineaansluiting en opstelplaats van de CV ketel.
De gehele verdieping is v.v. laminaat.
Slaapkamer I - ca. 4.19 x 3.32 m
Deze slaapkamer is gelegen aan de achterzijde en is voorzien van airconditioning en een vaste kastenwand.
Slaapkamer II - ca. 4.10 x 3.08 m
Deze slaapkamer is gelegen aan de voorzijde en is v.v. shutters en een luik naar de bergvliering.
Badkamer - ca. 3.02 x 2.29 m
De prachtige badkamer met dakraam beschikt over een badmeubel, ligbad, inloopdouche en 2e toilet.
De vloer is v.v. vloerverwarming.
Tuin
Op het zuidoosten gelegen zonnige stadstuin met vlonderterras en aluminium lamellen overkapping. Een heerlijk plek voor gezellige zomeravonden.
Parkeerplaats
Achter de woning gelegen eigen parkeerplaats op een gezamenlijk privéterrein. De parkeerplaats is overdekt.
Bijzonderheden:
- Rijksmonument nummer 10816;
- bouwjaar ca. 1293, renovatie/ bouw 2007;
- 6 zonnepanelen (2023);
- begane grond geïsoleerde betonvloer, verdieping hout;
- woonopp ca. 102 m2, perceelgrootte 75 m2;
- tuin met terrasoverkapping (geen achterom);
- vloer en gevels geïsoleerd, HR++ glas;
- instapklaar;
- eigen overdekte parkeerplaats achter de woning;
- beschermd stadsgezicht in de historische binnenstad gelegen.
Wij behartigen de zaken van de verkoper, neem daarom uw eigen aankoopmakelaar mee.
Disclaimer:
Deze informatie is door De Vreij Makelaardij met de nodige zorgvuldigheid samengesteld. De informatie is echter van algemene aard en niet meer dan een uitnodiging om in onderhandeling te treden. Onzerzijds en verkoper wordt echter geen enkele aansprakelijkheid aanvaard door enige onvolledigheid, onjuistheid of anderszins, dan wel de gevolgen daarvan. De meetinstructie is gebaseerd op de NEN2580. De meetinstructie is bedoeld om een meer eenduidige manier van meten toe te passen voor het geven van een indicatie van de gebruiksoppervlakte. De meetinstructie sluit verschillen in meetuitkomsten niet volledig uit, door bijvoorbeeld interpretatieverschillen, afrondingen of beperkingen bij het uitvoeren van de meting. Van toepassing zijn de VBO voorwaarden.
Kenmerken
Overdracht
- Laatste vraagprijs
- € 450.000 kosten koper
- Vraagprijs per m²
- € 4.412
- Status
- Verkocht
Bouw
- Soort woonhuis
- Eengezinswoning, tussenwoning
- Soort bouw
- Bestaande bouw
- Bouwjaar
- 2007
- Specifiek
- Beschermd stads- of dorpsgezicht, monument en monumentaal pand
- Soort dak
- Samengesteld dak bedekt met pannen
Oppervlakten en inhoud
- Gebruiksoppervlakten
- Wonen
- 102 m²
- Perceel
- 445 m²
- Inhoud
- 424 m³
Indeling
- Aantal kamers
- 3 kamers (2 slaapkamers)
- Aantal badkamers
- 1 badkamer
- Badkamervoorzieningen
- Dubbele wastafel, inloopdouche, ligbad, vloerverwarming, en wastafelmeubel
- Aantal woonlagen
- 2 woonlagen
- Voorzieningen
- Airconditioning, mechanische ventilatie, en zonnepanelen
Energie
- Energielabel
- Isolatie
- Dakisolatie, HR-glas, muurisolatie, vloerisolatie en volledig geïsoleerd
- Verwarming
- Cv-ketel
- Warm water
- Cv-ketel
- Cv-ketel
- Intergas (gas gestookt combiketel uit 2023, eigendom)
Kadastrale gegevens
- BRIELLE B 4616
- Kadastrale kaart
- Oppervlakte
- 1 m²
- Eigendomssituatie
- Volle eigendom
- BRIELLE B 4610
- Kadastrale kaart
- Oppervlakte
- 74 m²
- Eigendomssituatie
- Volle eigendom
- BRIELLE B 4621
- Kadastrale kaart
- Oppervlakte
- 180 m² (deelperceel)
- Eigendomssituatie
- Mandelig
- BRIELLE B 4622
- Kadastrale kaart
- Oppervlakte
- 190 m² (deelperceel)
- Eigendomssituatie
- Mandelig
Buitenruimte
- Ligging
- In centrum
- Tuin
- Achtertuin
- Achtertuin
- 25 m² (5,00 meter diep en 5,00 meter breed)
- Ligging tuin
- Gelegen op het zuidoosten
Parkeergelegenheid
- Soort parkeergelegenheid
- Op eigen terrein en openbaar parkeren
Foto's 34
© 2001-2026 funda

































