
Omschrijving
Sfeervolle tweekapper op TOPLOCATIE aan de Beethovenlaan.
Gelegen aan een rustig hofje in één van de meest geliefde straten van de wijk, vindt u deze royale tweekapper met garage, werkkamer en zonnige achtertuin. Hier geniet u van een groene en beschutte omgeving met volop privacy en een ideale ligging op het westen.
Indeling
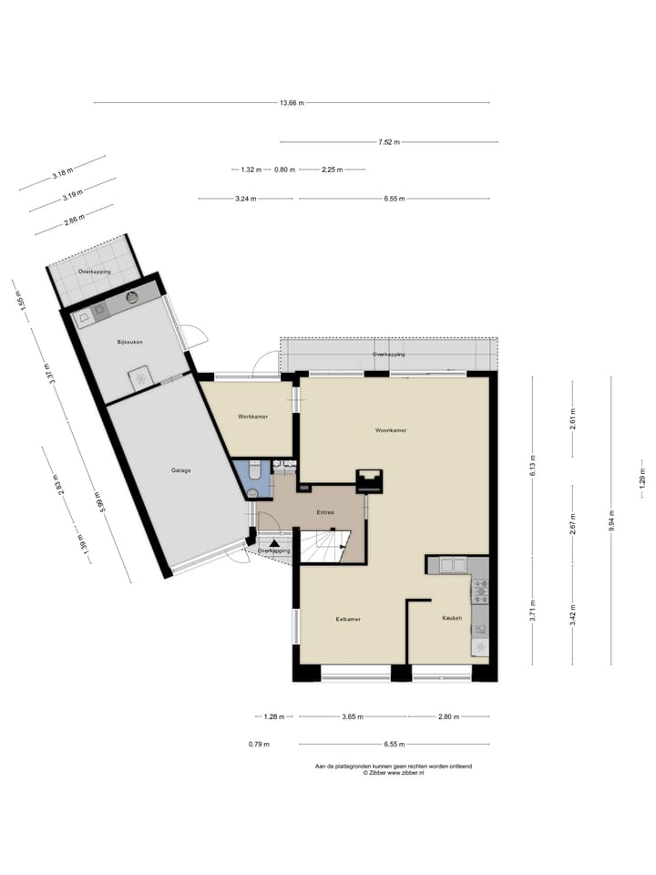
Bij binnenkomst treft u de hal met toilet, meterkast en trapopgang naar de verdieping. Aan de voorzijde bevindt zich de eetkamer en de keuken. De ruime woonkamer aan de achterzijde is voorzien van een sfeervolle haard en een schuifpui naar de tuin. Aansluitend vindt u de werkkamer, eveneens met directe toegang tot de achtertuin. De bijkeuken is bereikbaar via de aangebouwde garage, hier vindt u de aansluitingen voor wasmachine en droger en extra toegang tot de tuin.
Verdieping
De overloop geeft toegang tot drie slaapkamers, waarvan twee met praktische kastenwanden. Eén slaapkamer beschikt bovendien over een wastafel. De moderne badkamer is ingericht met een dubbele wastafel, douche en toilet. Vanuit de overloop bereikt u het balkon.
Zolder
Via een vaste trap bereikt u de voorzolder met CV-opstelling en de vierde slaapkamer met dakraam.
Buitenruimte
De achtertuin is een heerlijke groene oase: beschut, met volop privacy en gelegen op het westen voor lange zonnige avonden.
Bijzonderheden
10 zonnepanelen (2023)
Rustige ligging aan plantsoen met weids uitzicht
Werkkamer en bijkeuken op de begane grond
Een huis met potentie op een geweldige locatie. Kom kijken en ontdek de mogelijkheden!
Kenmerken
Overdracht
- Laatste vraagprijs
- € 719.000 kosten koper
- Vraagprijs per m²
- € 4.522
- Status
- Verkocht
Bouw
- Soort woonhuis
- Herenhuis, 2-onder-1-kapwoning
- Soort bouw
- Bestaande bouw
- Bouwjaar
- 1978
- Soort dak
- Zadeldak bedekt met pannen
Oppervlakten en inhoud
- Gebruiksoppervlakten
- Wonen
- 159 m²
- Overige inpandige ruimte
- 19 m²
- Gebouwgebonden buitenruimte
- 22 m²
- Externe bergruimte
- 4 m²
- Perceel
- 335 m²
- Inhoud
- 630 m³
Indeling
- Aantal kamers
- 7 kamers (4 slaapkamers)
- Aantal badkamers
- 1 badkamer en 1 apart toilet
- Badkamervoorzieningen
- Dubbele wastafel, inloopdouche, toilet, en wastafelmeubel
- Aantal woonlagen
- 3 woonlagen
- Voorzieningen
- Dakraam, natuurlijke ventilatie, schuifpui, en zonnepanelen
Energie
- Energielabel
- Isolatie
- Dakisolatie, dubbel glas, muurisolatie en vloerisolatie
- Verwarming
- Cv-ketel
- Warm water
- Cv-ketel
- Cv-ketel
- Remeha Tzerra Ace 39C (gas gestookt combiketel uit 2020, eigendom)
Kadastrale gegevens
- BUNSCHOTEN F 2458
- Kadastrale kaart
- Oppervlakte
- 335 m²
- Eigendomssituatie
- Volle eigendom
Buitenruimte
- Ligging
- Aan rustige weg, beschutte ligging, in woonwijk en vrij uitzicht
- Tuin
- Achtertuin, voortuin en zijtuin
- Achtertuin
- 163 m² (9,73 meter diep en 18,29 meter breed)
- Ligging tuin
- Gelegen op het westen
- Balkon/dakterras
- Dakterras aanwezig
Bergruimte
- Schuur/berging
- Vrijstaande houten berging
- Isolatie
- Geen isolatie
Garage
- Soort garage
- Aangebouwde stenen garage en parkeerplaats
- Capaciteit
- 1 auto
- Voorzieningen
- Elektra, verwarming en stromend water
Parkeergelegenheid
- Soort parkeergelegenheid
- Op eigen terrein
Foto's 57
© 2001-2026 funda
























































