
Omschrijving
Gelegen in de rustieke dorpskern van Bunschoten vindt u deze charmante, witte woning. Met zijn rijke geschiedenis straalt het pand veel karakter uit. De locatie is ook heel bijzonder met prachtig uitzicht op de kerk en wat ook heel fijn is is dat alle voorzieningen op korte afstand zijn. Denk hierbij aan diverse winkels, supermarkt, horecagelegenheden en nog veel meer! Tevens bent u binnen enkele minuten op de uitvalswegen naar de A1 en A28.
Dit is uw kans om een zeer unieke woning te realiseren!
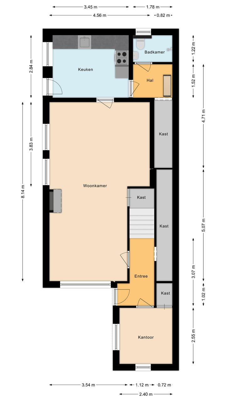
Begane grond:
Entree, hal met toegang tot de woonkamer, toegang tot een werkkamer en trapopgang naar de 1e verdieping. De woonkamer is van een mooie grootte en is voorzien van een open haard. Doorloop naar de keuken die voorzien is van diverse inbouwapparatuur waaronder een kookplaat, oven, vaatwasser en afzuigkap. Via de hal (met CV-ketelinstallatie) naast de keuken is de badkamer op de begane grond bereikbaar. De badkamer is voorzien van een douche, wastafel en toilet.
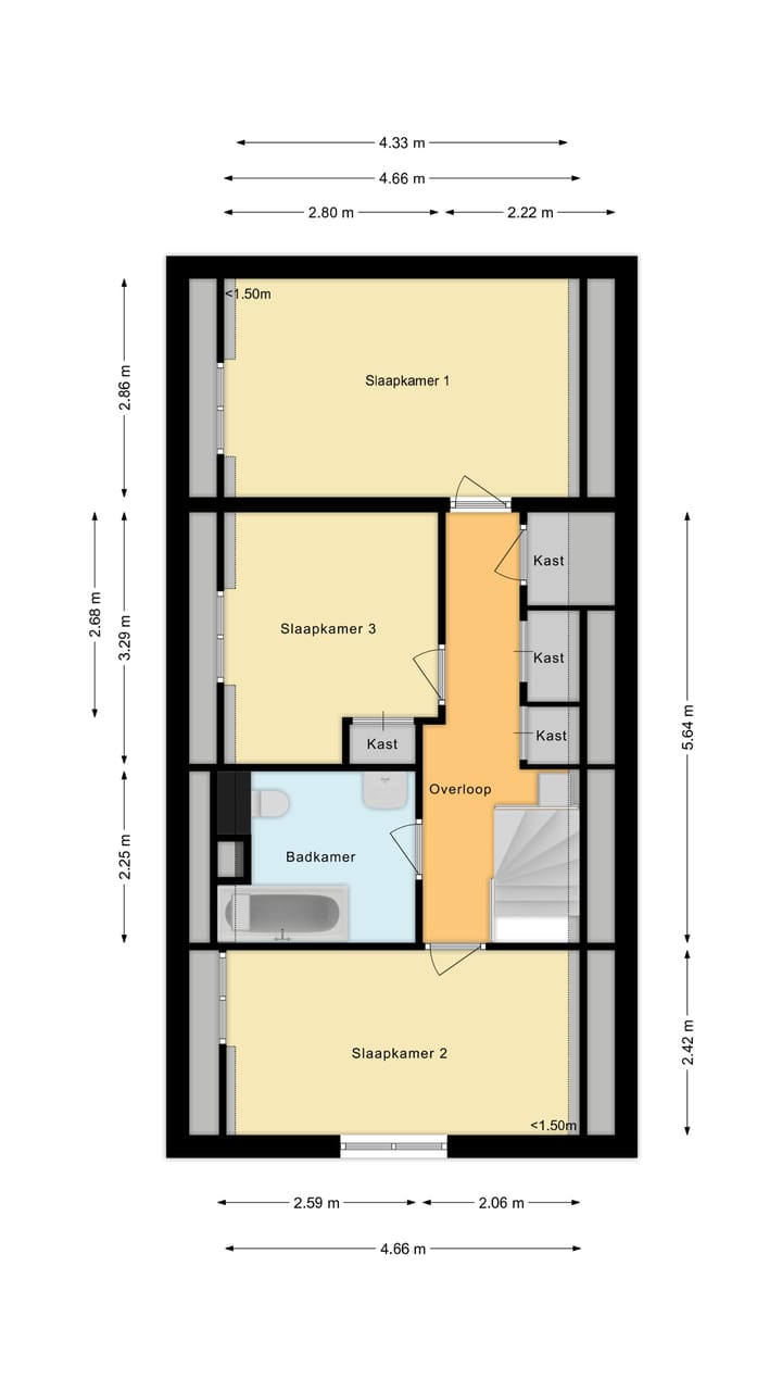
1e verdieping:
Via de trap van de begane grond komt u op de overloop terecht. De overloop biedt toegang aan 3 slaapkamers en een badkamer. De slaapkamers zijn afgewerkt met vloerbedekking en behang op de wanden. Daarnaast heeft elke slaapkamer een dakkapel. De badkamer is voorzien van een ligbad, toilet, wastafel en radiator.
Bergzolder:
Middels losse trap is de bergzolder te bereiken, deze is over de gehele lengte van de woning.
Tuin:
De zijtuin is gelegen op het zuidwesten en is fraai aangelegd met sierbestrating en pergola's. In deze tuin kunt u heerlijk genieten van de rust en het mooie weer.
KENMERKEN:
+ Karakteristieke woning in de rustieke dorpskern van Bunschoten-Spakenburg.
+ Woonoppervlak van 120m2.
+ Perceeloppervlak van 155m2.
+ 2 badkamers, waarvan 1 op de begane grond.
+ Alle nodige voorzieningen op korte afstand.
+ Basisschool en middelbare school op loopafstand.
+ 3 slaapkamers op de 1e verdieping.
+ Optimale kans om een unieke woning te realiseren.
+ Extra werkkamer op de begane grond, ideaal voor het thuiswerken!
+ Parkeren op bijbehorende parkeerplaats van de kerk.
+ Energielabel G
+ Snelle levering mogelijk.
Kenmerken
Overdracht
- Laatste vraagprijs
- € 450.000 kosten koper
- Vraagprijs per m²
- € 3.750
- Status
- Verkocht
Bouw
- Soort woonhuis
- Eengezinswoning, geschakelde 2-onder-1-kapwoning
- Soort bouw
- Bestaande bouw
- Bouwjaar
- 1950
- Soort dak
- Mansarde dak bedekt met pannen
Oppervlakten en inhoud
- Gebruiksoppervlakten
- Wonen
- 120 m²
- Perceel
- 155 m²
- Inhoud
- 443 m³
Indeling
- Aantal kamers
- 5 kamers (3 slaapkamers)
- Aantal badkamers
- 2 badkamers
- Badkamervoorzieningen
- Douche, 2 toiletten, 2 wastafels, en ligbad
- Aantal woonlagen
- 2 woonlagen
- Voorzieningen
- Natuurlijke ventilatie
Energie
- Energielabel
- G
- Isolatie
- Gedeeltelijk dubbel glas
- Verwarming
- Cv-ketel
- Warm water
- Cv-ketel
- Cv-ketel
- HR-107 (eigendom)
Kadastrale gegevens
- BUNSCHOTEN K 1436
- Kadastrale kaart
- Oppervlakte
- 155 m²
- Eigendomssituatie
- Volle eigendom
Buitenruimte
- Ligging
- In centrum
- Tuin
- Zijtuin
Parkeergelegenheid
- Soort parkeergelegenheid
- Openbaar parkeren
Foto's 43
© 2001-2025 funda










































