Dit huis op Funda: https://www.funda.nl/detail/koop/bussum/appartement-oranjepark-10/43973039/

Omschrijving
Dit ruime driekamerappartement ligt op een prachtig punt, aan de rand van villawijk 'het Spiegel' en op loopafstand van station Naarden-Bussum. Het bevindt zich op de 1e verdieping en heeft een ruime berging in de onderbouw. Het complex bezit een lift en het appartement heeft twee balkons gelegen op het zuiden. De balkons kijken uit op een mooi weids gazon.
Het is onderdeel van een kleinschalig goed onderhouden appartementencomplex (12 appartementen), ontworpen onder architectuur van Dudok (gemeentelijk monument).
De ligging is zeer gunstig t.o.v. winkelcentrum en station Naarden-Bussum. Met de trein in 21 minuten op het CS Amsterdam en in 24 minuten op het CS Utrecht. Op steenworp afstand liggen mooie natuurgebieden. Het appartement ligt centraal en toch rustig gelegen.
Kenmerkend voor de woning zijn de lichtinval, de brede kamers en de centrale ligging.
Indeling:
Begane grond: bellentableau, entree, centrale hal met trap en lift naar verdiepingen en bergingen.
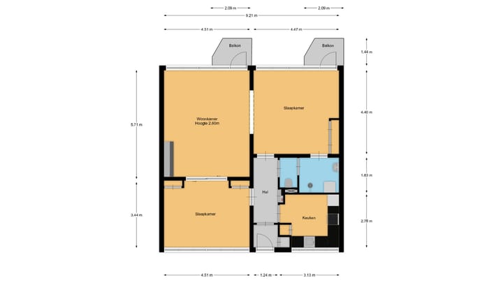
1e verdieping: Entree, vestibule met inbouwkast, hal, voorzien van parketvloer, intercom met camera, meterkast. Royale lichte woonkamer en-suite met parketvloer en balkon op het zuiden, dichte keuken met vaste kasten en inbouwapparatuur; 5-pitsgaskookplaat, oven, afzuigkap, ijskast-vriescombinatie met 3 laden, Quooker, kast met boiler 120L. Apart toilet met fonteintje en dubbele deuren, waardoor deze vanuit de gang en ook vanuit de badkamer te bereiken is. Ruime slaapkamer met vaste kasten en 2e balkon. Badkamer met douche, wastafelmeubel, design radiator en aansluiting voor de wasmachine.
Berging: Ruime berging op de begane grond, voorzien van elektra.
Royale woonkamer en-suite, eventueel te splitsen in woonkamer en 2e slaapkamer (zie plattegrond)
Algemeen:
• Bouwjaar 1955.
• 3-kamer appartement met 2 balkons op het zuiden en eigen berging.
• Eerste woonlaag.
• Woonoppervlakte Nen gemeten: 85,9 m².
• Externe bergruimte Nen gemeten (balkons) 2 x 2,7 m².
• Gebouw gebonden buitenruimte Nen gemeten (berging) 8,8 m².
• Gezonde en actieve vereniging van eigenaren. gedegen onderhoud conform MJOP.
Reserves van de VvE zijn ruim.
• Kleinschalige VvE van 12 leden (bewoners).
• Gunstige ligging nabij station NS Naarden-Bussum en centrum.
• Elektrische buitenzonwering aanwezig, zowel bij de woonkamer als de slaapkamer. (uit 2020).
• Maandelijkse bijdrage VvE € 401,56, daarnaast bijdrage voorschot verwarming € 170,=.
Afgelopen jaren zijn de kosten voor de verwarming ruim onder de € 1.000,= per jaar gebleven.
• Electrische Boiler.
• De VvE is bezig met verduurzamingstraject wat betaald kan worden uit het reservefonds van
de VvE.
• Beschermd stads- en dorpsgezicht.
• Gemeentelijk monument.
• Energielabel E geldig tot 22 januari 2030.
• Een ouderdomsclausule en een niet-bewoningsclausule is onderdeel van de koopakte.
Onder voorbehoud gunning eigenaren.
Oplevering in overleg.
Kenmerken
Overdracht
- Servicekosten
- € 170 per maand
- Laatste vraagprijs
- € 359.000 kosten koper
- Vraagprijs per m²
- € 4.174
- Status
- Verkocht
- Bijdrage VvE
- € 401,56 per maand
Bouw
- Soort appartement
- Galerijflat (appartement)
- Soort bouw
- Bestaande bouw
- Bouwjaar
- 1955
- Specifiek
- Beschermd stads- of dorpsgezicht
- Soort dak
- Plat dak bedekt met bitumineuze dakbedekking
- Toegankelijkheid
- Toegankelijk voor mensen met een beperking en toegankelijk voor ouderen
Oppervlakten en inhoud
- Gebruiksoppervlakten
- Wonen
- 86 m²
- Gebouwgebonden buitenruimte
- 6 m²
- Externe bergruimte
- 9 m²
- Inhoud
- 282 m³
Indeling
- Aantal kamers
- 3 kamers (2 slaapkamers)
- Aantal badkamers
- 1 badkamer en 1 apart toilet
- Badkamervoorzieningen
- Douche en wastafelmeubel
- Aantal woonlagen
- 1 woonlaag
- Voorzieningen
- Buitenzonwering, lift, en natuurlijke ventilatie
- Gelegen op
- 1e woonlaag
Energie
- Energielabel
- Isolatie
- Geen spouw
- Verwarming
- Blokverwarming
- Warm water
- Elektrische boiler
Kadastrale gegevens
- BUSSUM F 1791
- Kadastrale kaart
- Eigendomssituatie
- Volle eigendom
Buitenruimte
- Ligging
- Aan park, in centrum, in woonwijk en vrij uitzicht
- Balkon/dakterras
- Balkon aanwezig
Bergruimte
- Schuur/berging
- Inpandig
- Voorzieningen
- Elektra
Parkeergelegenheid
- Soort parkeergelegenheid
- Op eigen terrein en openbaar parkeren
VvE checklist
- Inschrijving KvK
- Ja
- Jaarlijkse vergadering
- Ja
- Periodieke bijdrage
- Ja (€ 401,56 per maand)
- Reservefonds aanwezig
- Ja
- Onderhoudsplan
- Ja
- Opstalverzekering
- Ja
Foto's 18
© 2001-2026 funda

















