Dit huis op Funda: https://www.funda.nl/detail/koop/bussum/huis-batterijlaan-18-a/43212476/

Batterijlaan 18-A1402 SN BussumBatterijlaan
€ 725.000 k.k.
BlikvangerAan rustige laan gelegen ligt deze sfeervolle eengezinswoning
Omschrijving
ALGEMENE OMSCHRIJVING
Aan rustige laan gelegen ligt deze sfeervolle eengezinswoning, voorzien van diverse stijlkenmerken uit het bouwjaar. De woning heeft 4 slaapkamers en een heerlijk zonnige tuin aan de voorzijde. De woning is de laatste jaren verder verduurzaamd en is voorzien van een nieuw pannendak met 6 zonnepanelen. De Batterijlaan is zeer kindvriendelijke en verkeersluw doordat het eenrichtingsverkeer is.
De Batterijlaan is daarnaast zeer gunstig gelegen, op loopafstand van de winkels aan de Huizerweg en op zeer korte afstand van (basis) scholen, kinderdagverblijven, het centrum van Bussum en heeft 2 NS- stations. Bussum ligt centraal ten opzichte van de uitvalswegen richting Amsterdam, Almere, Utrecht of Amersfoort.
BEGANE GROND
Entree, vestibule met garderobe, ruime hal, toilet en toegang tot de tuingerichte woonkamer en-suite met eetkamer. De woonkamer biedt met openslaande deuren toegang tot de heerlijk zonnige tuin.
Vanuit de hal heeft u toegang tot de keuken aan de achterzijde van de woning, welke is uitgevoerd in L-vormige opstelling en geeft zicht op de patiotuin aan de achterzijde. De keuken is voorzien van een 4 pits gasfornuis, oven, vaatwasmachine en een close-in boiler.
EERSTE VERDIEPING
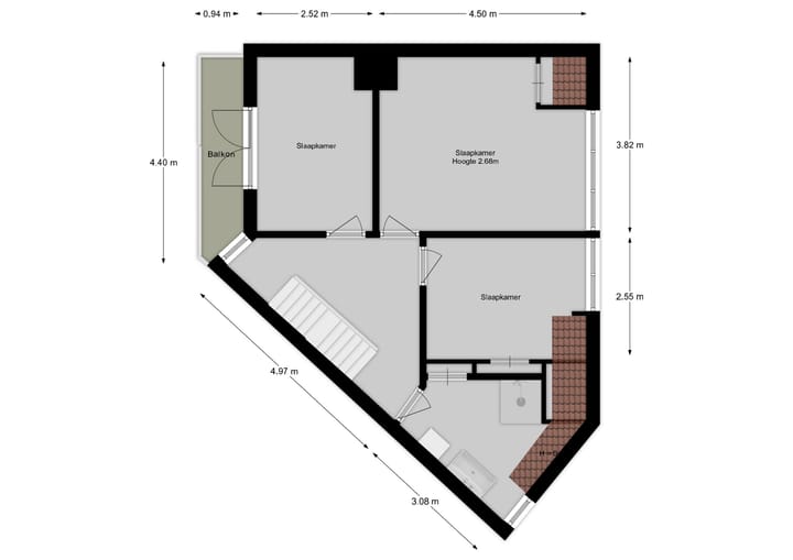
Ruime overloop en 3 in grootte variërende slaapkamers, waarvan 1 aan de achterzijde met balkon en 2 aan de voorzijde van de woning. De badkamer is voorzien van een douche en een wastafel.
TWEEDE VERDIEPING
Vaste trap naar zolderverdieping met een goede slaap-/werkkamer voorzien van 2 veluxdakramen en veel bergruimte. Op deze verdieping is een aparte ruimte met de CV-opstelling.
KELDER
De woning beschikt over een kelder met de aansluiting voor de wasmachine en droger.
TUIN
De tuin is voornamelijk gelegen aan de voorzijde van de woning op het westen met een heerlijk zitje in de zon en heeft een tuinhuis voor fietsen en tuinspullen. Aan de achterzijde is een praktische patiotuin gesitueerd op het oosten.
BIJZONDERE KENMERKEN
> Woonoppervlak 142 m² BBMI-gemeten
> 4 slaap-/werkkamers
> Zonnige tuin op het westen aan de voorzijde
> 6 Zonnepanelen
> Voorzien van een nieuw pannendak (2018)
> Goed geïsoleerde woning - energielabel A
> Rustig en kindvriendelijk gelegen op steenworp afstand van het centrum van Bussum
Aanvaarding in overleg
Kenmerken
Overdracht
- Aangeboden sinds
- Aanvaarding
- In overleg
- Vraagprijs
- € 725.000 kosten koper
- Vraagprijs per m²
- € 5.106
- Status
- Beschikbaar
Bouw
- Soort woonhuis
- Eengezinswoning, tussenwoning
- Soort bouw
- Bestaande bouw
- Bouwjaar
- 1928
Oppervlakten en inhoud
- Gebruiksoppervlakten
- Wonen
- 142 m²
- Overige inpandige ruimte
- 10 m²
- Gebouwgebonden buitenruimte
- 5 m²
- Externe bergruimte
- 6 m²
- Perceel
- 172 m²
- Inhoud
- 582 m³
Indeling
- Aantal kamers
- 7 kamers (4 slaapkamers)
- Aantal badkamers
- 1 badkamer en 1 apart toilet
- Badkamervoorzieningen
- Douche en wastafel
- Aantal woonlagen
- 3 woonlagen en een kelder
- Voorzieningen
- Dakraam, glasvezelkabel, mechanische ventilatie, rookkanaal, en zonnepanelen
Energie
- Energielabel
- Isolatie
- Dakisolatie, grotendeels dubbelglas, muurisolatie en vloerisolatie
- Verwarming
- Cv-ketel
- Warm water
- Cv-ketel
- Cv-ketel
- Atag (gas gestookt combiketel uit 2017, eigendom)
Kadastrale gegevens
- BUSSUM G 2563
- Kadastrale kaart
- Oppervlakte
- 163 m²
- Eigendomssituatie
- Volle eigendom
- BUSSUM G 2843
- Kadastrale kaart
- Oppervlakte
- 9 m²
- Eigendomssituatie
- Volle eigendom
Buitenruimte
- Ligging
- Aan rustige weg en in woonwijk
- Tuin
- Achtertuin en voortuin
- Voortuin
- 77 m² (5,01 meter diep en 15,39 meter breed)
- Ligging tuin
- Gelegen op het westen
- Balkon/dakterras
- Balkon aanwezig
Bergruimte
- Schuur/berging
- Vrijstaande houten berging
Parkeergelegenheid
- Soort parkeergelegenheid
- Openbaar parkeren
Foto's 36
© 2001-2026 funda



































