
Omschrijving
Royale jaren ' 30 middenvilla met vrij uitzicht, garage en zonnige tuin op het zuidwesten.
Deze ruime 30-er jaren middenvilla ligt aan een van de meest ruim opgezette straten van Bussum. De woning aan de rand van het Brediuskwartier heeft een fantastisch vrij uitzicht over het rustgevende park Het Mouwtje en ligt in een geliefde kindvriendelijke buurt. De woning heeft een lichte woonkamer, vier slaapkamers, een zonnige tuin op het zuidwesten en een ruime garage ( met vliering) die tevens bereikbaar is vanuit de achtergelegen Anthony van Leeuwenhoekweg.
Alle voorzieningen die het wonen op de Dr. Frederik van Eedenweg extra comfortabel maken bevinden zich op loopafstand. Denk hierbij aan de gezellige winkels aan de Huizerweg , diverse restaurants, NS-station, naschoolse opvang, scholen, het centrum van Bussum en uitvalswegen richting de A1/A27. Naast het parkgebied voor de deur, zijn de overige Gooise natuurgebieden, zoals de Bussummerheide lopend of met de fiets goed te bereiken.
Begane grond:
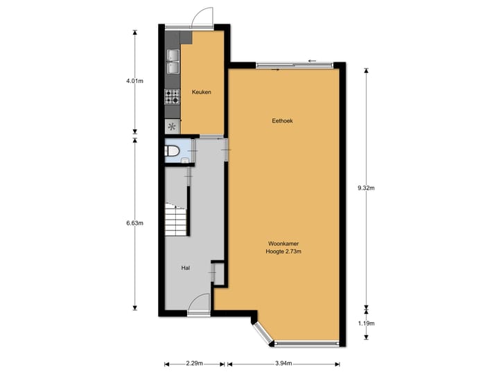
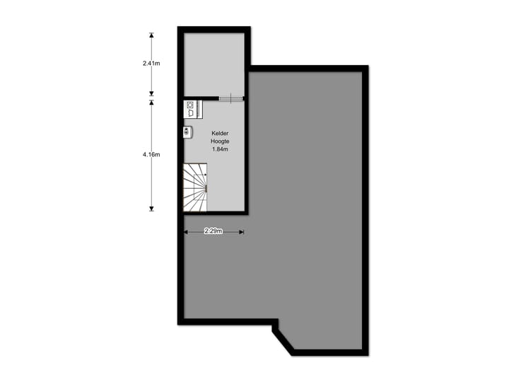
• Entree, ruime hal, meterkast, toilet met fontein, ruime kelder met opstelruimte voor de CV ketel,
de wasmachine/ droger en een opslag/wijnkelder
• Lichte royale woonkamer met een schuifpui naar de zonnige achtertuin.
• De woonkamer en gang hebben een lichte houten vloer van hoogwaardig Canadees essenhout.
• De keuken is voorzien van diverse inbouwapparatuur en biedt tevens toegang tot de achtertuin en naar de ruime
garage.
Eerste verdieping:
• Ruime overloop.
• Drie in grootte variërende slaapkamers, waarvan 1 aan de achterzijde van de woning en deze heeft een groot
zonnig balkon over de volle breedte van de woning.
• Badkamer met wastafelmeubel, ligbad, aparte douche en een 2e toilet.
Zolder:
• Bereikbaar via een vaste trap, overloop en opbergruimte.
• 4e zeer ruime slaapkamer met wastafel en een grote Velux dakraam.
• Kleine dakkapel aan de voorzijde.
• Aan de achterzijde een dakkapel over de gehele breedte van de woning.
• Veel bergruimte door de aanwezige inbouwkast en de knieschotten.
• De zolder heeft vanwege het oppervlakte, de vele ramen en de dakkapellen ruimte genoeg voor het realiseren van nog twee (slaap)kamers, vliering en een extra badkamer.
Tuin/ garage:
• Een zonnige achtertuin gesitueerd op het zuidwesten
• Ruime voortuin met ruimte voor speeltoestellen ( trampoline)
• Vrijstaande stenen garage (met vliering) met garagedeur waarvan de ingang aan de achtergelegen Anthony van
Leeuwenhoekweg ligt.
Bijzonderheden:
• Aan de voorzijde vrij uitzicht over Het Mouwtje
• Ligging nabij winkels, scholen, openbaar vervoer en uitvalswegen
• CV-ketel Nefit Topline HRC 45
• Energielabel D
• Bouwjaar 1937
• Inhoud 634 m³
• Perceeloppervlakte 193 m²
• Woonoppervlakte 166 m²
• Overige inpandige ruimte 15 m² (kelder)
• Externe bergruimte 17 m² (garage)( met vliering)
• Gebouwgebonden buitenruimte 9 m² (balkon)
• Bouwkundig rapport is aanwezig
Kenmerken
Overdracht
- Laatste vraagprijs
- € 869.000 kosten koper
- Vraagprijs per m²
- € 5.235
- Status
- Verkocht
Bouw
- Soort woonhuis
- Eengezinswoning, tussenwoning
- Soort bouw
- Bestaande bouw
- Bouwjaar
- 1937
- Soort dak
- Zadeldak bedekt met pannen
Oppervlakten en inhoud
- Gebruiksoppervlakten
- Wonen
- 166 m²
- Overige inpandige ruimte
- 15 m²
- Gebouwgebonden buitenruimte
- 9 m²
- Externe bergruimte
- 17 m²
- Perceel
- 193 m²
- Inhoud
- 634 m³
Indeling
- Aantal kamers
- 5 kamers (4 slaapkamers)
- Aantal badkamers
- 1 badkamer en 1 apart toilet
- Badkamervoorzieningen
- Douche, ligbad, toilet, en wastafelmeubel
- Aantal woonlagen
- 2 woonlagen, een zolder, en een kelder
- Voorzieningen
- Buitenzonwering, dakraam, glasvezelkabel, natuurlijke ventilatie, en schuifpui
Energie
- Energielabel
- D
- Verwarming
- Cv-ketel
- Warm water
- Cv-ketel
- Cv-ketel
- Nefit (gas gestookt combiketel, eigendom)
Kadastrale gegevens
- BUSSUM B 4453
- Kadastrale kaart
- Oppervlakte
- 193 m²
- Eigendomssituatie
- Volle eigendom
Buitenruimte
- Ligging
- In woonwijk en vrij uitzicht
- Tuin
- Achtertuin en voortuin
- Achtertuin
- 45 m² (9,00 meter diep en 5,00 meter breed)
- Ligging tuin
- Gelegen op het zuidwesten bereikbaar via achterom
- Balkon/dakterras
- Balkon aanwezig
Garage
- Soort garage
- Vrijstaande stenen garage
- Capaciteit
- 1 auto
- Voorzieningen
- Vliering en elektra
Parkeergelegenheid
- Soort parkeergelegenheid
- Parkeervergunningen
Foto's 43
© 2001-2025 funda










































