Dit huis op Funda: https://www.funda.nl/detail/koop/bussum/huis-heidelaan-32/43735859/

Omschrijving
Charmante twee-onder-een-kap aan de rand het Spiegel! Gelegen in een rustige straat, biedt deze gezellige woning uit 1906 alles wat u nodig heeft voor sfeervol en comfortabel wonen. De goede locatie zorgt voor een fijne, rustige leefomgeving, terwijl scholen, sportfaciliteiten en andere voorzieningen binnen handbereik zijn. Met een moderne keuken, een gezellige woonkamer en een beschutte tuin met schuur is dit een heerlijke plek om te wonen.
Bouwjaar 1906 | woonoppervlak ca. 71 m2 | perceeloppervlak 102 m2 | energielabel D
De indeling is als volgt:
Parterre:
Entree met toegang naar de woonkamer. De woonkamer biedt ruimte voor zowel een gezellige zithoek als een ruime eettafel. De trapopgang bevindt zich in de woonkamer. Aangrenzend is de open, moderne keuken met inbouwapparatuur. In de keuken is een luik die toegang biedt tot de kelder. Direct naast de keuken ligt de hal, die toegang biedt tot het toilet en een ruimte met aansluitingen voor de wasmachine en droger. Vanuit de tuin is de aangrenzende schuur bereikbaar, een ideale opslagruimte waar tevens de cv-ketel is geïnstalleerd.
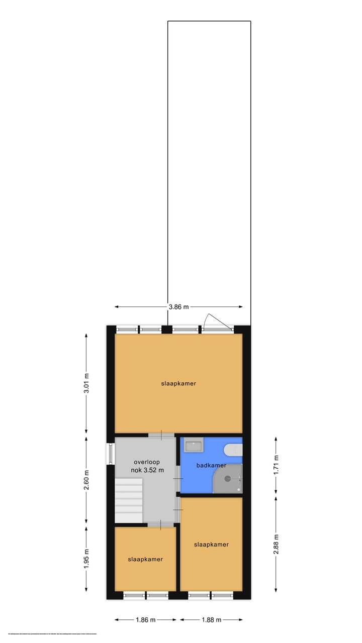
1e Etage:
De overloop biedt toegang tot drie (slaap)kamers en badkamer. Twee kamers zijn voorzien van de mooie inbouw kasten van Studio Erik Gutter. De goed onderhouden badkamer beschikt over een wastafelmeubel, toilet en douche.
Bijzonderheden:
- Charmante woning uit 1906 op gewilde locatie
- Moderne open keuken
- Beschutte tuin met schuur en achterom
- Dichtbij centrum, uitvalswegen, scholen en sportfaciliteiten
- Loopafstand Goois Natuurreservaat
Bussum, gelegen in het hart van het Gooi, combineert een levendige sfeer met een groen en kindvriendelijk karakter. Het dorp biedt een breed scala aan voorzieningen, waaronder diverse scholen, sportfaciliteiten en gezellige winkelstraten zoals de Nassaulaan en het centrumgebied rond de Kapelstraat. Ook zijn er volop horecagelegenheden en culturele hotspots.
Met het station Bussum-Zuid en Naarden-Bussum bent u uitstekend verbonden met Amsterdam, Utrecht en Amersfoort. Daarnaast zijn de A1 en A27 snel bereikbaar, waardoor Bussum een ideale uitvalsbasis vormt. Natuurliefhebbers kunnen hun hart ophalen in de directe omgeving, met prachtige wandel- en fietsmogelijkheden op de Bussumerheide, rondom het Naardermeer en in het Goois Natuurreservaat. Kortom, Bussum biedt een perfecte mix van rust, natuur en levendigheid, midden in Nederland.
Kenmerken
Overdracht
- Laatste vraagprijs
- € 495.000 kosten koper
- Vraagprijs per m²
- € 6.972
- Status
- Verkocht
Bouw
- Soort woonhuis
- Eengezinswoning, 2-onder-1-kapwoning
- Soort bouw
- Bestaande bouw
- Bouwjaar
- 1906
- Soort dak
- Zadeldak bedekt met pannen
Oppervlakten en inhoud
- Gebruiksoppervlakten
- Wonen
- 71 m²
- Overige inpandige ruimte
- 13 m²
- Perceel
- 102 m²
- Inhoud
- 290 m³
Indeling
- Aantal kamers
- 4 kamers (3 slaapkamers)
- Aantal badkamers
- 1 badkamer en 1 apart toilet
- Badkamervoorzieningen
- Douche, toilet, en wastafelmeubel
- Aantal woonlagen
- 2 woonlagen
Energie
- Energielabel
- D
- Isolatie
- Dubbel glas en muurisolatie
- Verwarming
- Cv-ketel
- Warm water
- Cv-ketel
- Cv-ketel
- Gas gestookt combiketel uit 2015, eigendom
Kadastrale gegevens
- BUSSUM E 936
- Kadastrale kaart
- Oppervlakte
- 102 m²
- Eigendomssituatie
- Volle eigendom
Buitenruimte
- Ligging
- Aan rustige weg en in woonwijk
- Tuin
- Achtertuin en voortuin
- Achtertuin
- 10 m² (4,00 meter diep en 2,50 meter breed)
- Ligging tuin
- Gelegen op het oosten bereikbaar via achterom
Bergruimte
- Schuur/berging
- Aangebouwde stenen berging
Parkeergelegenheid
- Soort parkeergelegenheid
- Openbaar parkeren
Foto's 32
© 2001-2025 funda































