Dit huis op Funda: https://www.funda.nl/detail/koop/bussum/huis-hogeweg-8/43952054/

Omschrijving
Charmante en verduurzaamde tussenwoning (1906) met energielabel A in hartje Bussum!
In een gezellig straatje in het hart van Bussum ligt deze verrassend leuke tussenwoning, volledig verduurzaamd en klaar voor nieuwe bewoners. Met een woonoppervlakte van ca. 85 m², een lichte en ruime indeling en een gezellige patiotuin met vrij zicht, biedt deze woning veel wooncomfort.
De afgelopen jaren is er flink geïnvesteerd in duurzaamheid: de woning is voorzien van een hybride warmtepomp (2023), een Remeha Elga Ace cv-ketel (2023), zes zonnepanelen, dubbel glas (deels HR++), vloerisolatie (keuken) en dakisolatie. Dit resulteert in een uitstekend energielabel A!
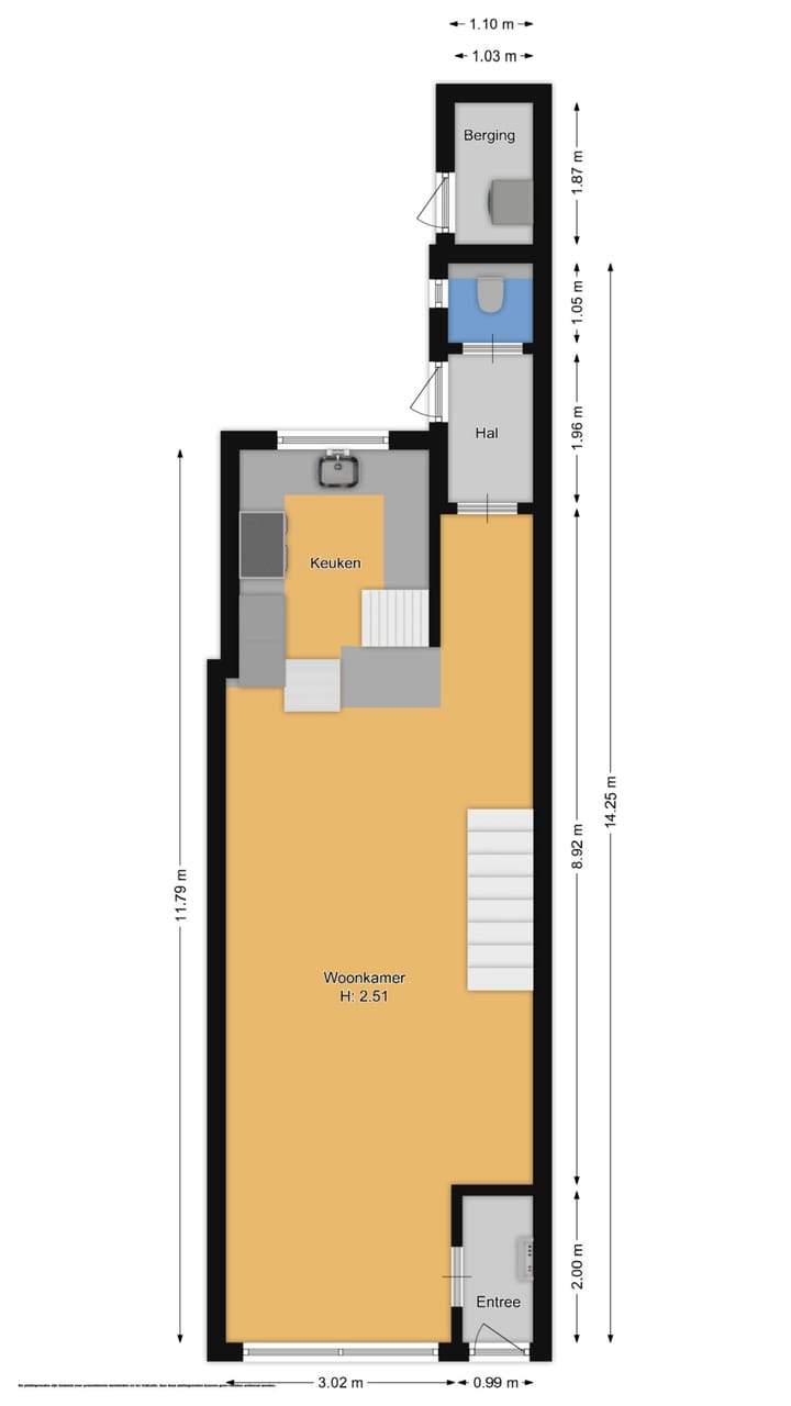
Indeling:
Begane grond: Bij binnenkomst treft u de ruime woon-/eetkamer met mooie houten vloerdelen. Een kleine afstap leidt naar de moderne keuken met marmeren werkblad, voorzien van Siemens inbouwapparatuur, een inductiekookplaat, oven, magnetron en een Quooker. De keuken biedt een fraai, vrij zicht over de achtergelegen tuinen en heeft vloerverwarming voor extra comfort. Aangrenzend bevindt zich een praktische kelder en een tweede hal met modern toilet. Vanuit hier bereikt u de gezellige patiotuin met vrij zicht en een berging, waar tevens de aansluiting voor de wasmachine is.
Eerste verdieping: Op de eerste verdieping zijn momenteel twee ruime slaapkamers (voorheen drie), waarvan een voorzien van airconditioning. Indien gewenst is de mogelijkheid om een derde slaapkamer te creëren. De moderne badkamer beschikt over een toilet, douche en wastafel. Op de overloop is een vaste kast met de cv-ketel. Via een vlizotrap is de bergvliering bereikbaar.
Locatie:
De woning is gunstig gelegen in het centrum van Bussum, met winkels, scholen, sportfaciliteiten en openbaar vervoer op loop- en fietsafstand. Diverse uitvalswegen zijn binnen enkele minuten bereikbaar.
Bijzonderheden:
• Woonoppervlakte ca. 85 m²
• Patiotuin met vrij zicht
• Volledig voorzien van dubbel glas (deels HR++)
• Dakisolatie en vloerisolatie (keuken)
• Vakkundig uitgevoerd schilderwerk buitenkant huis heeft in 2024 plaatsgevonden
• Elektrische installatie vernieuwd en uitgebreid (incl. 3-fasenstroom)
• Airconditioning in de slaapkamer aan de voorkant
• Mogelijkheid om een derde slaapkamer te creëren
• Parkeren in de straat middels een bewonersvergunning (ca. € 40, - per jaar)
Een unieke kans om een charmante, karakteristieke woning te kopen met het comfort en de duurzaamheid van nu!
Interesse? Neem contact met ons op voor een bezichtiging!
Kenmerken
Overdracht
- Laatste vraagprijs
- € 439.000 kosten koper
- Vraagprijs per m²
- € 5.165
- Status
- Verkocht
Bouw
- Soort woonhuis
- Eengezinswoning, tussenwoning
- Soort bouw
- Bestaande bouw
- Bouwjaar
- 1906
- Soort dak
- Samengesteld dak bedekt met bitumineuze dakbedekking en pannen
Oppervlakten en inhoud
- Gebruiksoppervlakten
- Wonen
- 85 m²
- Overige inpandige ruimte
- 3 m²
- Externe bergruimte
- 2 m²
- Perceel
- 67 m²
- Inhoud
- 290 m³
Indeling
- Aantal kamers
- 3 kamers (2 slaapkamers)
- Aantal badkamers
- 1 badkamer en 1 apart toilet
- Badkamervoorzieningen
- Douche, toilet, en wastafel
- Aantal woonlagen
- 2 woonlagen en een vliering
- Voorzieningen
- Airconditioning, glasvezelkabel, mechanische ventilatie, TV kabel, en zonnepanelen
Energie
- Energielabel
- A+
- Isolatie
- Dakisolatie, dubbel glas, HR-glas en vloerisolatie
- Verwarming
- Cv-ketel, gedeeltelijke vloerverwarming en warmtepomp
- Warm water
- Cv-ketel
- Cv-ketel
- Remeha Elga Ace (gas gestookt combiketel uit 2024, eigendom)
Kadastrale gegevens
- BUSSUM B 1466
- Kadastrale kaart
- Oppervlakte
- 67 m²
- Eigendomssituatie
- Volle eigendom
Buitenruimte
- Ligging
- Aan rustige weg, in centrum en in woonwijk
- Tuin
- Patio/atrium
- Patio/atrium
- 16 m² (4,00 meter diep en 4,00 meter breed)
- Ligging tuin
- Gelegen op het oosten
Bergruimte
- Schuur/berging
- Aangebouwde stenen berging
Parkeergelegenheid
- Soort parkeergelegenheid
- Parkeervergunningen
Foto's 29
© 2001-2025 funda




























