Dit huis op Funda: https://www.funda.nl/detail/koop/bussum/huis-karel-doormanlaan-64/43963227/

Omschrijving
Aan de rand van Bussum-Zuid staat deze GEMODERNISEERDE en UITGEBOUWDE MIDDENWONING met voor-/ en zonnige achtertuin, stenen berging en achterom. In de directe omgeving zijn bos, heide maar ook (basis)scholen, winkels, sportvelden en NS treinstation Bussum-Zuid te vinden.
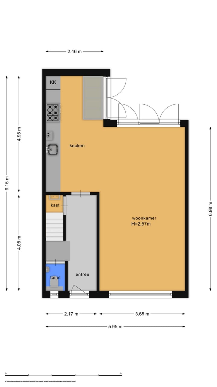
BEGANE GROND
Entree/hal met diepe trapkast, luxe toilet met fonteintje, zonnige woonkamer met visgraat parketvloer en openslaande (3) tuindeuren . De moderne half open keuken is deels uitgebouwd en voorzien van diverse inbouwapparatuur, hier bevinden zich eveneens openslaande (2) tuindeuren.
1e VERDIEPING
Ruime overloop, hoofdslaapkamer met inloopkast, moderne badkamer met ligbad/douche, 2e toilet en wastafelmeubel, middelgrootte 2e slaapkamer aan de achterzijde en nog een 3e kleinere.
De vroegere badkamer is omgebouwd tot wasmachine-/droogruimte en biedt desgewenst plaats voor strijkplank en stofzuiger.
ZOLDERVERDIEPING
De Zolder is middels een vaste trap bereikbaar en heeft naast een overloop toegang tot een 4e slaapkamer en knieschotten voor opslag van spullen, door toepassing van een dakopbouw en het plaatsen van een vaste trap is hier een volwaardige zolderverdieping gemaakt!
TUIN/BERGING
Zowel de voor-/ als achtertuin zijn netjes verzorgd, zonnig en ruim bemeten, daarnaast bieden deze volop privacy. In de achtertuin, bereikbaar via een achterom, staat een stenen berging voorzien van elektra.
OMGEVING/LIGGING
Om de hoek bevindt zich de Bussumerheide. Wist u dat het hiervandaan slechts 10 minuten fietsen is naar Hilversum? Ook uitvalswegen en NS treinstation Bussum-Zuid zijn in de directe omgeving voor handen evenals (basis)scholen, winkels, sportvelden, theater 't Spant en het gezellige centrum van Bussum.
KENMERKEN
- Uitgebouwde middenwoning die zo te betrekken is;
- Ruime woonkamer met openslaande tuindeuren;
- 4 in grootte variërende slaapkamers;
- 12 zonnepanelen;
- Energielabel B;
- Glasvezel aansluiting;
- Unieke gelegen nabij de Bussumerheide;
- Besloten en zonnige voor-/ en achtertuin;
- Woonoppervlakte ca 104 m2 (NEN 2580 gemeten);
- Perceelgrootte 155 m2 (eigen grond).
Kenmerken
Overdracht
- Laatste vraagprijs
- € 545.000 kosten koper
- Vraagprijs per m²
- € 5.240
- Status
- Verkocht
Bouw
- Soort woonhuis
- Eengezinswoning, tussenwoning
- Soort bouw
- Bestaande bouw
- Bouwjaar
- 1960
- Soort dak
- Schilddak bedekt met pannen
Oppervlakten en inhoud
- Gebruiksoppervlakten
- Wonen
- 104 m²
- Externe bergruimte
- 9 m²
- Perceel
- 155 m²
- Inhoud
- 403 m³
Indeling
- Aantal kamers
- 5 kamers (4 slaapkamers)
- Aantal badkamers
- 1 badkamer en 1 apart toilet
- Badkamervoorzieningen
- Douche, ligbad, toilet, en wastafelmeubel
- Aantal woonlagen
- 2 woonlagen en een zolder
- Voorzieningen
- Glasvezelkabel, TV kabel, en zonnepanelen
Energie
- Energielabel
- B
- Verwarming
- Cv-ketel
- Warm water
- Cv-ketel
- Cv-ketel
- Gas gestookt combiketel, eigendom
Kadastrale gegevens
- BUSSUM D 2972
- Kadastrale kaart
- Oppervlakte
- 155 m²
- Eigendomssituatie
- Volle eigendom
Buitenruimte
- Ligging
- Aan rustige weg en in woonwijk
- Tuin
- Achtertuin en voortuin
- Achtertuin
- 42 m² (7,00 meter diep en 6,00 meter breed)
- Ligging tuin
- Gelegen op het zuidwesten bereikbaar via achterom
Bergruimte
- Schuur/berging
- Vrijstaande stenen berging
- Voorzieningen
- Elektra
Parkeergelegenheid
- Soort parkeergelegenheid
- Openbaar parkeren
Foto's 27
© 2001-2025 funda


























