Dit huis op Funda: https://www.funda.nl/detail/koop/bussum/huis-meulenwiekelaan-27/43828789/

Omschrijving
Karakteristieke middenwoning met 17 meter diepe en zonnige achtertuin met achterom. Deze charmante woning ligt in een rustig éénrichtingsverkeer laantje op loopafstand van de gezellige winkels op de Huizerweg, het park het Mouwtje, de heide, het hertenkamp en diverse scholen. Het centrum van Bussum bevindt zich op 5 minuten fietsafstand en ook de snelweg is gemakkelijk en snel te bereiken.
Indeling:
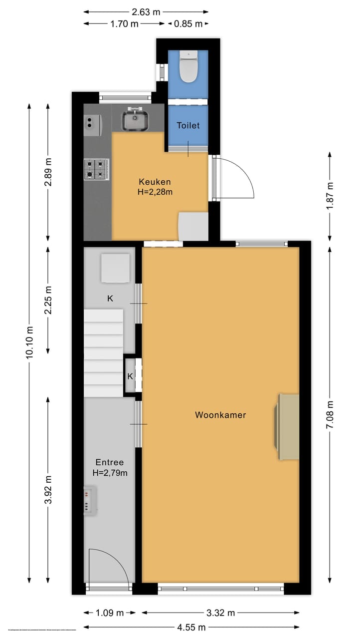
Begane grond: entree, hal met meterkast, zonnige woonkamer met vaste kast en aansluitend de keuken. Vanuit de keuken is een halletje met het toilet bereikbaar en via een loopdeur komt men in de tuin.
Kelder: ruime en droge kelder (stahoogte) onder de gehele keuken, toegankelijk via een luik in de keuken.
Verdieping: overloop met wastafelmeubel, royale slaapkamer aan de voorzijde (voorheen 2), en goede slaapkamer aan de achterzijde, kast met douche.
Tuin: diepe zonnige tuin van maar liefst 17 meter met achterom en vrijstaande houten berging.
Bijzonderheden:
• Gelegen in kindvriendelijk en rustig straatje
• Op loopafstand van scholen, winkels en park
• Bouwjaar 1906
• Perceeloppervlakte 132 m²
• Woonoppervlakte 67 m² (NEN 2580)
• Dient gemoderniseerd te worden.
Kenmerken
Overdracht
- Laatste vraagprijs
- € 350.000 kosten koper
- Vraagprijs per m²
- € 5.224
- Status
- Verkocht
Bouw
- Soort woonhuis
- Eengezinswoning, tussenwoning
- Soort bouw
- Bestaande bouw
- Bouwjaar
- 1904
- Soort dak
- Zadeldak bedekt met pannen
Oppervlakten en inhoud
- Gebruiksoppervlakten
- Wonen
- 67 m²
- Overige inpandige ruimte
- 7 m²
- Perceel
- 132 m²
- Inhoud
- 252 m³
Indeling
- Aantal kamers
- 3 kamers (2 slaapkamers)
- Aantal badkamers
- 1 badkamer en 1 apart toilet
- Badkamervoorzieningen
- Douche
- Aantal woonlagen
- 2 woonlagen
Energie
- Energielabel
- G
- Isolatie
- Gedeeltelijk dubbel glas
- Verwarming
- Gaskachels
- Warm water
- Geiser
Kadastrale gegevens
- BUSSUM G 61
- Kadastrale kaart
- Oppervlakte
- 132 m²
- Eigendomssituatie
- Volle eigendom
Buitenruimte
- Ligging
- Aan rustige weg en in woonwijk
- Tuin
- Achtertuin en voortuin
- Achtertuin
- 70 m² (17,50 meter diep en 4,00 meter breed)
- Ligging tuin
- Gelegen op het noordoosten bereikbaar via achterom
Bergruimte
- Schuur/berging
- Vrijstaande houten berging
Parkeergelegenheid
- Soort parkeergelegenheid
- Openbaar parkeren
Foto's 38
© 2001-2025 funda





































