Dit huis op Funda: https://www.funda.nl/detail/koop/bussum/huis-sint-janslaan-48-a/43020272/

Omschrijving
WEGENS ZEER GROTE BELANGSTELLING WORDEN GEEN NIEUWE BEZICHTIGINGEN MEER INGEPLAND
UITSLUITEND NOG OPGEVEN VOOR DE RESERVELIJST VIA FUNDA/MAIL, DUS NIET TELEFONISCH
Wat een pareltje!
Met veel plezier bieden wij deze karakteristieke sfeervolle hoekwoning aan.
Op een steenworp afstand van de winkels aan de Huizerweg, station en hei.
Voor -zij -en achtertuin. 3 slaap/werkkamers en ruime schuur.
Vrijwel geheel gerenoveerd sinds 2020. Nieuwe keuken, badkamer, kozijnen, pannendak, etc.
Woonoppervlakte 71 m2.
Een super leuke (starters)woning in een fijne buurt.
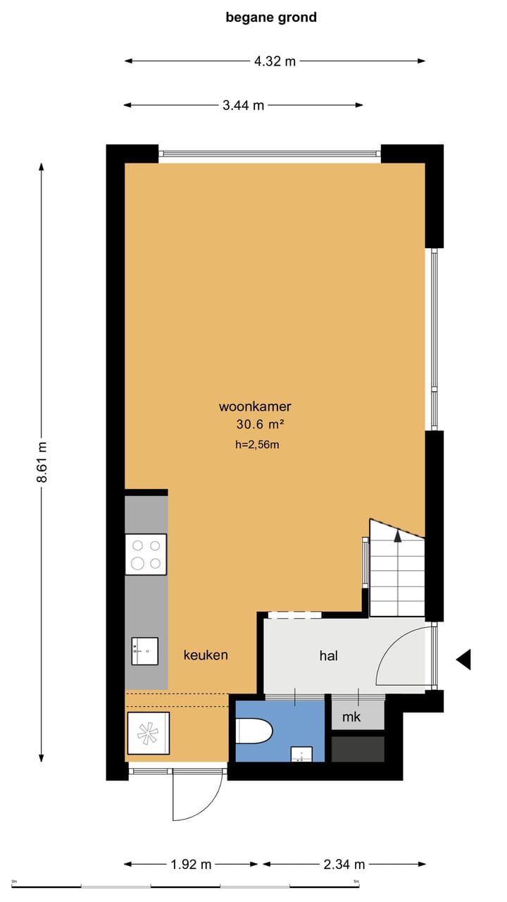
Begane grond:
- entree via de zijtuin
- hal met modern toilet en meterkast
- lichte woon-/eetkamer met open keuken
- houten lamelparketvloer met vloerverwarming
- de fraaie keuken is in 2020 geplaatst
- keukenapparatuur: 4-pits inductiekookplaat, elektrische oven, afzuigkap, vaatwasser, kokend waterkraan en een losse koel- vrieskast (ter overname)
- vanuit de (bij)keuken een deur naar de sfeervolle tuin met veel privacy
- de achtertuin ligt op zuid/zuidoost, er is altijd een plekje in of uit de zon te vinden
- de ruime schuur van circa 9 m2 heeft een vliering
Verdieping:
- overloop met zijraam
- slaapkamer aan de achterzijde met kledingkast
- tweede en derde slaap-/werkkamer aan de voorzijde
- de verdieping is eveneens voorzien van een houten lamelparketvloer
- moderne badkamer met inloopdouche, toilet, wastafelmeubel en wasmachineaansluiting
Vliering :
- op de overloop zit een luik met een vlizotrap naar de bergvliering
- hier hangt de cv-ketel
Omgeving:
- in een vriendelijke woonwijk met afwisselende huizen in vooroorlogse architectuur
- eenrichtingverkeer, gratis parkeren
- dichtbij de winkels en horeca van de Huizerweg en het centrum
- natuurgebieden van het Goois Natuurreservaat en Natuurmonumenten, wandel- en fietsroutes op korte afstand
- NS-station Bussum-Zuid op circa 4 fietsminuten, 12 wandelminuten
Aanvullende informatie:
- bouwjaar 1905
- de woning is vrijwel geheel voorzien van kunststof kozijnen (2020)
- cv-combiketel Remeha Avanta uit 2020
- begane grond voorzien van vloerverwarming
- geheel voorzien van dubbele beglazing, nou ja, voor 95%
- nieuw pannendak 2020
- de nieuwe meterkast heeft 9 automaatgroepen en aardlekbeveiliging
- vaste ethernetverbindingen zijn aangelegd naar de werkkamer boven, en naar de plek van de TV
- door het hele huis is een TADO systeem aanwezig
- energielabel E, hier valt nog wat te winnen
- woonoppervlakte ruim 71 m2, bruto inhoud 253 m3 (volgens meetinstructie NVM)
- schuur circa 9 m2
- perceeloppervlakte 144 m2
Na ruim 5 jaar met veel plezier in dit huis te hebben gewoond, is het nu tijd voor een volgende stap. We geven de sleutel graag door aan de nieuwe eigenaren, die hier hun eigen mooie herinneringen kunnen maken.
Kortom: een heerlijk huis, in een fijne wijk.
Kenmerken
Overdracht
- Laatste vraagprijs
- € 435.000 kosten koper
- Vraagprijs per m²
- € 6.127
- Status
- Verkocht
Bouw
- Soort woonhuis
- Eengezinswoning, hoekwoning
- Soort bouw
- Bestaande bouw
- Bouwjaar
- 1905
- Soort dak
- Mansarde dak bedekt met pannen
Oppervlakten en inhoud
- Gebruiksoppervlakten
- Wonen
- 71 m²
- Externe bergruimte
- 9 m²
- Perceel
- 144 m²
- Inhoud
- 253 m³
Indeling
- Aantal kamers
- 4 kamers (3 slaapkamers)
- Aantal badkamers
- 1 badkamer en 1 apart toilet
- Badkamervoorzieningen
- Douche, toilet, en wastafelmeubel
- Aantal woonlagen
- 2 woonlagen en een vliering
- Voorzieningen
- Glasvezelkabel en mechanische ventilatie
Energie
- Energielabel
- E
- Isolatie
- Dakisolatie en dubbel glas
- Verwarming
- Cv-ketel
- Warm water
- Cv-ketel
- Cv-ketel
- Remha Avanta (gas gestookt combiketel uit 2020, eigendom)
Kadastrale gegevens
- BUSSUM G 894
- Kadastrale kaart
- Oppervlakte
- 73 m²
- Eigendomssituatie
- Volle eigendom
- BUSSUM G 3618
- Kadastrale kaart
- Oppervlakte
- 71 m²
- Eigendomssituatie
- Volle eigendom
Buitenruimte
- Ligging
- Aan rustige weg en in woonwijk
- Tuin
- Achtertuin, voortuin en zijtuin
- Achtertuin
- 49 m² (7,00 meter diep en 7,00 meter breed)
- Ligging tuin
- Gelegen op het zuidoosten bereikbaar via achterom
Bergruimte
- Schuur/berging
- Vrijstaande stenen berging
- Voorzieningen
- Vliering en elektra
Parkeergelegenheid
- Soort parkeergelegenheid
- Openbaar parkeren
Foto's 38
© 2001-2025 funda





































