Dit huis op Funda: https://www.funda.nl/detail/koop/bussum/huis-veldheimerlaan-92/43715331/

Omschrijving
Ben je op zoek naar een gezellig huis? Aan de Veldheimerlaan 92 in Bussum vind je een charmante twee-onder-een-kap die je na enige aanpassingen kunt laten aansluiten bij jouw wensen en levensstijl. Deze plek biedt niet alleen een warme sfeer, maar ook een levendige buurt, waar je je direct thuis zult voelen. Lees snel verder wat dit huis allemaal te bieden heeft.
Indeling:
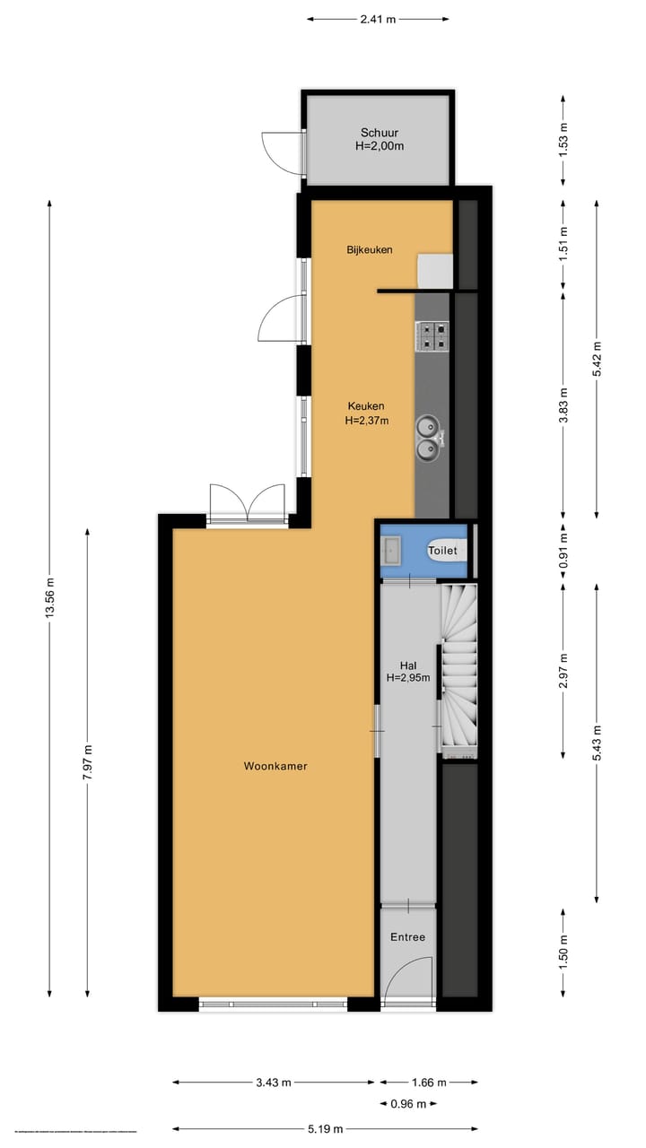
Begane grond
- Entree
- Vestibule
- Hal met deur naar kelder en meterkast
- Apart toilet met fonteintje
- Berging boven toilet
- Woonkamer met openslaande deuren naar de achtertuin
- Half open keuken met mooi terrazzo aanrechtblad en deur naar tuin
- Bijkeuken met wasmachine aansluiting
1e verdieping
- Overloop met mogelijkheid om extra slaapkamer te creëren, vaste kasten en deur naar eventueel dakterras
- Slaapkamer
- Badkamer met terrazzo vloer, inloopdouche, toilet en wastafelmeubel
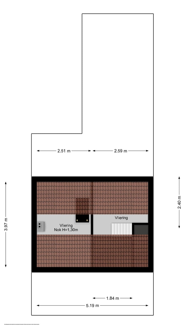
- Vlizotrap naar vliering met dakraam
Achtertuin met achterom en schuur.
Op loopafstand van het centrum van Bussum met een gunstige ligging t.o.v. scholen, sportfaciliteiten, uitvalswegen en het openbaar vervoer.
Wij heten je van harte welkom om te komen kijken.
Woonoppervlakte: 85 m²
Inhoud: 339 m³
Perceeloppervlak: 103 m²
Vraagprijs € 389.000,- k.k.
Kenmerken
Overdracht
- Laatste vraagprijs
- € 389.000 kosten koper
- Vraagprijs per m²
- € 4.576
- Status
- Verkocht
Bouw
- Soort woonhuis
- Eengezinswoning, 2-onder-1-kapwoning
- Soort bouw
- Bestaande bouw
- Bouwperiode
- 1906-1930
- Specifiek
- Gedeeltelijk gestoffeerd
- Soort dak
- Mansarde dak bedekt met pannen
Oppervlakten en inhoud
- Gebruiksoppervlakten
- Wonen
- 85 m²
- Overige inpandige ruimte
- 13 m²
- Perceel
- 103 m²
- Inhoud
- 339 m³
Indeling
- Aantal kamers
- 5 kamers (1 slaapkamer)
- Aantal badkamers
- 1 badkamer en 1 apart toilet
- Badkamervoorzieningen
- Inloopdouche, toilet, en wastafelmeubel
- Aantal woonlagen
- 2 woonlagen, een vliering, en een kelder
- Voorzieningen
- Dakraam en TV kabel
Energie
- Energielabel
- E
- Isolatie
- Gedeeltelijk dubbel glas
- Verwarming
- Cv-ketel
- Warm water
- Cv-ketel
- Cv-ketel
- Gas gestookt, eigendom
Kadastrale gegevens
- BUSSUM G 983
- Kadastrale kaart
- Oppervlakte
- 103 m²
- Eigendomssituatie
- Volle eigendom
Buitenruimte
- Ligging
- Aan rustige weg, in centrum en in woonwijk
- Tuin
- Achtertuin, voortuin en zijtuin
- Achtertuin
- 23 m² (7,60 meter diep en 3,00 meter breed)
- Ligging tuin
- Gelegen op het zuidoosten bereikbaar via achterom
Bergruimte
- Schuur/berging
- Aangebouwde stenen berging
Parkeergelegenheid
- Soort parkeergelegenheid
- Openbaar parkeren en parkeervergunningen
Foto's 24
© 2001-2025 funda























