Dit huis op Funda: https://www.funda.nl/detail/koop/bussum/huis-wielewaallaan-10/43881385/

Omschrijving
English text below
Aan een rustige laan gelegen leuke tussenwoning met voor- en achtertuin, stenen berging en achterom. Gunstig gelegen nabij bos en heide, winkelcentrum Koekoeklaan, scholen en uitvalswegen, maar ook op fietsafstand van station Bussum-Zuid.
Deze woning dient te worden gerenoveerd/gemoderniseerd. Ideale kans voor klussers die een woning geheel naar eigen wens willen verbouwen.
Bouwkundig rapport is aanwezig.
Indeling
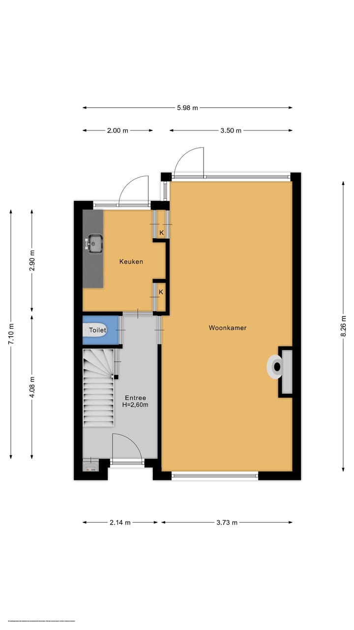
begane grond:
• entree, hal, toilet, trapkast
• woonkamer met parketvloer, deur naar de achtertuin en een houtkachel
• eenvoudige (oorspronkelijke) keuken nog aanwezig
1e verdieping:
• overloop met vaste kast
• eenvoudige badkamer voorzien van douche, 2e toilet en wastafel
• 2 ruime slaapkamers waarvan 1 met balkon
• kleinere 3e slaapkamer
2e verdieping:
• middels vaste trap te bereiken 2e verdieping
• voorzolder met wasmachine/droger- en CV opstelling
• 4e slaapkamer met dakkapel
Bijzonderheden:
• kindvriendelijke woonomgeving
• parkeergelegenheid voor de deur
• te renoveren/moderniseren woning
• achtertuin op het westen
• bouwkundig rapport aanwezig
• in de koopakte zal een ouderdomsclausule worden opgenomen
Een leuke gezinswoning, gunstige gelegen met veel mogelijkheden!
Woonoppervlak : 114m2
Gebouw gebonden buitenruimte : 3m2
Externe bergruimte : 6m2
Perceelgrootte : 1 are 63 ca
English text
A charming mid-terrace house located on a quiet street, with front and back gardens, a stone shed, and a back entrance. Conveniently situated near forests and heathland, the Koekoeklaan shopping center, schools, main roads, and within cycling distance of Bussum-Zuid station. This property needs to be renovated/modernized. An ideal opportunity for DIY enthusiasts who want to renovate a home according to their own wishes. A technical survey is available.
Layout Ground floor:
• entrance, hall, toilet, stair cupboard
• living room with parquet floor, door to the backyard, and a wood stove
• simple (original) kitchen still present
1st floor:
• landing with built-in cupboard
• simple bathroom equipped with shower, 2nd toilet, and sink
• 2 spacious bedrooms, one with a balcony
• smaller 3rd bedroom
2nd floor:
• 2nd floor accessible via a fixed staircase
• attic with washing machine/dryer and central heating setup
• 4th bedroom with dormer window
Particulars:
• child-friendly living environment
• parking available in front of the door
• renovation/modernization needed
• backyard facing west
• technical survey available
• dated construction clause applicable
A lovely family home, conveniently located!
Living area : 114m2
Building-bound outdoor space : 3m2
External storage space : 6m2
Plot size : 1 are 63 ca
Kenmerken
Overdracht
- Laatste vraagprijs
- € 470.000 kosten koper
- Vraagprijs per m²
- € 4.123
- Status
- Verkocht
Bouw
- Soort woonhuis
- Eengezinswoning, tussenwoning
- Soort bouw
- Bestaande bouw
- Bouwjaar
- 1961
- Soort dak
- Zadeldak bedekt met pannen
Oppervlakten en inhoud
- Gebruiksoppervlakten
- Wonen
- 114 m²
- Gebouwgebonden buitenruimte
- 3 m²
- Externe bergruimte
- 6 m²
- Perceel
- 163 m²
- Inhoud
- 387 m³
Indeling
- Aantal kamers
- 5 kamers (4 slaapkamers)
- Aantal badkamers
- 1 apart toilet
- Aantal woonlagen
- 2 woonlagen en een zolder
- Voorzieningen
- Buitenzonwering, natuurlijke ventilatie, rookkanaal, en TV kabel
Energie
- Energielabel
- E
- Verwarming
- Cv-ketel
- Warm water
- Cv-ketel
- Cv-ketel
- Gas gestookt combiketel uit 2007, eigendom
Kadastrale gegevens
- BUSSUM D 4150
- Kadastrale kaart
- Oppervlakte
- 163 m²
- Eigendomssituatie
- Volle eigendom
Buitenruimte
- Ligging
- Aan rustige weg en in woonwijk
- Tuin
- Achtertuin en voortuin
- Achtertuin
- 72 m² (12,00 meter diep en 6,00 meter breed)
- Ligging tuin
- Gelegen op het zuidwesten bereikbaar via achterom
- Balkon/dakterras
- Balkon aanwezig
Bergruimte
- Schuur/berging
- Vrijstaande stenen berging
- Voorzieningen
- Elektra
Parkeergelegenheid
- Soort parkeergelegenheid
- Openbaar parkeren
Foto's 25
© 2001-2025 funda
























