
Omschrijving
Rustig en kindvriendelijk gelegen 4-kamer maisonnette met een nette keuken, moderne badkamer en woonkamer met zonnig terras en een vrij uitzicht.
De woning is gelegen op de 2e, 3e en 4e verdieping van een kleinschalig complex. Deze woning biedt met drie woonlagen en een bergzolder de royale ruimte van een eengezinswoning, maar dan met de voordelen van een appartement.
De woning is centraal gelegen en winkelcentrum De Scholver, scholen, openbaar vervoer en uitvalswegen zijn in de nabije omgeving aanwezig.
Indeling:
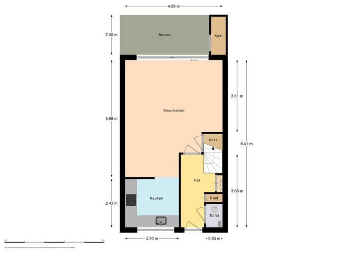
De entree van de woning bevindt zich op de 2e etage van het complex. In de entreehal is toegang tot de moderne toiletruimte met toilet en fonteinkastje en de trapopgang naar de 3e etage. In de hal bevindt zich tevens de garderobe en een handige uitschuifbare kast voor bijvoorbeeld schoenen en andere accessoires.
De woonkamer is mooi licht door de grote schuifpui en heeft een trapkast en een mooie PVC-vloer. Het zonnige terras van 9m2 is gelegen op het zuiden, heeft een handige bergkast, vrij uitzicht en zicht op het vernieuwde speelpleintje. Er ligt een vlonder en er is elektrisch bedienbare zonwering.
De halfopen, nette keuken is uitgevoerd in een L-opstelling in een lichte kleur en voorzien van een keramische kookplaat met rvs afzuigkap, combi-oven, koelkast en een vaatwasser.
3e etage
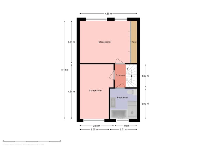
Op de 3e etage bevinden zich 2 slaapkamers en de badkamer.
De hoofdslaapkamer aan de achterzijde is 18m2 en heeft een schuifdeurkast over de gehele breedte van de kamer.
De slaapkamer aan de voorkant van de woning is 13m2.
De moderne badkamer heeft een praktische indeling en is van alle gemakken voorzien. Er is een ruime inloopdouche met regendouche en glazen wand, een ligbad, een tweede toilet en een breed wastafelmeubel met spiegel. Tevens is er vloerverwarming, een designradiator, een verlaagd plafond met spots en speakers, een badkamerkast, mechanische ventilatie en een raam met rooster voor natuurlijke ventilatie en daglichtinval.
4e etage
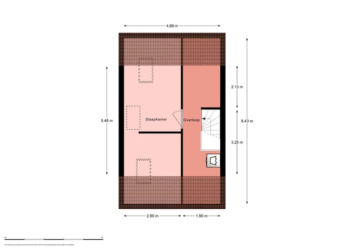
Op deze etage bevindt zich de vierde slaapkamer. Deze is ca. 16m2 en heeft twee dakramen. Op de overloop bevinden zich de aansluitingen voor de wasapparatuur. Tevens is er voldoende ruimte voor bijvoorbeeld het inrichten van een werkplek. Er is een ruime bergzolder over de gehele breedte van de woning, deze is bereikbaar vanuit de slaapkamer middels een luik met vlizotrap.
Bijzonderheden:
De woning is geheel voorzien van dubbel glas;
De ramen op de middelste verdieping zijn in oktober 2023 vervangen voor HR++ ramen.
Verwarming en warmwater gaat middels stadsverwarming en is dus "gasloos";
De woning heeft een eigen berging op de begane grond;
Maandelijkse bijdrage VVE € 196,--;
Oplevering in overleg, bij voorkeur eind juni 2025.
Kenmerken
Overdracht
- Laatste vraagprijs
- € 380.000 kosten koper
- Vraagprijs per m²
- € 3.486
- Status
- Verkocht
- Bijdrage VvE
- € 196,00 per maand
Bouw
- Soort appartement
- Maisonnette (appartement)
- Soort bouw
- Bestaande bouw
- Bouwjaar
- 1980
- Soort dak
- Zadeldak bedekt met pannen
Oppervlakten en inhoud
- Gebruiksoppervlakten
- Wonen
- 109 m²
- Gebouwgebonden buitenruimte
- 9 m²
- Externe bergruimte
- 5 m²
- Inhoud
- 365 m³
Indeling
- Aantal kamers
- 4 kamers (3 slaapkamers)
- Aantal badkamers
- 1 badkamer
- Badkamervoorzieningen
- Inloopdouche, ligbad, toilet, vloerverwarming, en wastafelmeubel
- Aantal woonlagen
- 3 woonlagen
- Voorzieningen
- Buitenzonwering, dakraam, mechanische ventilatie, natuurlijke ventilatie, schuifpui, en TV kabel
- Gelegen op
- 2e woonlaag
Energie
- Energielabel
- A
- Isolatie
- Dakisolatie en dubbel glas
- Verwarming
- Stadsverwarming
- Warm water
- Stadsverwarming
Kadastrale gegevens
- CAPELLE AAN DEN IJSSEL D 3848
- Kadastrale kaart
- Eigendomssituatie
- Volle eigendom
Buitenruimte
- Ligging
- Aan rustige weg, in woonwijk en vrij uitzicht
- Balkon/dakterras
- Balkon aanwezig
Bergruimte
- Schuur/berging
- Box
- Voorzieningen
- Elektra
Parkeergelegenheid
- Soort parkeergelegenheid
- Openbaar parkeren
VvE checklist
- Inschrijving KvK
- Ja
- Jaarlijkse vergadering
- Ja
- Periodieke bijdrage
- Ja (€ 196,00 per maand)
- Reservefonds aanwezig
- Ja
- Onderhoudsplan
- Ja
- Opstalverzekering
- Ja
Foto's 29
© 2001-2025 funda




























