
Omschrijving
*** NU IN VERKOOP ***
EEN GOED ONDERHOUDEN 4 KAMER APPARTEMENT OP DE 2E ETAGE BOVEN WINKELCENTRUM SLOTPLEIN.
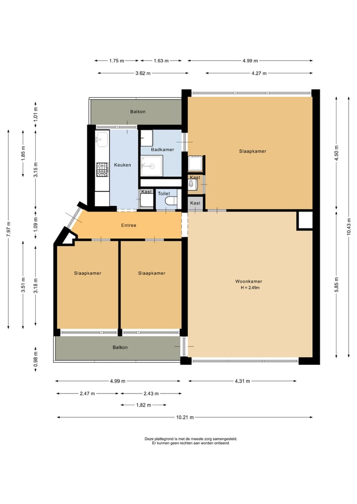
HET APPARTEMENT TELT 87M² AAN WOONOPPERVLAKTE, VERDEELD OVER EEN WOONKAMER, 3 SLAAPKAMERS, DICHTE KEUKEN, BADKAMER, TOILET EN HAL.
DE BUITENRUIMTE BESTAAT UIT 2 BALKONS: 1 KLEINE AAN ACHTERZIJDE EN 1 GROTERE AAN DE VOORZIJDE.
LOCATIE:
Wonen aan het Slotplein in de wijk Middelwatering heeft veel voordelen.
Je hebt hier vrijwel alle dagelijkse benodigdheden om de hoek.
Niet alleen winkels, maar ook een gezondheidscentrum, sport accommodaties, scholen, dag opvang en O.V. (bus & metro).
Een breder winkelaanbod is even verderop te vinden op de recent gerenoveerde, overdekte Koperwiek.
Ook de uitvalswegen naar Utrecht, Rotterdam en Den Haag zijn binnen enkele minuten bereikbaar.
Kortom een rustige woonomgeving met vrijwel alles binnen handbereik.
HET APPARTEMENT:
Via het trappenhuis treffen we op de 2e etage de entree van Slotplein 40.
Binnen komen we in een lichte hal, waar vandaan toegang tot verschillende ruimtes.
Allereerst is daar de keuken (6m²): Een dichte keuken met daarin een recht keukenblok, voorzien van diverse inbouw apparatuur (fornuis, afzuigkap, koel- vries combinatie, vaatwasser en oven).
Vanuit de keuken is er een deur naar het kleine balkon aan de achterzijde (3.4m²).
Naast de keuken bevindt zich het half betegelde toilet met wand closet.
Vervolgens is daar de woonkamer (29m²); een heerlijke lichte ruimte met een kamerbrede raampartij en deur naar het voorgelegen balkon (5m² / zuid west). Dit balkon is voorzien van een elektrisch zonnescherm.
In 2021 is de woonkamer voorzien van airconditioning.
Vanuit de woonkamer is ook de hoofdslaapkamer bereikbaar.
Deze stijlvol ingerichte kamer meet ca. 20m² en is voorzien van een vaste schuifwandenkast.
Ook vinden we hier een kast met daarin ruimte voor de wasapparatuur en een kast voor de C.V. ketel.
Daarnaast is er ook vanuit deze kamer toegang tot de badkamer.
Deze badkamer meet ca. 3m² en is voorzien van een wastafelmeubel en een douche cabine (vernieuwd in 2022).
Als we weer terug lopen naar de hal, komen we nog 2 slaapkamers tegen.
Beide kamers zijn nagenoeg even groot (ca.8.5m²) en zijn thans in gebruik als werkruimtes.
Evenals de hoofd slaapkamer, zijn ook deze 2 kamers voorzien van een kamer brede raampartij.
Als laatste hebben we in de kelder nog een eigen berging box, voorzien van elektra.
SPECIFICATIES:
-Bouwjaar: 1962
-Gelegen op eigen grond
-Woonoppervlakte: 87m²
-Gebouw gebonden buitenruimtes / totaal: 9m²
-Externe bergruimte / box: 4m²
-Inhoud: 270m³
-Isolatie: vloer isolatie / deels dubbel HR glas
-Verwarming / warm water: C.V. ketel "Intergas" d.d. 2012
-Airconditioning d.d. 2021
-Domotica d.d.2021
-Elektrische zonwering boven balkon aan voorzijde (zuid west)
-Vloeren: laminaat
-Actieve V.v.E. met maandelijkse bijdrage van €157,00
-Oplevering in overleg
KORTOM: EEN INSTAPKLAAR APPARTEMENT!
INTERESSE? MAAK DAN SNEL EEN AFSPRAAK!
Ons advies is om bij het kopen van je nieuwe huis je eigen NVM-makelaar mee te nemen.
TOELICHTINGSCLAUSULE NEN2580
De Meetinstructie is gebaseerd op de NEN2580. De Meetinstructie is bedoeld om een meer eenduidige manier van meten toe te passen voor het geven van een indicatie van de gebruiksoppervlakte. De Meetinstructie sluit verschillen in meetuitkomsten niet volledig uit, door bijvoorbeeld interpretatieverschillen, afrondingen of beperkingen bij het uitvoeren van de meting.
KOOPOVEREENKOMST PAS RECHTSGELDIG NA ONDERTEKENING
Een mondelinge overeenstemming tussen de particuliere verkoper en de particuliere koper is niet rechtsgeldig. Met andere woorden: er is geen koop. Er is pas sprake van een rechtsgeldige koop als de particuliere verkoper en de particuliere koper de koopovereenkomst hebben ondertekend. Dit vloeit voort uit artikel 7:2 Burgerlijk Wetboek. Een bevestiging van de mondelinge overeenstemming per e-mail of een toegestuurd concept van de koopovereenkomst wordt overigens niet gezien als een 'ondertekende koopovereenkomst'
“Deze informatie is door ons met de nodige zorgvuldigheid samengesteld. Onzerzijds wordt echter geen enkele aansprakelijkheid aanvaard voor enige onvolledigheid, onjuistheid of anderszins, dan wel de gevolgen daarvan. Alle opgegeven maten en oppervlakten zijn indicatief.”
Kenmerken
Overdracht
- Aangeboden sinds
- Aanvaarding
- In overleg
- Vraagprijs
- € 320.000 kosten koper
- Vraagprijs per m²
- € 3.678
- Status
- Verkocht onder voorbehoud
- Bijdrage VvE
- € 157,00 per maand
Bouw
- Soort appartement
- Portiekflat (appartement)
- Soort bouw
- Bestaande bouw
- Bouwjaar
- 1962
- Specifiek
- Gedeeltelijk gestoffeerd
- Soort dak
- Plat dak bedekt met bitumineuze dakbedekking
Oppervlakten en inhoud
- Gebruiksoppervlakten
- Wonen
- 87 m²
- Gebouwgebonden buitenruimte
- 9 m²
- Externe bergruimte
- 4 m²
- Inhoud
- 270 m³
Indeling
- Aantal kamers
- 4 kamers (3 slaapkamers)
- Aantal badkamers
- 1 badkamer en 1 apart toilet
- Badkamervoorzieningen
- Douche en wastafelmeubel
- Aantal woonlagen
- 1 woonlaag
- Voorzieningen
- Airconditioning en domotica
- Gelegen op
- 2e woonlaag
Energie
- Energielabel
- D
- Isolatie
- Gedeeltelijk dubbel glas, HR-glas en vloerisolatie
- Verwarming
- Cv-ketel
- Warm water
- Cv-ketel
- Cv-ketel
- Intergas Kompakt HRE (gas gestookt combiketel uit 2012, eigendom)
Kadastrale gegevens
- CAPELLE AAN DEN IJSSEL B 7151
- Kadastrale kaart
- Eigendomssituatie
- Volle eigendom
Buitenruimte
- Ligging
- In centrum en in woonwijk
- Balkon/dakterras
- Balkon aanwezig
Bergruimte
- Schuur/berging
- Box
- Voorzieningen
- Elektra
Parkeergelegenheid
- Soort parkeergelegenheid
- Openbaar parkeren
VvE checklist
- Inschrijving KvK
- Ja
- Jaarlijkse vergadering
- Ja
- Periodieke bijdrage
- Ja (€ 157,00 per maand)
- Reservefonds aanwezig
- Ja
- Onderhoudsplan
- Ja
- Opstalverzekering
- Ja
Foto's 41
Plattegronden 2
© 2001-2025 funda










































