
Omschrijving
Nette en centraal gelegen 5-kamer tussenwoning met een zonnige achtertuin, dakkapel en parkeerplaats voor de deur, gelegen op 120m2 eigen grond op slechts 200m van NS en winkels!
In een kindvriendelijke en autoluwe straat en met winkelcentrum De Scholver en NS station Capelle Schollevaar om de hoek. Ook het Schollebos is heel dichtbij! Tevens zit je in 3 minuten rijden op de snelweg.
Begane grond:
Je komt de woning binnen via de voortuin met eigen parkeerplek en toegang tot de aangebouwde stenen berging en de aangrenzende houten fietsenberging. Beide bergingen zijn ca. 4m2.
In de entreehal bevinden zich de meterkast, garderobe, trapopgang en de toiletruimte. Deze is uitgevoerd in een lichte kleurstelling en voorzien van een toilet en een fonteintje.
De lichte woonkamer is incl. keuken ca. 40m2 en voorzien van een plavuizen vloer met vloerverwarming. Ook heeft de kamer een handige trapkast en toegang tot de tuin via de brede schuifpui.
De achtertuin gelegen op het zuidoosten is fraai aangelegd met terras en sierbestrating, houten schuttingen en borders met vaste planten. In de tuin staan diverse fruitboompjes en -struikjes (appel, pruim, kers, blauwe en witte druif, braam en aardbei). Tevens is er een tuinkast, elektrisch bedienbare zonwering en de tuin grenst aan het water.
De open keuken aan de voorzijde heeft een hoekopstelling in wit. Er is een keramische kookplaat met een wasemkap en een oven, een vaatwasser en een koel-/vriescombinatie. Tevens heeft de keuken veel kastruimte en zonwering in de vorm van een screen.
1e etage:
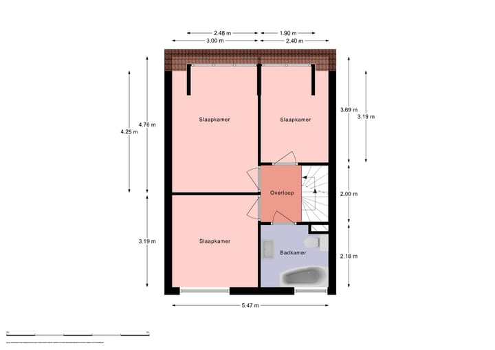
Op de eerste etage zijn 3 slaapkamers en de badkamer.
De hoofdslaapkamer is 14m2 en de naastgelegen slaapkamer is 8m2. Beide kamers liggen aan de achterzijde van de woning en zijn vergroot door middel van een dakkapel. De slaapkamer aan de voorzijde van de woning is 10m2.
De nette badkamer is uitgevoerd met witte wand- en vloertegels. Er is een wastafelmeubel met spiegelkast en verlichting, een 2e toilet en een ligbad met douchescherm. Tevens is er een designradiator, mechanische ventilatie en een raam voor natuurlijke ventilatie en daglichtinval.
Alle slaapkamers zijn voorzien van een rolluik en de slaapkamers aan de achterzijde van de woning hebben bergruimte onder de schuine kap.
2e etage:
De tweede etage is op dit moment in gebruik als een grote multifunctionele ruimte. Er is hier voldoende ruimte voor het creëren van één of twee extra slaapkamers. Er zijn twee dakramen aanwezig en er is bergruimte in de knieschotten.
Op de zolder bevinden zich bovendien de aansluitingen voor de wasapparatuur.
Bijzonderheden:
De woning beschikt over een energielabel B;
De verwarming en warm water geschieden "gasloos" door middel van stadsverwarming;
Oplevering in overleg, indicatie per maart 2026.
Kenmerken
Overdracht
- Laatste vraagprijs
- € 430.000 kosten koper
- Vraagprijs per m²
- € 3.909
- Status
- Verkocht
Bouw
- Soort woonhuis
- Eengezinswoning, tussenwoning
- Soort bouw
- Bestaande bouw
- Bouwjaar
- 1989
- Soort dak
- Zadeldak bedekt met pannen
- Keurmerken
- Politiekeurmerk
Oppervlakten en inhoud
- Gebruiksoppervlakten
- Wonen
- 110 m²
- Externe bergruimte
- 9 m²
- Perceel
- 120 m²
- Inhoud
- 370 m³
Indeling
- Aantal kamers
- 5 kamers (4 slaapkamers)
- Aantal badkamers
- 1 badkamer en 1 apart toilet
- Badkamervoorzieningen
- Ligbad, toilet, en wastafelmeubel
- Aantal woonlagen
- 3 woonlagen
- Voorzieningen
- Dakraam, mechanische ventilatie, natuurlijke ventilatie, schuifpui, en TV kabel
Energie
- Energielabel
- Isolatie
- Dubbel glas
- Verwarming
- Stadsverwarming
- Warm water
- Stadsverwarming
Kadastrale gegevens
- CAPELLE AAN DEN IJSSEL D 3267
- Kadastrale kaart
- Oppervlakte
- 120 m²
- Eigendomssituatie
- Volle eigendom
Buitenruimte
- Ligging
- Aan rustige weg en in woonwijk
- Tuin
- Achtertuin en voortuin
- Achtertuin
- 36 m² (6,25 meter diep en 5,75 meter breed)
- Ligging tuin
- Gelegen op het zuidoosten
Bergruimte
- Schuur/berging
- Aangebouwde stenen berging
Parkeergelegenheid
- Soort parkeergelegenheid
- Op eigen terrein en openbaar parkeren
Foto's 27
© 2001-2026 funda


























