
Omschrijving
Verzorgde tweelaagse gezinswoning, met een moderne keuken en badkamer, 3 slaapkamers, ruime en zonnige tuin en 2 bergingen, gelegen op 146m2 eigen grond.
De woning ligt in het centrum van Capelle op loopafstand van zowel winkelcentrum "Slotplein" als "De Koperwiek" met winkels en supermarkten, bibliotheek, op donderdag de gezellige weekmarkt, het Isala-theater en diverse horecagelegenheden. Tevens heeft het centrum een metrostation waardoor je in ca. 15 minuten in het centrum van Rotterdam bent. Ook zijn de A20 en A16 binnen enkele minuten bereikbaar.
Indeling:
Entree in de hal van de woning met meterkast en bergkast, toiletruimte en trapopgang naar de 1e etage. Via de hal is er toegang tot de woonkamer.
De doorzonwoonkamer is heerlijk licht door de grote glazen puien aan de voor- en achterzijde van de woning en heeft een openhaard voor extra warmte en gezelligheid. De keuken is bereikbaar via de woonkamer.
Deze heeft een moderne hoekopstelling in een lichte kleur. Er is een 4-pits inductiekookplaat met een wokbrander (gas), een RVS afzuigkap, een combi-oven, een koelkast en een vaatwasser. Tevens heeft de keuken een glazen achterwand met verlichting. Via de keuken is er toegang tot de ruime achtertuin.
De achtertuin is ruim 13 meter diep, en heeft achterin een grote schuur over de gehele breedte van de tuin. Ook is er een achterom. De schuur is verdeeld in 2 delen van 6m2. Een deel is bereikbaar vanuit de brandgang achter de tuin, ideaal voor het stallen van fietsen, of een motor. De schuur is tevens onderheid en voorzien van elektra.
De tuin heeft verder een terras, houten schuttingen en vaste planten. Ook is er een elektrisch bedienbaar zonnescherm en een buitenkraan. De tuin is heerlijk zonnig gelegen op het zuidwesten.
1e etage:
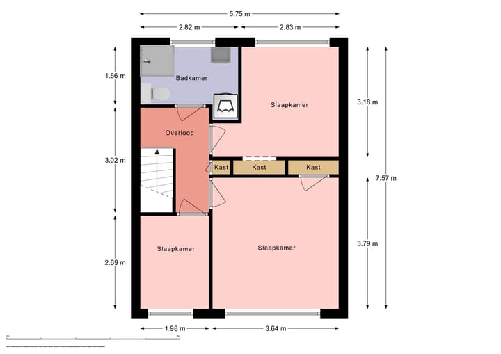
Op de eerste etage bevinden zich 3 slaapkamers en de badkamer.
De hoofdslaapkamer van 14m2 is voorzien van een vaste kast en airconditioning. De naastgelegen slaapkamer is ca. 6m2.
De derde slaapkamer aan de achterzijde van de woning is 12m2 heeft eveneens een vaste kast en airconditioning.
Op de overloop is een vaste kast en een luik naar de bergvliering.
De badkamer is vergroot en voorzien van een wastafelmeubel met waskom, een douchecabine, een tweede toilet en een extra badkamerkast. Tevens is er mechanische ventilatie en een raam voor natuurlijke ventilatie en daglichtinval en bevindt zich hier de aansluiting voor de wasapparatuur.
Bijzonderheden:
De woning is geheel voorzien van kunststof kozijnen met dubbel glas;
Het dak is in 2016 voorzien van een nieuwe laag bitumen;
Bouwjaar CV-ketel 2014;
Oplevering in overleg, bij voorkeur half maart/begin april 2025.
Kenmerken
Overdracht
- Laatste vraagprijs
- € 375.000 kosten koper
- Vraagprijs per m²
- € 4.412
- Status
- Verkocht
Bouw
- Soort woonhuis
- Eengezinswoning, tussenwoning
- Soort bouw
- Bestaande bouw
- Bouwjaar
- 1958
- Soort dak
- Plat dak bedekt met bitumineuze dakbedekking
Oppervlakten en inhoud
- Gebruiksoppervlakten
- Wonen
- 85 m²
- Externe bergruimte
- 12 m²
- Perceel
- 146 m²
- Inhoud
- 300 m³
Indeling
- Aantal kamers
- 4 kamers (3 slaapkamers)
- Aantal badkamers
- 1 badkamer en 1 apart toilet
- Badkamervoorzieningen
- Douche, toilet, wastafel, en wastafelmeubel
- Aantal woonlagen
- 2 woonlagen
- Voorzieningen
- Airconditioning, buitenzonwering, mechanische ventilatie, natuurlijke ventilatie, en rookkanaal
Energie
- Energielabel
- D
- Isolatie
- Dubbel glas
- Verwarming
- Cv-ketel en open haard
- Warm water
- Cv-ketel
- Cv-ketel
- Remeha TZerra M 24c CW3 (gas gestookt combiketel uit 2014, eigendom)
Kadastrale gegevens
- CAPELLE AAN DEN IJSSEL B 6911
- Kadastrale kaart
- Oppervlakte
- 146 m²
- Eigendomssituatie
- Volle eigendom
Buitenruimte
- Ligging
- Aan rustige weg en in woonwijk
- Tuin
- Achtertuin en voortuin
- Achtertuin
- 67 m² (11,20 meter diep en 5,97 meter breed)
- Ligging tuin
- Gelegen op het zuidwesten bereikbaar via achterom
Bergruimte
- Schuur/berging
- Vrijstaande houten berging
- Voorzieningen
- Elektra
Parkeergelegenheid
- Soort parkeergelegenheid
- Openbaar parkeren
Foto's 26
© 2001-2025 funda

























