
Omschrijving
Keurig onderhouden fraaie eengezinswoning met een zonnige op het zuidwesten aan het water gelegen tuin op een perceel van 148 m2 eigen grond. De ligging is ideaal in de jonge woonwijk 's- Gravenland nabij voorzieningen als scholen, winkels, zorgvoorzieningen, openbaar vervoer (bus en metro) en uitvalswegen. Bel voor een vrijblijvende bezichtiging van dit fijne familiehuis!
Indeling:
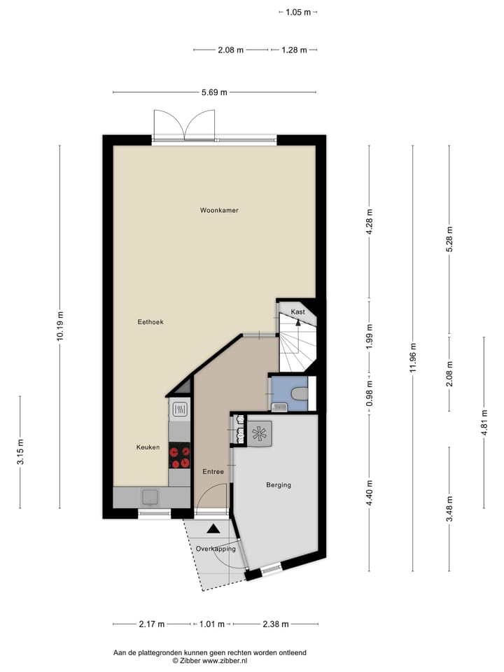
Begane grond:
Entree, hal met meterkast, trapopgang en ruime trapkast. De aangebouwde berging is een praktische ruimte en is vanuit de voortuin en vanuit de hal te bereiken. Geheel met grijs/witte tegels betegelde toiletruimte met wandcloset en modern fonteintje. Via een deur is de riante living bereikbaar bestaande uit een open keuken in L-opstelling aan de voorzijde van de woning en een tuingerichte woonkamer. De lichte keuken met donker granieten blad is uitgerust met een inductiekookplaat (ca. 2015), afzuigkap (met afvoer naar buiten), vaatwasmachine, koelkast, combi- oven en spoelbak onder het raam. In de gezellige tuingerichte woonkamer is een praktische trapkast aanwezig en de openslaande deuren geven toegang tot de fraaie achtertuin. Op de begane grond liggen grote donkergrijze vloertegels met daaronder vloerverwarming als hoofdverwarming (in de woonkamer, keuken, hal, toilet en berging). De wanden en plafonds van deze verdieping zijn glad gestuukt.
1e Verdieping:
Overloop met toegang tot de vertrekken, ruime hoofdslaapkamer aan de voorzijde van het huis met deur naar het balkon. Aan de achterzijde van de woning bevinden zich nog twee slaapkamers, beiden van een fijn formaat. De grootste van de twee heeft toegang tot een riant balkon over de gehele breedte van de woning. Op de overloop en in de slaapkamers ligt een drempelloos doorgelegde laminaatvloer en de wanden zijn voorzien van behang.
De geheel betegelde luxe badkamer is in 2020 vernieuwd en is uitgerust met een inloopdouche, wastafelmeubel, spiegel en twee kasten. Prettig is het raam dat open kan zodat er naast de mechanische ventilatie ook op een natuurlijke manier geventileerd kan worden. Separate toiletruimte (2016) in grijs/witte kleurstelling met wandcloset.
2e Verdieping:
Ruime zolderverdieping welke door de aan twee zijden geplaatste dakkapellen is vergroot. De dakkapel aan de achterzijde is voorzien van een screen (handmatige bediening). Door de ramen aan beide zijden is dit een prettig lichte ruimte en op de vloer ligt laminaat. Er is een wasruimte aanwezig met de aansluitingen voor de wasmachine en droger. In deze ruimte hangt ook de in oktober 2025 vernieuwde C.V.-combiketel en de mechanische ventilatie unit. Het is desgewenst mogelijk om op deze verdieping een extra slaapkamer en badkamer te realiseren.
Buiten:
Gunstig op het zuidwesten gelegen zonnige achtertuin met veel privacy en fraaie ligging aan het water. De tuin is onderhoudsvriendelijk aangelegd met tuiinverlichting en een brede vlonder aan het water. Er is een buitenkraan aanwezig en het elektrisch bedienbare zonnescherm (met grijs/wit gestreept doek) houdt de zon uit de woonkamer.
Op het noordwesten gelegen voortuin met een buitenkraan en fraaie vaste beplanting en aangebouwde stenen berging.
Persoonlijke noot van de verkopers:
''Al 26 jaar wonen we met veel plezier in deze rustige en groene wijk in Capelle aan den IJssel. Een mooie straat, fijne buren, veel groen en speeltuintjes in de buurt. Een kindvriendelijke buurt een plek waar kinderen veilig en vrij kunnen opgroeien en waar alles dichtbij is.
Ons huis ligt heerlijk aan het water, met een zonnige tuin op het zuiden waar we elk seizoen van genieten. Met onze kinderen en tijdens oppasdagen op de kleinkinderen beleefden we veel plezier met het schaatsen, vissen, bootje varen, barbecueën en andere kleine avonturen in de tuin.
Binnen in huis voelt het licht en ruim, met fijne kamers en een grote zolder, een bijna zelfstandige woonruimte, waaraan je iedere invulling kan geven.
Het is niet zomaar een huis, het is een plek van volop genieten “Een echt gezinshuis”.
We hopen dat een ander gezin hier net als wij jarenlang van dit huis gaan genieten en dat zij hun eigen verhaal gaan beleven.
Wij verhuizen niet omdat we weg willen, maar gezien onze leeftijd is het nu de tijd voor een gelijkvloers appartement.
Wij gaan beginnen aan een nieuw hoofdstuk. Voor ons was hier wonen echt heel fijn.''
Bijzonderheden:
- bouwjaar ca. 1996
- isolatie vanuit de bouw
- geheel dubbele beglazing
- verwarming en warm water middels C.V.-combiketel Remeha, geplaatst in okotber 2025
- buitenschilderwerk is gefaseerd uitgevoerd, deels in 2024
- energielabel A
- RVS trapleuningen
- oplevering in overleg, voorkeur verkopers eind februari 2026
De Meetinstructie is gebaseerd op de NEN2580. De Meetinstructie is bedoeld om een meer eenduidige manier van meten toe te passen voor het geven van een indicatie van de gebruiksoppervlakte. De Meetinstructie sluit verschillen in meetuitkomsten niet volledig uit, door bijvoorbeeld interpretatieverschillen, afrondingen of beperkingen bij het uitvoeren van de meting. Koper wordt uitgenodigd zelf de opgegeven oppervlakten van het gekochte op juistheid te controleren.
Rechtsgeldige koopovereenkomst pas ná ondertekening:
Een mondelinge overeenstemming tussen de particuliere verkoper en de particuliere koper is niet rechtsgeldig. Met andere woorden: er is geen koop. Er is pas sprake van een rechtsgeldige koop als de particuliere verkoper en de particuliere koper de koopovereenkomst hebben ondertekend. Dit vloeit voort uit artikel 7:2 Burgerlijk Wetboek. Een bevestiging van de mondelinge overeenstemming per e-mail of een toegestuurd concept van de koopovereenkomst wordt overigens niet gezien als een ‘ondertekende koopovereenkomst’.
Deze informatie is met zorg samengesteld, maar voor de juistheid ervan kan door Ruseler Makelaars geen aansprakelijkheid worden aanvaard, noch kan aan de vermelde gegevens enig recht worden ontleend. Nadrukkelijk is vermeld dat deze informatieverstrekking niet als een aanbieding of offerte mag worden beschouwd.
Kenmerken
Overdracht
- Laatste vraagprijs
- € 585.000 kosten koper
- Vraagprijs per m²
- € 4.062
- Status
- Verkocht
Bouw
- Soort woonhuis
- Eengezinswoning, tussenwoning
- Soort bouw
- Bestaande bouw
- Bouwjaar
- 1996
- Soort dak
- Zadeldak bedekt met pannen
Oppervlakten en inhoud
- Gebruiksoppervlakten
- Wonen
- 144 m²
- Gebouwgebonden buitenruimte
- 18 m²
- Perceel
- 148 m²
- Inhoud
- 509 m³
Indeling
- Aantal kamers
- 5 kamers (4 slaapkamers)
- Aantal badkamers
- 1 badkamer en 2 aparte toiletten
- Badkamervoorzieningen
- Inloopdouche en wastafelmeubel
- Aantal woonlagen
- 3 woonlagen
- Voorzieningen
- Buitenzonwering, mechanische ventilatie, en natuurlijke ventilatie
Energie
- Energielabel
- Isolatie
- Dakisolatie, dubbel glas, muurisolatie en vloerisolatie
- Verwarming
- Cv-ketel en gedeeltelijke vloerverwarming
- Warm water
- Cv-ketel
- Cv-ketel
- Remeha (gas gestookt combiketel uit 2025, eigendom)
Kadastrale gegevens
- CAPELLE AAN DEN IJSSEL E 2142
- Kadastrale kaart
- Oppervlakte
- 148 m²
- Eigendomssituatie
- Volle eigendom
Buitenruimte
- Ligging
- Aan water en in woonwijk
- Tuin
- Achtertuin en voortuin
- Achtertuin
- 60 m² (10,00 meter diep en 6,00 meter breed)
- Ligging tuin
- Gelegen op het zuidwesten
- Balkon/dakterras
- Balkon aanwezig
Bergruimte
- Schuur/berging
- Aangebouwde stenen berging
- Voorzieningen
- Elektra en verwarming
Parkeergelegenheid
- Soort parkeergelegenheid
- Openbaar parkeren
Foto's 41
© 2001-2026 funda








































