
Omschrijving
Midden in het bruisende dorpscentrum van Castricum tref je dit onwijs leuke en goed onderhouden driekamerappartement aan.
Het appartement beschikt over twee woonlagen en is gelegen in een kleinschalig appartementengebouw. Met alle voorzieningen direct in de buurt (denk aan het NS-station, winkels, horeca en meer) is de ligging ideaal! De duinen en het strand zijn bovendien op fietsafstand te bereiken.
Meer informatie?
Via ‘Download brochure’ en ‘Bekijk de unieke website’ krijgt u toegang tot de volledige online presentatie van de woning, inclusief alle relevante documenten en aanvullende informatie.
De woonkamer met hoog plafond en grote ramen geeft de ruimte een prettig en licht gevoel. De keuken is modern en voorzien van inbouwapparatuur. De badkamer is van prima formaat en uitgerust met een wasmachineaansluiting. Verder zijn er twee grote slaapkamers en een zonnig balkon op het oosten.
Indeling appartement
Begane grond:
Je komt het pand binnen via de centrale entree, waar zich het bellentableau en het brievenbussenportaal bevinden. Het appartementencomplex heeft geen lift; het trappenhuis ligt centraal. Per verdieping zijn twee appartementen gesitueerd.
Souterrain:
Bergingen. Het appartement beschikt over een eigen berging, voorzien van elektra.
Tweede verdieping:
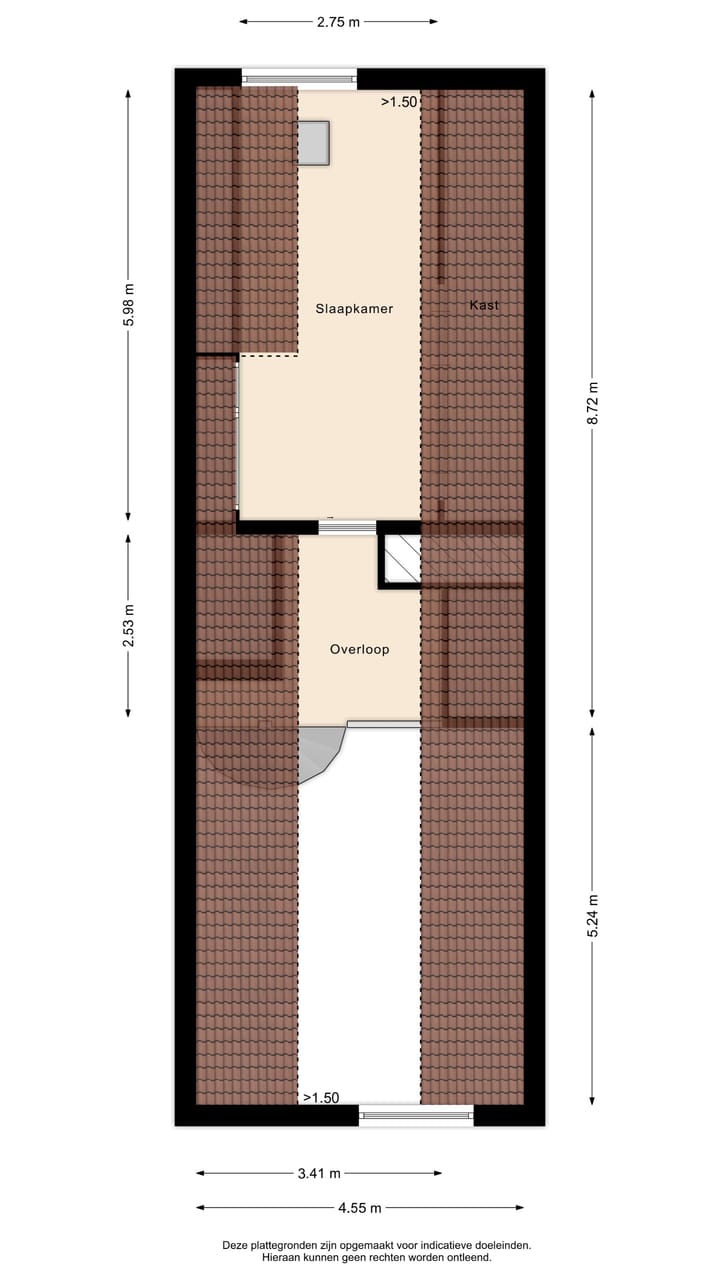
Entree/hal, lichte en hoge (vide) woonkamer (circa 25 m²) met Frans eiken vloer, nette open keuken met kookeiland, volledig betegelde badkamer met douche, toilet, wastafel en wasmachineaansluiting. Ruime slaapkamer met schuifwandkast en schuifpui naar het op het oosten gelegen balkon.
Vanuit de woonkamer leidt een spiltrap naar de entresol met een ruime tweede slaapkamer, voorzien van dakramen. De berging bevindt zich in de kelder. Aan de achterzijde van het gebouw zijn zes parkeerplaatsen beschikbaar.
Bijzonderheden:
• Bouwjaar: 1977
• Woonoppervlakte: 74 m²
• Energielabel: C
• Blokverwarming met individuele bemetering
• Warmwatervoorziening via geiser
• Servicekosten: € 219,16 per maand
• Voorschot stookkosten: € 60,- per maand
• Beide slaapkamers liggen aan de rustige achterzijde van het gebouw
Bent u geïnteresseerd in deze woning? Schakel direct een NVM-aankoopmakelaar in.
Een NVM-aankoopmakelaar komt op voor uw belangen en bespaart u tijd, geld en zorgen.
Kenmerken
Overdracht
- Servicekosten
- € 219 per maand
- Laatste vraagprijs
- € 335.000 kosten koper
- Vraagprijs per m²
- € 4.527
- Status
- Verkocht
- Bijdrage VvE
- € 219,16 per maand
Bouw
- Soort appartement
- Maisonnette (appartement)
- Soort bouw
- Bestaande bouw
- Bouwjaar
- 1978
- Specifiek
- Gedeeltelijk gestoffeerd
- Soort dak
- Zadeldak bedekt met pannen
Oppervlakten en inhoud
- Gebruiksoppervlakten
- Wonen
- 74 m²
- Gebouwgebonden buitenruimte
- 3 m²
- Externe bergruimte
- 5 m²
- Inhoud
- 288 m³
Indeling
- Aantal kamers
- 3 kamers (2 slaapkamers)
- Aantal badkamers
- 1 badkamer
- Badkamervoorzieningen
- Douche, toilet, wastafel, en wastafelmeubel
- Aantal woonlagen
- 2 woonlagen
- Voorzieningen
- Natuurlijke ventilatie, schuifpui, en TV kabel
- Gelegen op
- 2e woonlaag
Energie
- Energielabel
- Isolatie
- Dakisolatie, dubbel glas en HR-glas
- Verwarming
- Blokverwarming
- Warm water
- Geiser
Kadastrale gegevens
- CASTRICUM B 9570
- Kadastrale kaart
- Eigendomssituatie
- Volle eigendom
Buitenruimte
- Ligging
- In centrum en in woonwijk
- Balkon/dakterras
- Balkon aanwezig
Bergruimte
- Schuur/berging
- Inpandig
- Voorzieningen
- Elektra
- Isolatie
- Geen isolatie
Parkeergelegenheid
- Soort parkeergelegenheid
- Openbaar parkeren
VvE checklist
- Inschrijving KvK
- Ja
- Jaarlijkse vergadering
- Ja
- Periodieke bijdrage
- Ja (€ 219,16 per maand)
- Reservefonds aanwezig
- Ja
- Onderhoudsplan
- Ja
- Opstalverzekering
- Ja
Foto's 40
© 2001-2026 funda







































